Se Connecter/S’inscrire
Votre courriel a été envoyé.
I-41
De Pere, WI 54115
Lawrence Town Center · Terrain À vendre
·
58,98 AC


Certaines informations ont été traduites automatiquement.
Faits saillants de l'investissement
- Some parcels have I-41 frontage with high visibility
- All sites easily accessible from I-41 at the Freedom Road (County S) or Scheuring Road (County F) interchanges.
- These parcels have potential uses such as office, hotel or highway retail.
- All parcels located in a sewer service area
- Equidistant between Green Bay and Appleton.
Résumé de l'annonce
Property Features
• Some parcels have I-41 frontage with high visibility.
• All parcels located in a sewer service area.
• All sites easily accessible from I-41 at the Freedom Road (County S) or Scheuring Road (County F) interchanges.
• Equidistant between Green Bay and Appleton.
Details
Ready for immediate development in a growing area about one mile south of De Pere in the Town of Lawrence. These parcels have potential uses such as office, hotel or highway retail.
• Some parcels have I-41 frontage with high visibility.
• All parcels located in a sewer service area.
• All sites easily accessible from I-41 at the Freedom Road (County S) or Scheuring Road (County F) interchanges.
• Equidistant between Green Bay and Appleton.
Details
Ready for immediate development in a growing area about one mile south of De Pere in the Town of Lawrence. These parcels have potential uses such as office, hotel or highway retail.
Faits sur la propriété
| Type de vente | Investissement | Sous-type de propriété | Terrain commercial |
| Nombre de lots | 3 | Utilisation proposée | |
| Type de propriété | Terrain | Taille totale du lot | 58,98 AC |
| Type de vente | Investissement |
| Nombre de lots | 3 |
| Type de propriété | Terrain |
| Sous-type de propriété | Terrain commercial |
| Utilisation proposée | |
| Taille totale du lot | 58,98 AC |
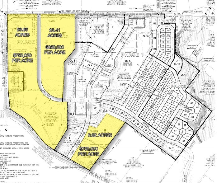
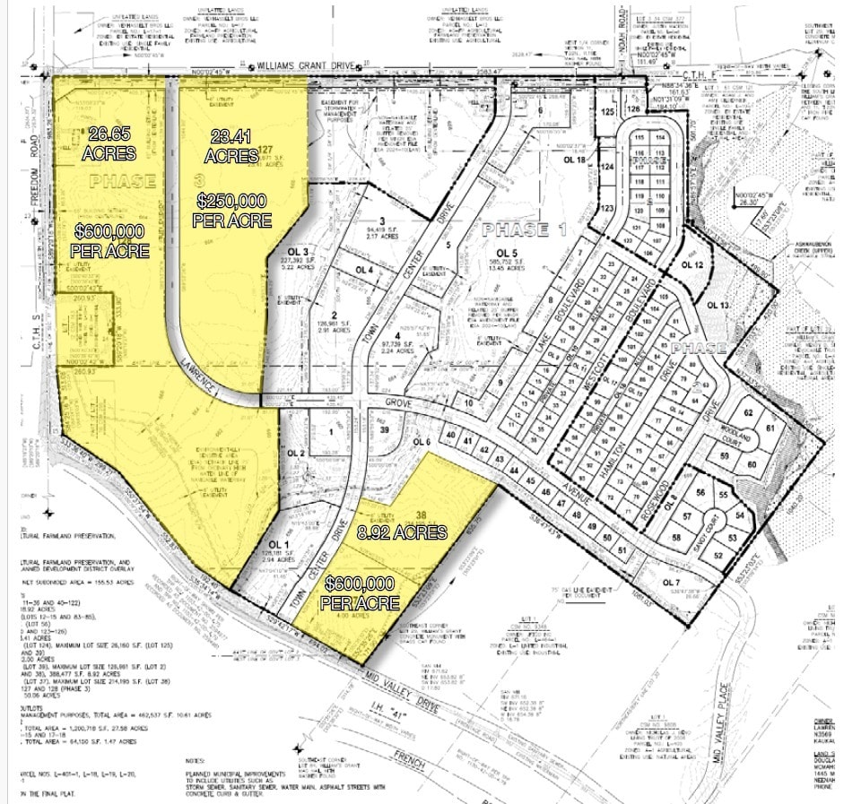
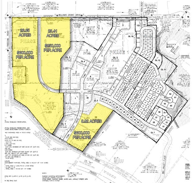
3 Lots disponibles
Lot 1
| Prix | 27 592 145 $ CAD | Taille du lot | 26,65 AC |
| Prix par AC | 1 035 352,53 $ CAD |
| Prix | 27 592 145 $ CAD |
| Prix par AC | 1 035 352,53 $ CAD |
| Taille du lot | 26,65 AC |
26.65 Acres = $750,000/acre
Lot 2
| Prix | 8 079 201 $ CAD | Taille du lot | 23,41 AC |
| Prix par AC | 345 117,51 $ CAD |
| Prix | 8 079 201 $ CAD |
| Prix par AC | 345 117,51 $ CAD |
| Taille du lot | 23,41 AC |
23.41 Acres = $250,000/acre
Lot 3
| Prix | 9 235 345 $ CAD | Taille du lot | 8,92 AC |
| Prix par AC | 1 035 352,53 $ CAD |
| Prix | 9 235 345 $ CAD |
| Prix par AC | 1 035 352,53 $ CAD |
| Taille du lot | 8,92 AC |
8.92 Acres = $750,000/acre
Impôts fonciers
| Numéro de lot | L-401-1 | Évaluation des bâtiments | 0 $ CAD |
| Évaluation du terrain | 15 120 $ CAD | Évaluation totale | 15 120 $ CAD |
Impôts fonciers
Numéro de lot
L-401-1
Évaluation du terrain
15 120 $ CAD
Évaluation des bâtiments
0 $ CAD
Évaluation totale
15 120 $ CAD
1 de 3
Vidéos
Visite extérieure 3D Matterport
Visite 3D Matterport
Photos
Vue depuis la rue
Rue
Carte
