Votre courriel a été envoyé.
Certaines informations ont été traduites automatiquement.
Faits saillants
- Established industrial location
- Easy access to the A9 trunk road via the nearby Inveralmond roundabout
- Within an established industrial area situated on the northern periphery of the town
Caractéristiques
Tous les espaces disponibles(1)
Afficher les taux de location en
- Espace
- Taille
- Terme
- Taux de location
- Utilisation de l’espace
- Aménagement
- Disponible
Industrial unit available to let
- Classe d’utilisation : Class 5
- Installations WC abandonnées
- Well presented unit
- Entreposage sécurisé
- Available for lease
- WC
| Espace | Taille | Terme | Taux de location | Utilisation de l’espace | Aménagement | Disponible |
| RDC - A2 | 1 076 pi² | Négociable | Sur demande Sur demande Sur demande Sur demande | Industriel | construction complète | Maintenant |
RDC - A2
| Taille |
| 1 076 pi² |
| Terme |
| Négociable |
| Taux de location |
| Sur demande Sur demande Sur demande Sur demande |
| Utilisation de l’espace |
| Industriel |
| Aménagement |
| construction complète |
| Disponible |
| Maintenant |
RDC - A2
| Taille | 1 076 pi² |
| Terme | Négociable |
| Taux de location | Sur demande |
| Utilisation de l’espace | Industriel |
| Aménagement | construction complète |
| Disponible | Maintenant |
Industrial unit available to let
- Classe d’utilisation : Class 5
- Entreposage sécurisé
- Installations WC abandonnées
- Available for lease
- Well presented unit
- WC
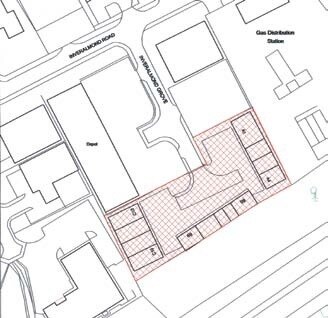
Aperçu de la propriété
Le développement d'Inveralmond Grove est situé sur un terrain de 2 acres, à proximité d'Inveralmond Grove, et comprend un total de 16 unités industrielles de tailles variées allant de 49,98 m² (538 pi²) à 766,45 m² (8 250 pi²). Les unités sont construites selon des normes élevées, sont isolées et offrent tous les services habituels, y compris des toilettes accessibles aux personnes handicapées. Les unités sont raccordées aux réseaux d'électricité, de gaz et d'eau, ainsi qu'aux lignes téléphoniques. Chaque unité bénéficie d'un système de chauffage à air chaud alimenté au gaz. L'accès à chaque unité se fait par une porte roulante manuelle d'environ 9 pieds (2,75 m) de hauteur. La location de chaque unité inclut l'accès et l'utilisation des espaces de stationnement et des zones opérationnelles communes.
Faits sur l’installation service
Sélectionner des locataires
- Étage
- Nom du locataire
- Secteur
- REZ-DE-CHAUSSÉE
- Drain-Cure Services (Scotland) Ltd
- Construction
- REZ-DE-CHAUSSÉE
- Fischer Future Heat UK Ltd
- -
- REZ-DE-CHAUSSÉE
- Redpath Tyres Ltd
- Services
- REZ-DE-CHAUSSÉE
- Richardson & Starling (Northern) Ltd
- Services professionnels, scientifiques et techniques
- REZ-DE-CHAUSSÉE
- Whisky Auctioneer Ltd
- -
Présenté par
Block A | Inveralmond Grove
Hmm, il semble y avoir eu une erreur lors de l’envoi de votre message. Veuillez réessayer.
Merci! Votre message a été envoyé.


