Se Connecter/S’inscrire
Votre courriel a été envoyé.
James Madison Highway & I64
Zion Crossroads, VA 22942
Zion Crossroads · Terrain À vendre
·
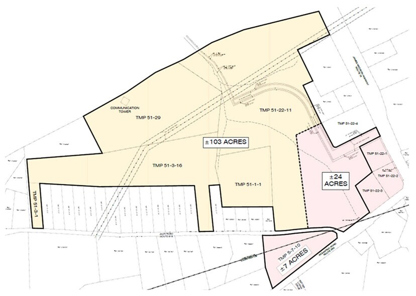
128,70 AC


Certaines informations ont été traduites automatiquement.
Faits saillants de l'investissement
- 13 milles à l'est de Charlottesville et 56 milles à l'ouest de Richmond, en Virginie.
- Le commerce de détail environnant est loué à 100 %
- Façades sur l'Interstate 64, l'autoroute James Madison et les routes 15 et 250 des États-Unis.
- Possibilité de développement multifamilial.
Résumé de l'annonce
Découvrez une excellente occasion de développement à usage mixte sur l'autoroute James Madison, à Zions Crossroads, qui comprend 128,7 acres de terrain. Idéalement situé à 13 milles à l'est de Charlottesville et à 56 milles à l'ouest de Richmond, en Virginie, ce site jouit d'une excellente façade sur l'Interstate 64, l'autoroute James Madison et la route 15 des États-Unis et la route 250. Zonée C-2 avec égouts publics et eau disponibles sur place, la propriété est parfaite pour le développement multifamilial. Profitez de la proximité d'un supercentre et d'un centre de distribution Walmart à volume élevé, ainsi que de grands détaillants comme Lowes, McDonald's, Burger King, Arby, Taco Bell et Sheetz. Cet emplacement offre un potentiel inégalé pour une communauté à usages mixtes florissante.
Faits sur la propriété
1 Lot disponible
Lot
| Taille du lot | 128,70 AC |
| Taille du lot | 128,70 AC |
Découvrez une excellente occasion de développement à usage mixte sur l'autoroute James Madison, à Zions Crossroads, qui comprend 128,7 acres de terrain.
1 de 3
Vidéos
Visite extérieure 3D Matterport
Visite 3D Matterport
Photos
Vue depuis la rue
Rue
Carte
