Se Connecter/S’inscrire
Votre courriel a été envoyé.
Land at Park Road - Consented Mixed-Use Development Opportunity Lot • Terrain commercial • 0,94 Acres • Faringdon SN7 7FU


Certaines informations ont été traduites automatiquement.
FAITS SAILLANTS DE L'INVESTISSEMENT
- The site is approximately 0.94acres comprising of grassland
- The site benefits from planning permission (P17/V2407/FUL)
- Offers invited on an Unconditional or Subject to Planning offers basis
- Bought to the market on behalf of Ede Holdings Limited and Howard Tenens Distribution Limited
RÉSUMÉ DE L'ANNONCE
The Site is approximately 0.94 acres (0.38 ha) of grassland which is broadly
rectangular in shape.
The north-west part of the site was previously occupied by two houses
(numbers. 33 and 35 Park Road) which were demolished a number of years
ago to enable the redevelopment of the site. The site is therefore considered
to be previously developed (or brownfield) land.
The site is accessed off Park Road, off the access that was constructed as
part of the residential Ede Homes scheme on adjoining land to the south-east.
To the north and west of the site there is a well established industrial park,
which can be accessed via Pioneer Road. Occupiers of these industrial units
include: Toolstation Faringdon, Protyre Faringdon, DMW Landscapes and
Aspect Woodworking.
To the south of the site is the Bloor Homes residential development ‘Oriel
Gardens’. Whilst part of this development is still under construction, there are
some units now available for purchase. Included within the wider outline
application for the Bloor Homes scheme was an extra care facility. This is 60
apartment Extra Care facility is currently under construction by Housing 21.
rectangular in shape.
The north-west part of the site was previously occupied by two houses
(numbers. 33 and 35 Park Road) which were demolished a number of years
ago to enable the redevelopment of the site. The site is therefore considered
to be previously developed (or brownfield) land.
The site is accessed off Park Road, off the access that was constructed as
part of the residential Ede Homes scheme on adjoining land to the south-east.
To the north and west of the site there is a well established industrial park,
which can be accessed via Pioneer Road. Occupiers of these industrial units
include: Toolstation Faringdon, Protyre Faringdon, DMW Landscapes and
Aspect Woodworking.
To the south of the site is the Bloor Homes residential development ‘Oriel
Gardens’. Whilst part of this development is still under construction, there are
some units now available for purchase. Included within the wider outline
application for the Bloor Homes scheme was an extra care facility. This is 60
apartment Extra Care facility is currently under construction by Housing 21.
FAITS SUR LA PROPRIÉTÉ
| Type de vente | Investissement | Sous-type de propriété | Terrain commercial |
| Ancienneté | Pleine propriété | Utilisation proposée | Bureau |
| Nombre de lots | 1 | Taille totale du lot | 0,94 AC |
| Type de propriété | Terrain |
| Type de vente | Investissement |
| Ancienneté | Pleine propriété |
| Nombre de lots | 1 |
| Type de propriété | Terrain |
| Sous-type de propriété | Terrain commercial |
| Utilisation proposée | Bureau |
| Taille totale du lot | 0,94 AC |
1 LOT DISPONIBLE
Lot
| Taille du lot | 0,94 AC |
| Taille du lot | 0,94 AC |
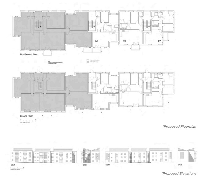
The site benefits from planning permission (P17/V2407/FUL) for the development of 9 apartments and an office. No affordable housing requirements within the existing consent.
DESCRIPTION
This lot comprises 0.94 acres with planning permission for a development of 9 apartments and an office building.
1 1
1 de 3
VIDÉOS
VISITE EXTÉRIEURE 3D MATTERPORT
VISITE 3D MATTERPORT
PHOTOS
VUE DEPUIS LA RUE
RUE
CARTE
1 de 1
Présenté par
Land at Park Road - Consented Mixed-Use Development Opportunity
Vous êtes déjà membre? Connectez-vous
Hmm, il semble y avoir eu une erreur lors de l’envoi de votre message. Veuillez réessayer.
Merci! Votre message a été envoyé.
