Votre courriel a été envoyé.
Certaines informations ont été traduites automatiquement.
Faits saillants de l'investissement
- Emplacement mairie Levallois
- Quartier dynamique
- Immeuble indépendant
Résumé de l'annonce
L’immeuble est indépendant et implanté en plein cœur de Levallois-Perret, dans un environnement urbain attractif et bien pourvu en commerces, services, établissements scolaires et équipements de proximité. Les accès sont facilités par une offre de transports particulièrement dense, assurant une excellente connexion avec Paris et les communes limitrophes. Le quartier se distingue par son activité tertiaire établie et une forte demande pour les surfaces professionnelles.
1 Unité disponible
Unité undefined
| Taille de l’unité | 2 120 pi² | Type de vente | Propriétaire utilisateur |
| Utilisation du condo | Bureau |
| Taille de l’unité | 2 120 pi² |
| Utilisation du condo | Bureau |
| Type de vente | Propriétaire utilisateur |
Description
Bureaux à vendre - Mairie de Levallois
En plein coeur de Levallois, idéalement situé au pied de la Mairie, cet actif bénéficie d’un bel emplacement, au sein d'un quartier dynamique, commerçant et parfaitement desservi par les transports (métro, bus, gare SNCF).
L'espace est modulable, peut être décloisonné et offrir de beaux volumes. Un bien rare sur le marché, combinant localisation stratégique et conditions attractives.
Disponibilité : Immédiate
Notes sur la vente
Excellente opportunité pour un propriétaire occupant.
Espace lumineux et moderne avec un design contemporain.
Découvrez un aménagement spacieux et moderne pour votre espace de travail.
Bureau moderne avec espace de travail lumineux et accueillant.
Découvrez un espace de vie moderne et bien agencé.
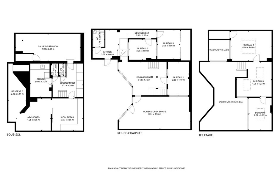
Plan d'étage spacieux et fonctionnel pour un cadre de travail agréable.
Plan détaillé de cet espace fonctionnel et moderne.
Faits sur la propriété
| Taille totale du bâtiment | 10,000 - 60 000 pi² | Classe d’immeuble | B |
| Type de propriété | Immeuble residentiel (Condo) | Planchers | 7 |
| Sous-type de propriété | Appartement | Année de construction | 1900 - 1909 |
| Taille totale du bâtiment | 10,000 - 60 000 pi² |
| Type de propriété | Immeuble residentiel (Condo) |
| Sous-type de propriété | Appartement |
| Classe d’immeuble | B |
| Planchers | 7 |
| Année de construction | 1900 - 1909 |
Commodités
Commodités du site
- Cour
- Entrée par clef intelligente
Présenté par
"92300 Levallois-Perret"
Hmm, il semble y avoir eu une erreur lors de l’envoi de votre message. Veuillez réessayer.
Merci! Votre message a été envoyé.



