Se Connecter/S’inscrire
Votre courriel a été envoyé.
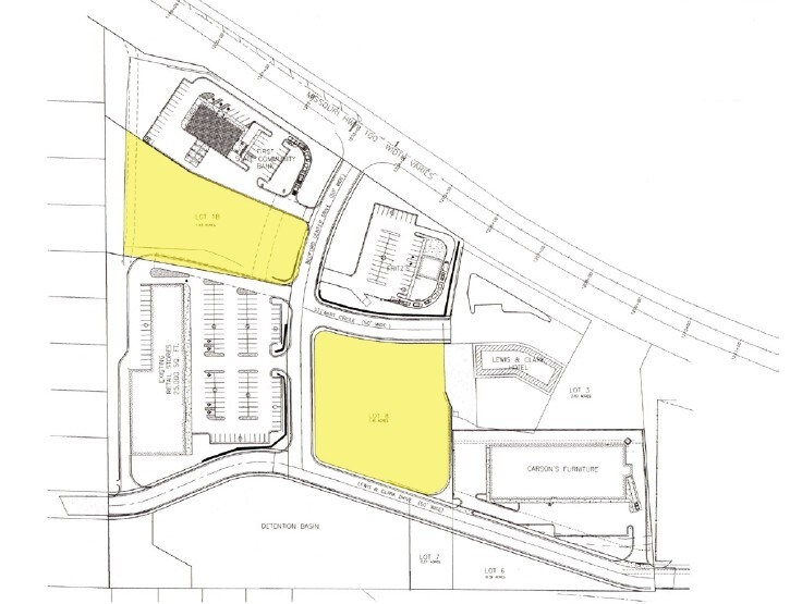
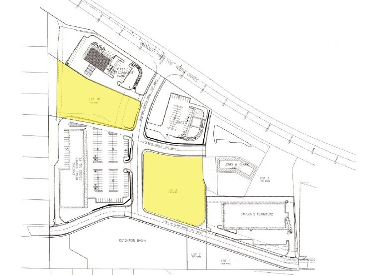
Bedford Center Lewis And Clark Dr Terrain à louer de 1,43–2,89 acres • Terrain commercial • Washington, MO 63090

Certaines informations ont été traduites automatiquement.
LOT Disponible
Afficher les taux de location en
| Taux de location |
|
Taille du lot | 1,43 à 2,89 AC |
| Durée du bail | Négociable |
| Taux de location | |
| Durée du bail | Négociable |
| Taille du lot | 1,43 à 2,89 AC |
Lot - 1.43 AC Lot - 1.46 AC FOR SALE OR FOR LEASE
Faits sur la propriété
1 1
Assez praticable à pied
40/100
Exceptionnellement facile d’accès en voiture
100/100
Assez praticable en vélo
30/100
1 de 2
Vidéos
Visite extérieure 3D Matterport
Visite 3D Matterport
Photos
Vue depuis la rue
Rue
Carte
1 de 1
Présenté par
Bedford Center | Lewis And Clark Dr
Vous êtes déjà membre? Connectez-vous
Hmm, il semble y avoir eu une erreur lors de l’envoi de votre message. Veuillez réessayer.
Merci! Votre message a été envoyé.
