Votre courriel a été envoyé.
Lot #38 James Burr blvd 5 100–10 200 pi² d'espace disponible • Flex • Kearneysville, WV 25430



Certaines informations ont été traduites automatiquement.
Faits saillants
- Situated within Burr Business Park
- Located in Jefferson County, WV, offering lower operating costs, favorable zoning, and proximity to a skilled regional labor pool
- Immediate access to I-81 via WV Route 9, providing efficient connectivity to Washington, D.C., Baltimore
Tous les espaces disponibles(2)
Afficher les taux de location en
- Espace
- Taille
- Terme
- Taux de location
- Utilisation de l’espace
- État
- Disponible
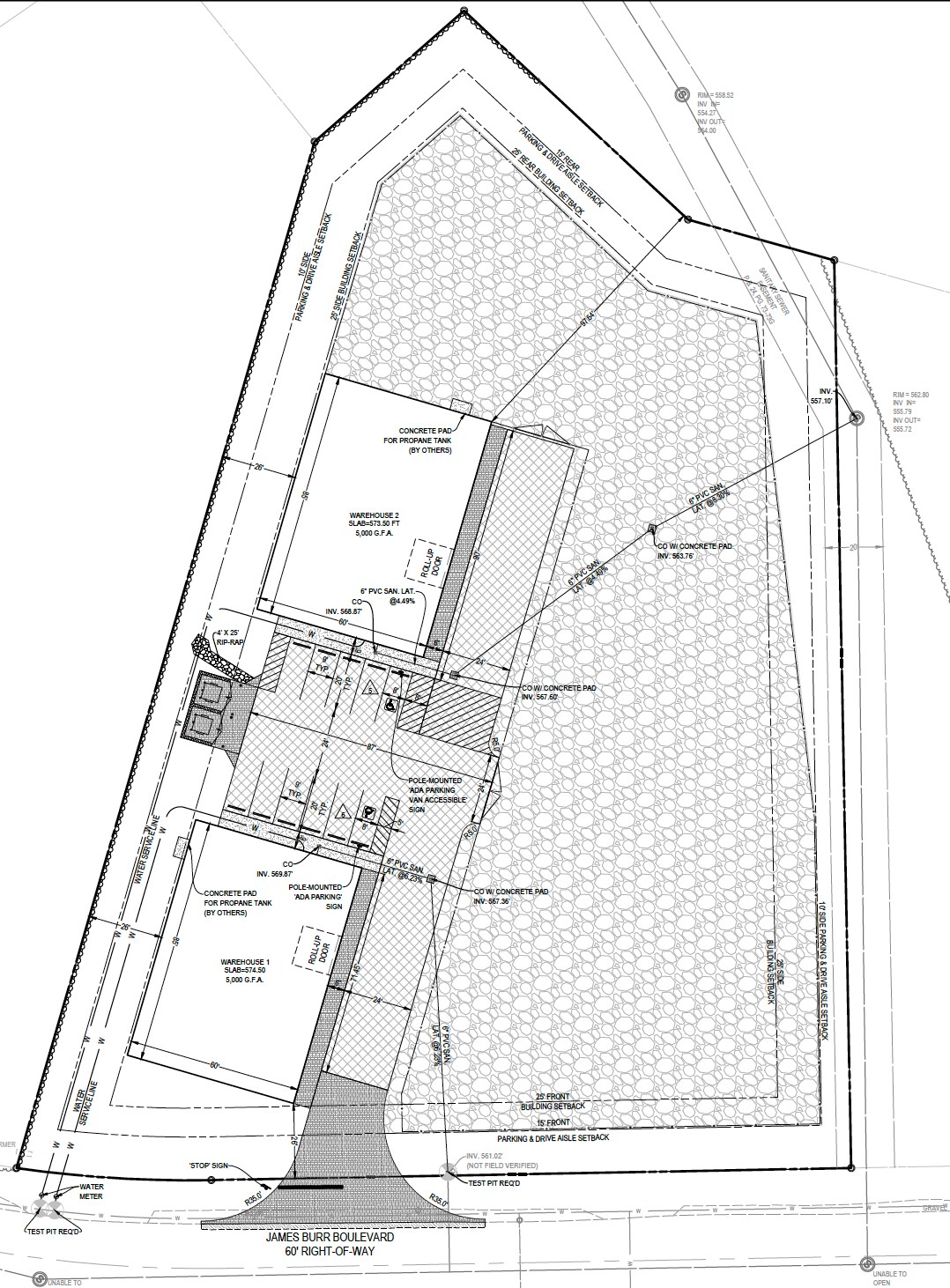
Burr Business Park – Lot 38 is a new industrial development consisting of two ±5,000 square foot warehouse/office buildings located within the Mid-Atlantic I-81 Logistics Corridor. The project is designed to accommodate light manufacturing, contractor services, warehousing, and flex industrial users seeking efficient, small-bay space, with approximately ±1 acre of secured, fenced outdoor storage available on site. The property is strategically located in Burr Business Park in Jefferson County, West Virginia, with direct access to Interstate 81 via WV Route 9, providing seamless north–south connectivity throughout the Mid-Atlantic region. The site is approximately 70 miles from Washington, D.C., 80 miles from Baltimore. The development offers modern construction, flexible layouts, dedicated parking, and yard access, making it well-suited for contractors, logistics users, and industrial tenants requiring both indoor warehouse space and outdoor storage capacity. Both buildings are available for lease or owner occupancy, providing a rare opportunity to secure small-bay industrial space with fenced yard area in a supply-constrained market.
- Le taux de location ne comprend pas les services publics, les services de bâtiment ou les dépenses immobilières.
- Peut être associé à un ou plusieurs espaces supplémentaires pour obtenir jusqu’à 10 200 pi² d’espace adjacent.
- Aire de réception
- Éclairage d’urgence
- Espace en excellent état
- Air central et chauffage
- Salle de bains privée
- Conforme DDA
- Espace en excellent état
- Air central et chauffage
- Éclairage d’urgence
- Conforme DDA
- Peut être associé à un ou plusieurs espaces supplémentaires pour obtenir jusqu’à 10 200 pi² d’espace adjacent.
- Salle de bains privée
- Éclairage encastré
- Accessible aux fauteuils roulants
| Espace | Taille | Terme | Taux de location | Utilisation de l’espace | État | Disponible |
| 1er étage | 5 100 pi² | Négociable | Sur demande Sur demande Sur demande Sur demande | Flex | construction complète | À déterminer |
| 1er étage | 5 100 pi² | Négociable | Sur demande Sur demande Sur demande Sur demande | Flex | construction complète | À déterminer |
1er étage
| Taille |
| 5 100 pi² |
| Terme |
| Négociable |
| Taux de location |
| Sur demande Sur demande Sur demande Sur demande |
| Utilisation de l’espace |
| Flex |
| État |
| construction complète |
| Disponible |
| À déterminer |
1er étage
| Taille |
| 5 100 pi² |
| Terme |
| Négociable |
| Taux de location |
| Sur demande Sur demande Sur demande Sur demande |
| Utilisation de l’espace |
| Flex |
| État |
| construction complète |
| Disponible |
| À déterminer |
1er étage
| Taille | 5 100 pi² |
| Terme | Négociable |
| Taux de location | Sur demande |
| Utilisation de l’espace | Flex |
| État | construction complète |
| Disponible | À déterminer |
Burr Business Park – Lot 38 is a new industrial development consisting of two ±5,000 square foot warehouse/office buildings located within the Mid-Atlantic I-81 Logistics Corridor. The project is designed to accommodate light manufacturing, contractor services, warehousing, and flex industrial users seeking efficient, small-bay space, with approximately ±1 acre of secured, fenced outdoor storage available on site. The property is strategically located in Burr Business Park in Jefferson County, West Virginia, with direct access to Interstate 81 via WV Route 9, providing seamless north–south connectivity throughout the Mid-Atlantic region. The site is approximately 70 miles from Washington, D.C., 80 miles from Baltimore. The development offers modern construction, flexible layouts, dedicated parking, and yard access, making it well-suited for contractors, logistics users, and industrial tenants requiring both indoor warehouse space and outdoor storage capacity. Both buildings are available for lease or owner occupancy, providing a rare opportunity to secure small-bay industrial space with fenced yard area in a supply-constrained market.
- Le taux de location ne comprend pas les services publics, les services de bâtiment ou les dépenses immobilières.
- Espace en excellent état
- Peut être associé à un ou plusieurs espaces supplémentaires pour obtenir jusqu’à 10 200 pi² d’espace adjacent.
- Air central et chauffage
- Aire de réception
- Salle de bains privée
- Éclairage d’urgence
- Conforme DDA
1er étage
| Taille | 5 100 pi² |
| Terme | Négociable |
| Taux de location | Sur demande |
| Utilisation de l’espace | Flex |
| État | construction complète |
| Disponible | À déterminer |
- Espace en excellent état
- Peut être associé à un ou plusieurs espaces supplémentaires pour obtenir jusqu’à 10 200 pi² d’espace adjacent.
- Air central et chauffage
- Salle de bains privée
- Éclairage d’urgence
- Éclairage encastré
- Conforme DDA
- Accessible aux fauteuils roulants
Aperçu de la propriété
Burr Business Park – Lot 38 is a new industrial development consisting of two ±5,000 square foot warehouse/office buildings located within the Mid-Atlantic I-81 Logistics Corridor. The project is designed to accommodate light manufacturing, contractor services, warehousing, and flex industrial users seeking efficient, small-bay space, with approximately ±1 acre of secured, fenced outdoor storage available on site. The property is strategically located in Burr Business Park in Jefferson County, West Virginia, with direct access to Interstate 81 via WV Route 9, providing seamless north–south connectivity throughout the Mid-Atlantic region. The site is approximately 70 miles from Washington, D.C., 80 miles from Baltimore. The development offers modern construction, flexible layouts, dedicated parking, and yard access, making it well-suited for contractors, logistics users, and industrial tenants requiring both indoor warehouse space and outdoor storage capacity. Both buildings are available for lease or owner occupancy, providing a rare opportunity to secure small-bay industrial space with fenced yard area in a supply-constrained market.
Faits sur la propriété
Présenté par
Shubha LLC
Lot #38 James Burr blvd
Hmm, il semble y avoir eu une erreur lors de l’envoi de votre message. Veuillez réessayer.
Merci! Votre message a été envoyé.
