Votre courriel a été envoyé.
Certaines informations ont été traduites automatiquement.
FAITS SAILLANTS
- Hub de trois bâtiments
- Le ratio de parking est de 1 place pour 68 m²
- Accès facile aux transports en commun
TOUS LES ESPACES DISPONIBLES(5)
Afficher les taux de location en
- ESPACE
- TAILLE
- TERME
-
TAUX DE LOCATION
- UTILISATION DE L’ESPACE
- ÉTAT
- DISPONIBLE
Le programme SOCONA propose des bureaux entièrement rénovés, offrant une surface totale de 17 524 m², divisibles à partir de 2 484 m². Chaque plateau est modulable, permettant une personnalisation selon les besoins des entreprises. Les bureaux bénéficient de grandes façades vitrées, assurant une luminosité optimale. Le bâtiment est équipé de la climatisation, avec des ascenseurs desservant tous les niveaux. Des espaces verts, des terrasses et un jardin intérieur créent un cadre de travail agréable et apaisant.
- Honoraires preneur: 15,00% du taux de location annuel
- Dépôt de garantie: 3 mois de taux de location
- Disposition du plan d’étage ouverte en général
- Bureaux partitionnés
- Climatisation centrale
- Balcon
- Les plateaux sont modulables
-
Charges locatives: 5,29 $ CAD/pi²/an 0,44 $ CAD/pi²/mois 217 100 $ CAD/an 18 092 $ CAD/mois
- Entièrement construit comme Bureau standard
- Convient pour 104 à 318 personnes
- Peut être associé à un ou plusieurs espaces supplémentaires pour obtenir jusqu’à 188 616 pi² d’espace adjacent.
- Accès aux ascenseurs
- Bureaux entièrement rénovés
Le programme SOCONA propose des bureaux entièrement rénovés, offrant une surface totale de 17 524 m², divisibles à partir de 2 484 m². Chaque plateau est modulable, permettant une personnalisation selon les besoins des entreprises. Les bureaux bénéficient de grandes façades vitrées, assurant une luminosité optimale. Le bâtiment est équipé de la climatisation, avec des ascenseurs desservant tous les niveaux. Des espaces verts, des terrasses et un jardin intérieur créent un cadre de travail agréable et apaisant.
- Honoraires preneur: 15,00% du taux de location annuel
- Dépôt de garantie: 3 mois de taux de location
- Disposition du plan d’étage ouverte en général
- Bureaux partitionnés
- Climatisation centrale
- Balcon
- Les plateaux sont modulables
-
Charges locatives: 5,29 $ CAD/pi²/an 0,44 $ CAD/pi²/mois 207 713 $ CAD/an 17 309 $ CAD/mois
- Entièrement construit comme Bureau standard
- Convient pour 99 à 305 personnes
- Peut être associé à un ou plusieurs espaces supplémentaires pour obtenir jusqu’à 188 616 pi² d’espace adjacent.
- Accès aux ascenseurs
- Bureaux entièrement rénovés
Le programme SOCONA propose des bureaux entièrement rénovés, offrant une surface totale de 17 524 m², divisibles à partir de 2 484 m². Chaque plateau est modulable, permettant une personnalisation selon les besoins des entreprises. Les bureaux bénéficient de grandes façades vitrées, assurant une luminosité optimale. Le bâtiment est équipé de la climatisation, avec des ascenseurs desservant tous les niveaux. Des espaces verts, des terrasses et un jardin intérieur créent un cadre de travail agréable et apaisant.
- Honoraires preneur: 15,00% du taux de location annuel
- Dépôt de garantie: 3 mois de taux de location
- Disposition du plan d’étage ouverte en général
- Bureaux partitionnés
- Climatisation centrale
- Balcon
- Les plateaux sont modulables
-
Charges locatives: 5,29 $ CAD/pi²/an 0,44 $ CAD/pi²/mois 215 108 $ CAD/an 17 926 $ CAD/mois
- Entièrement construit comme Bureau standard
- Convient pour 103 à 316 personnes
- Peut être associé à un ou plusieurs espaces supplémentaires pour obtenir jusqu’à 188 616 pi² d’espace adjacent.
- Accès aux ascenseurs
- Bureaux entièrement rénovés
Le programme SOCONA propose des bureaux entièrement rénovés, offrant une surface totale de 17 524 m², divisibles à partir de 2 484 m². Chaque plateau est modulable, permettant une personnalisation selon les besoins des entreprises. Les bureaux bénéficient de grandes façades vitrées, assurant une luminosité optimale. Le bâtiment est équipé de la climatisation, avec des ascenseurs desservant tous les niveaux. Des espaces verts, des terrasses et un jardin intérieur créent un cadre de travail agréable et apaisant.
- Honoraires preneur: 15,00% du taux de location annuel
- Dépôt de garantie: 3 mois de taux de location
- Disposition du plan d’étage ouverte en général
- Bureaux partitionnés
- Climatisation centrale
- Balcon
- Les plateaux sont modulables
-
Charges locatives: 5,29 $ CAD/pi²/an 0,44 $ CAD/pi²/mois 215 677 $ CAD/an 17 973 $ CAD/mois
- Entièrement construit comme Bureau standard
- Convient pour 103 à 316 personnes
- Peut être associé à un ou plusieurs espaces supplémentaires pour obtenir jusqu’à 188 616 pi² d’espace adjacent.
- Accès aux ascenseurs
- Bureaux entièrement rénovés
Le programme SOCONA propose des bureaux entièrement rénovés, offrant une surface totale de 17 524 m², divisibles à partir de 2 484 m². Chaque plateau est modulable, permettant une personnalisation selon les besoins des entreprises. Les bureaux bénéficient de grandes façades vitrées, assurant une luminosité optimale. Le bâtiment est équipé de la climatisation, avec des ascenseurs desservant tous les niveaux. Des espaces verts, des terrasses et un jardin intérieur créent un cadre de travail agréable et apaisant.
- Honoraires preneur: 15,00% du taux de location annuel
- Dépôt de garantie: 3 mois de taux de location
- Disposition du plan d’étage ouverte en général
- Bureaux partitionnés
- Climatisation centrale
- Balcon
- Les plateaux sont modulables
-
Charges locatives: 5,29 $ CAD/pi²/an 0,44 $ CAD/pi²/mois 141 320 $ CAD/an 11 777 $ CAD/mois
- Entièrement construit comme Bureau standard
- Convient pour 68 à 207 personnes
- Peut être associé à un ou plusieurs espaces supplémentaires pour obtenir jusqu’à 188 616 pi² d’espace adjacent.
- Accès aux ascenseurs
- Bureaux entièrement rénovés
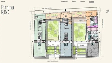
| Espace | Taille | Terme | Taux de location | Utilisation de l’espace | État | Disponible |
| RDC | 41 075 pi² | 9 ans | 31,71 $ CAD/HT-HC/pi²/an 2,64 $ CAD/HT-HC/pi²/mois 1 302 598 $ CAD/HT-HC/an 108 550 $ CAD/HT-HC/mois | Bureau | construction complète | Maintenant |
| 1er étage | 39 299 pi² | 9 ans | 31,71 $ CAD/HT-HC/pi²/an 2,64 $ CAD/HT-HC/pi²/mois 1 246 275 $ CAD/HT-HC/an 103 856 $ CAD/HT-HC/mois | Bureau | construction complète | Maintenant |
| 2e étage | 40 698 pi² | 9 ans | 31,71 $ CAD/HT-HC/pi²/an 2,64 $ CAD/HT-HC/pi²/mois 1 290 651 $ CAD/HT-HC/an 107 554 $ CAD/HT-HC/mois | Bureau | construction complète | Maintenant |
| 3e étage | 40 806 pi² | 9 ans | 31,71 $ CAD/HT-HC/pi²/an 2,64 $ CAD/HT-HC/pi²/mois 1 294 064 $ CAD/HT-HC/an 107 839 $ CAD/HT-HC/mois | Bureau | construction complète | Maintenant |
| 4e étage | 26 738 pi² | 9 ans | 31,71 $ CAD/HT-HC/pi²/an 2,64 $ CAD/HT-HC/pi²/mois 847 918 $ CAD/HT-HC/an 70 660 $ CAD/HT-HC/mois | Bureau | construction complète | Maintenant |
RDC
| Taille |
| 41 075 pi² |
| Terme |
| 9 ans |
|
Taux de location
|
| 31,71 $ CAD/HT-HC/pi²/an 2,64 $ CAD/HT-HC/pi²/mois 1 302 598 $ CAD/HT-HC/an 108 550 $ CAD/HT-HC/mois |
| Utilisation de l’espace |
| Bureau |
| État |
| construction complète |
| Disponible |
| Maintenant |
1er étage
| Taille |
| 39 299 pi² |
| Terme |
| 9 ans |
|
Taux de location
|
| 31,71 $ CAD/HT-HC/pi²/an 2,64 $ CAD/HT-HC/pi²/mois 1 246 275 $ CAD/HT-HC/an 103 856 $ CAD/HT-HC/mois |
| Utilisation de l’espace |
| Bureau |
| État |
| construction complète |
| Disponible |
| Maintenant |
2e étage
| Taille |
| 40 698 pi² |
| Terme |
| 9 ans |
|
Taux de location
|
| 31,71 $ CAD/HT-HC/pi²/an 2,64 $ CAD/HT-HC/pi²/mois 1 290 651 $ CAD/HT-HC/an 107 554 $ CAD/HT-HC/mois |
| Utilisation de l’espace |
| Bureau |
| État |
| construction complète |
| Disponible |
| Maintenant |
3e étage
| Taille |
| 40 806 pi² |
| Terme |
| 9 ans |
|
Taux de location
|
| 31,71 $ CAD/HT-HC/pi²/an 2,64 $ CAD/HT-HC/pi²/mois 1 294 064 $ CAD/HT-HC/an 107 839 $ CAD/HT-HC/mois |
| Utilisation de l’espace |
| Bureau |
| État |
| construction complète |
| Disponible |
| Maintenant |
4e étage
| Taille |
| 26 738 pi² |
| Terme |
| 9 ans |
|
Taux de location
|
| 31,71 $ CAD/HT-HC/pi²/an 2,64 $ CAD/HT-HC/pi²/mois 847 918 $ CAD/HT-HC/an 70 660 $ CAD/HT-HC/mois |
| Utilisation de l’espace |
| Bureau |
| État |
| construction complète |
| Disponible |
| Maintenant |
RDC
| Taille | 41 075 pi² |
| Terme | 9 ans |
|
Taux de location
|
31,71 $ CAD/HT-HC/pi²/an |
| Utilisation de l’espace | Bureau |
| État | construction complète |
| Disponible | Maintenant |
Le programme SOCONA propose des bureaux entièrement rénovés, offrant une surface totale de 17 524 m², divisibles à partir de 2 484 m². Chaque plateau est modulable, permettant une personnalisation selon les besoins des entreprises. Les bureaux bénéficient de grandes façades vitrées, assurant une luminosité optimale. Le bâtiment est équipé de la climatisation, avec des ascenseurs desservant tous les niveaux. Des espaces verts, des terrasses et un jardin intérieur créent un cadre de travail agréable et apaisant.
- Honoraires preneur: 15,00% du taux de location annuel
-
Charges locatives: 5,29 $ CAD/pi²/an 0,44 $ CAD/pi²/mois 217 100 $ CAD/an 18 092 $ CAD/mois
- Dépôt de garantie: 3 mois de taux de location
- Entièrement construit comme Bureau standard
- Disposition du plan d’étage ouverte en général
- Convient pour 104 à 318 personnes
- Bureaux partitionnés
- Peut être associé à un ou plusieurs espaces supplémentaires pour obtenir jusqu’à 188 616 pi² d’espace adjacent.
- Climatisation centrale
- Accès aux ascenseurs
- Balcon
- Bureaux entièrement rénovés
- Les plateaux sont modulables
1er étage
| Taille | 39 299 pi² |
| Terme | 9 ans |
|
Taux de location
|
31,71 $ CAD/HT-HC/pi²/an |
| Utilisation de l’espace | Bureau |
| État | construction complète |
| Disponible | Maintenant |
Le programme SOCONA propose des bureaux entièrement rénovés, offrant une surface totale de 17 524 m², divisibles à partir de 2 484 m². Chaque plateau est modulable, permettant une personnalisation selon les besoins des entreprises. Les bureaux bénéficient de grandes façades vitrées, assurant une luminosité optimale. Le bâtiment est équipé de la climatisation, avec des ascenseurs desservant tous les niveaux. Des espaces verts, des terrasses et un jardin intérieur créent un cadre de travail agréable et apaisant.
- Honoraires preneur: 15,00% du taux de location annuel
-
Charges locatives: 5,29 $ CAD/pi²/an 0,44 $ CAD/pi²/mois 207 713 $ CAD/an 17 309 $ CAD/mois
- Dépôt de garantie: 3 mois de taux de location
- Entièrement construit comme Bureau standard
- Disposition du plan d’étage ouverte en général
- Convient pour 99 à 305 personnes
- Bureaux partitionnés
- Peut être associé à un ou plusieurs espaces supplémentaires pour obtenir jusqu’à 188 616 pi² d’espace adjacent.
- Climatisation centrale
- Accès aux ascenseurs
- Balcon
- Bureaux entièrement rénovés
- Les plateaux sont modulables
2e étage
| Taille | 40 698 pi² |
| Terme | 9 ans |
|
Taux de location
|
31,71 $ CAD/HT-HC/pi²/an |
| Utilisation de l’espace | Bureau |
| État | construction complète |
| Disponible | Maintenant |
Le programme SOCONA propose des bureaux entièrement rénovés, offrant une surface totale de 17 524 m², divisibles à partir de 2 484 m². Chaque plateau est modulable, permettant une personnalisation selon les besoins des entreprises. Les bureaux bénéficient de grandes façades vitrées, assurant une luminosité optimale. Le bâtiment est équipé de la climatisation, avec des ascenseurs desservant tous les niveaux. Des espaces verts, des terrasses et un jardin intérieur créent un cadre de travail agréable et apaisant.
- Honoraires preneur: 15,00% du taux de location annuel
-
Charges locatives: 5,29 $ CAD/pi²/an 0,44 $ CAD/pi²/mois 215 108 $ CAD/an 17 926 $ CAD/mois
- Dépôt de garantie: 3 mois de taux de location
- Entièrement construit comme Bureau standard
- Disposition du plan d’étage ouverte en général
- Convient pour 103 à 316 personnes
- Bureaux partitionnés
- Peut être associé à un ou plusieurs espaces supplémentaires pour obtenir jusqu’à 188 616 pi² d’espace adjacent.
- Climatisation centrale
- Accès aux ascenseurs
- Balcon
- Bureaux entièrement rénovés
- Les plateaux sont modulables
3e étage
| Taille | 40 806 pi² |
| Terme | 9 ans |
|
Taux de location
|
31,71 $ CAD/HT-HC/pi²/an |
| Utilisation de l’espace | Bureau |
| État | construction complète |
| Disponible | Maintenant |
Le programme SOCONA propose des bureaux entièrement rénovés, offrant une surface totale de 17 524 m², divisibles à partir de 2 484 m². Chaque plateau est modulable, permettant une personnalisation selon les besoins des entreprises. Les bureaux bénéficient de grandes façades vitrées, assurant une luminosité optimale. Le bâtiment est équipé de la climatisation, avec des ascenseurs desservant tous les niveaux. Des espaces verts, des terrasses et un jardin intérieur créent un cadre de travail agréable et apaisant.
- Honoraires preneur: 15,00% du taux de location annuel
-
Charges locatives: 5,29 $ CAD/pi²/an 0,44 $ CAD/pi²/mois 215 677 $ CAD/an 17 973 $ CAD/mois
- Dépôt de garantie: 3 mois de taux de location
- Entièrement construit comme Bureau standard
- Disposition du plan d’étage ouverte en général
- Convient pour 103 à 316 personnes
- Bureaux partitionnés
- Peut être associé à un ou plusieurs espaces supplémentaires pour obtenir jusqu’à 188 616 pi² d’espace adjacent.
- Climatisation centrale
- Accès aux ascenseurs
- Balcon
- Bureaux entièrement rénovés
- Les plateaux sont modulables
4e étage
| Taille | 26 738 pi² |
| Terme | 9 ans |
|
Taux de location
|
31,71 $ CAD/HT-HC/pi²/an |
| Utilisation de l’espace | Bureau |
| État | construction complète |
| Disponible | Maintenant |
Le programme SOCONA propose des bureaux entièrement rénovés, offrant une surface totale de 17 524 m², divisibles à partir de 2 484 m². Chaque plateau est modulable, permettant une personnalisation selon les besoins des entreprises. Les bureaux bénéficient de grandes façades vitrées, assurant une luminosité optimale. Le bâtiment est équipé de la climatisation, avec des ascenseurs desservant tous les niveaux. Des espaces verts, des terrasses et un jardin intérieur créent un cadre de travail agréable et apaisant.
- Honoraires preneur: 15,00% du taux de location annuel
-
Charges locatives: 5,29 $ CAD/pi²/an 0,44 $ CAD/pi²/mois 141 320 $ CAD/an 11 777 $ CAD/mois
- Dépôt de garantie: 3 mois de taux de location
- Entièrement construit comme Bureau standard
- Disposition du plan d’étage ouverte en général
- Convient pour 68 à 207 personnes
- Bureaux partitionnés
- Peut être associé à un ou plusieurs espaces supplémentaires pour obtenir jusqu’à 188 616 pi² d’espace adjacent.
- Climatisation centrale
- Accès aux ascenseurs
- Balcon
- Bureaux entièrement rénovés
- Les plateaux sont modulables
APERÇU DE LA PROPRIÉTÉ
L'immeuble SOCONA se compose de trois bâtiments indépendants, organisés autour de vastes patios et d'un jardin intérieur, favorisant une ambiance campus. Il est situé à proximité du hub de transport de Vaise, offrant un accès facile aux transports en commun et aux principaux axes routiers. Le bâtiment bénéficie d'une certification THPE, garantissant une consommation énergétique maîtrisée. Des services tels que des restaurants, une salle de sport et un pôle services sont disponibles sur site. Le ratio de parking est de 1 place pour 68 m², avec des places en sous-sol disponibles.
- Concierge
- Garderie
- Restaurant
- Exposition directe à l'ascenseur
- Douches
- Plafond suspendu
- Climatisation
- Balcon
FAITS SUR LA PROPRIÉTÉ
Présenté par
"69009 Lyon"
Hmm, il semble y avoir eu une erreur lors de l’envoi de votre message. Veuillez réessayer.
Merci! Votre message a été envoyé.










