Votre courriel a été envoyé.
69003 Lyon 65–9 752 pi² d'espace disponible • Bureau



Certaines informations ont été traduites automatiquement.
Faits saillants
- Proche Part-Dieu
- Accès transports variés
- Quartier dynamique
Tous les espaces disponibles(4)
Afficher les taux de location en
- Espace
- Taille
- Terme
-
Taux de location
- Utilisation de l’espace
- Aménagement
- Disponible
Cet espace en rez-de-chaussée bénéficie d’une excellente visibilité grâce à son linéaire de vitrine, idéal pour accueillir vos clients ou mettre en valeur votre activité. Il dispose d’une configuration modulable permettant d’adapter les bureaux selon vos besoins, avec une partie annexe indépendante pour créer un espace dédié, une salle de réunion ou un bureau privé. Les prestations incluent la climatisation réversible, le câblage informatique et la fibre optique pour un confort optimal. Six garages sont disponibles en option pour faciliter le stationnement.
- Honoraires preneur: 20,00% du taux de location annuel
- Dépôt de garantie: 3 mois de taux de location
- Entièrement construit comme Bureau standard
- Bureaux partitionnés
- Connectivité Wi-Fi
- Accessible aux fauteuils roulants
- Annexe indépendante
-
Charges locatives: 1,27 $ CAD/pi²/an 0,11 $ CAD/pi²/mois 3 136 $ CAD/an 261,32 $ CAD/mois
-
Taxe foncière: 1,79 $ CAD/pi²/an 0,15 $ CAD/pi²/mois 4 427 $ CAD/an 368,94 $ CAD/mois
- Disposition du plan d’étage ouverte en général
- Espace en excellent état
- Installations WC abandonnées
- Linéaire de vitrine
- 6 garages disponibles
Cet espace en rez-de-chaussée bénéficie d’une excellente visibilité grâce à son linéaire de vitrine, idéal pour accueillir vos clients ou mettre en valeur votre activité. Il dispose d’une configuration modulable permettant d’adapter les bureaux selon vos besoins, avec une partie annexe indépendante pour créer un espace dédié, une salle de réunion ou un bureau privé. Les prestations incluent la climatisation réversible, le câblage informatique et la fibre optique pour un confort optimal. Six garages sont disponibles en option pour faciliter le stationnement.
- Honoraires preneur: 20,00% du taux de location annuel
- Dépôt de garantie: 3 mois de taux de location
- Entièrement construit comme Bureau standard
- Bureaux partitionnés
- Climatisation centrale
- Installations WC abandonnées
- Linéaire de vitrine
- 6 garages disponibles
-
Charges locatives: 1,27 $ CAD/pi²/an 0,11 $ CAD/pi²/mois 6 135 $ CAD/an 511,27 $ CAD/mois
-
Taxe foncière: 1,79 $ CAD/pi²/an 0,15 $ CAD/pi²/mois 8 662 $ CAD/an 721,84 $ CAD/mois
- Disposition du plan d’étage ouverte en général
- Espace en excellent état
- Connectivité Wi-Fi
- Accessible aux fauteuils roulants
- Annexe indépendante
Espace garage de 6m².
- Honoraires preneur: 20,00% du taux de location annuel
- Dépôt de garantie: 3 mois de taux de location
- Entièrement construit comme Bureau standard
- Bureaux partitionnés
- Climatisation centrale
- Installations WC abandonnées
- Linéaire de vitrine
- 6 garages disponibles
-
Charges locatives: 1,27 $ CAD/pi²/an 0,11 $ CAD/pi²/mois 81,81 $ CAD/an 6,82 $ CAD/mois
-
Taxe foncière: 1,79 $ CAD/pi²/an 0,15 $ CAD/pi²/mois 115,49 $ CAD/an 9,62 $ CAD/mois
- Disposition du plan d’étage ouverte en général
- Espace en excellent état
- Connectivité Wi-Fi
- Accessible aux fauteuils roulants
- Annexe indépendante
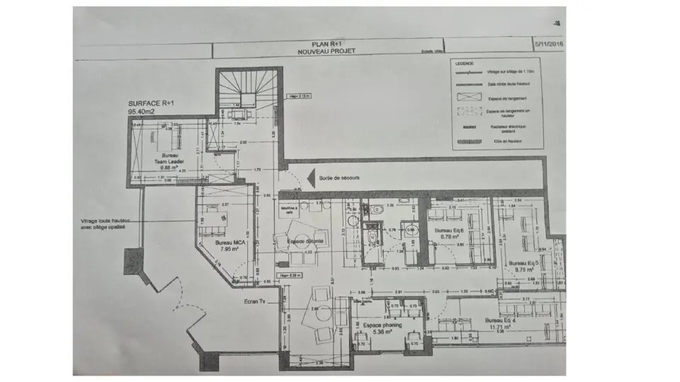
Cet espace au premier étage bénéficie d’une excellente visibilité grâce à son linéaire de vitrine, idéal pour accueillir vos clients ou mettre en valeur votre activité. Il dispose d’une configuration modulable permettant d’adapter les bureaux selon vos besoins, avec une partie annexe indépendante pour créer un espace dédié, une salle de réunion ou un bureau privé. Les prestations incluent la climatisation réversible, le câblage informatique et la fibre optique pour un confort optimal. Six garages sont disponibles en option pour faciliter le stationnement.
- Honoraires preneur: 20,00% du taux de location annuel
- Dépôt de garantie: 3 mois de taux de location
- Entièrement construit comme Bureau standard
- Bureaux partitionnés
- Climatisation centrale
- Installations WC abandonnées
- Linéaire de vitrine
- 6 garages disponibles
-
Charges locatives: 1,27 $ CAD/pi²/an 0,11 $ CAD/pi²/mois 2 999 $ CAD/an 249,95 $ CAD/mois
-
Taxe foncière: 1,79 $ CAD/pi²/an 0,15 $ CAD/pi²/mois 4 235 $ CAD/an 352,90 $ CAD/mois
- Disposition du plan d’étage ouverte en général
- Espace en excellent état
- Connectivité Wi-Fi
- Accessible aux fauteuils roulants
- Annexe indépendante
| Espace | Taille | Terme | Taux de location | Utilisation de l’espace | Aménagement | Disponible |
| RDC, ste Accueil - Réunion | 2 476 pi² | 3/6/9 | 31,39 $ CAD/HT-HC/pi²/an 2,62 $ CAD/HT-HC/pi²/mois 77 717 $ CAD/HT-HC/an 6 476 $ CAD/HT-HC/mois | Bureau | construction complète | Maintenant |
| RDC, ste Ensemble de bureaux | 4 844 pi² | 3/6/9 | 31,39 $ CAD/HT-HC/pi²/an 2,62 $ CAD/HT-HC/pi²/mois 152 056 $ CAD/HT-HC/an 12 671 $ CAD/HT-HC/mois | Bureau | construction complète | Maintenant |
| RDC, ste Garage | 65 pi² | 3/6/9 | 31,39 $ CAD/HT-HC/pi²/an 2,62 $ CAD/HT-HC/pi²/mois 2 027 $ CAD/HT-HC/an 168,95 $ CAD/HT-HC/mois | Bureau | construction complète | Maintenant |
| 1er étage, ste Bureaux - cuisine | 2 368 pi² | 3/6/9 | 31,39 $ CAD/HT-HC/pi²/an 2,62 $ CAD/HT-HC/pi²/mois 74 338 $ CAD/HT-HC/an 6 195 $ CAD/HT-HC/mois | Bureau | construction complète | Maintenant |
RDC, ste Accueil - Réunion
| Taille |
| 2 476 pi² |
| Terme |
| 3/6/9 |
|
Taux de location
|
| 31,39 $ CAD/HT-HC/pi²/an 2,62 $ CAD/HT-HC/pi²/mois 77 717 $ CAD/HT-HC/an 6 476 $ CAD/HT-HC/mois |
| Utilisation de l’espace |
| Bureau |
| Aménagement |
| construction complète |
| Disponible |
| Maintenant |
RDC, ste Ensemble de bureaux
| Taille |
| 4 844 pi² |
| Terme |
| 3/6/9 |
|
Taux de location
|
| 31,39 $ CAD/HT-HC/pi²/an 2,62 $ CAD/HT-HC/pi²/mois 152 056 $ CAD/HT-HC/an 12 671 $ CAD/HT-HC/mois |
| Utilisation de l’espace |
| Bureau |
| Aménagement |
| construction complète |
| Disponible |
| Maintenant |
RDC, ste Garage
| Taille |
| 65 pi² |
| Terme |
| 3/6/9 |
|
Taux de location
|
| 31,39 $ CAD/HT-HC/pi²/an 2,62 $ CAD/HT-HC/pi²/mois 2 027 $ CAD/HT-HC/an 168,95 $ CAD/HT-HC/mois |
| Utilisation de l’espace |
| Bureau |
| Aménagement |
| construction complète |
| Disponible |
| Maintenant |
1er étage, ste Bureaux - cuisine
| Taille |
| 2 368 pi² |
| Terme |
| 3/6/9 |
|
Taux de location
|
| 31,39 $ CAD/HT-HC/pi²/an 2,62 $ CAD/HT-HC/pi²/mois 74 338 $ CAD/HT-HC/an 6 195 $ CAD/HT-HC/mois |
| Utilisation de l’espace |
| Bureau |
| Aménagement |
| construction complète |
| Disponible |
| Maintenant |
RDC, ste Accueil - Réunion
| Taille | 2 476 pi² |
| Terme | 3/6/9 |
|
Taux de location
|
31,39 $ CAD/HT-HC/pi²/an |
| Utilisation de l’espace | Bureau |
| Aménagement | construction complète |
| Disponible | Maintenant |
Cet espace en rez-de-chaussée bénéficie d’une excellente visibilité grâce à son linéaire de vitrine, idéal pour accueillir vos clients ou mettre en valeur votre activité. Il dispose d’une configuration modulable permettant d’adapter les bureaux selon vos besoins, avec une partie annexe indépendante pour créer un espace dédié, une salle de réunion ou un bureau privé. Les prestations incluent la climatisation réversible, le câblage informatique et la fibre optique pour un confort optimal. Six garages sont disponibles en option pour faciliter le stationnement.
- Honoraires preneur: 20,00% du taux de location annuel
-
Charges locatives: 1,27 $ CAD/pi²/an 0,11 $ CAD/pi²/mois 3 136 $ CAD/an 261,32 $ CAD/mois
- Dépôt de garantie: 3 mois de taux de location
-
Taxe foncière: 1,79 $ CAD/pi²/an 0,15 $ CAD/pi²/mois 4 427 $ CAD/an 368,94 $ CAD/mois
- Entièrement construit comme Bureau standard
- Disposition du plan d’étage ouverte en général
- Bureaux partitionnés
- Espace en excellent état
- Connectivité Wi-Fi
- Installations WC abandonnées
- Accessible aux fauteuils roulants
- Linéaire de vitrine
- Annexe indépendante
- 6 garages disponibles
RDC, ste Ensemble de bureaux
| Taille | 4 844 pi² |
| Terme | 3/6/9 |
|
Taux de location
|
31,39 $ CAD/HT-HC/pi²/an |
| Utilisation de l’espace | Bureau |
| Aménagement | construction complète |
| Disponible | Maintenant |
Cet espace en rez-de-chaussée bénéficie d’une excellente visibilité grâce à son linéaire de vitrine, idéal pour accueillir vos clients ou mettre en valeur votre activité. Il dispose d’une configuration modulable permettant d’adapter les bureaux selon vos besoins, avec une partie annexe indépendante pour créer un espace dédié, une salle de réunion ou un bureau privé. Les prestations incluent la climatisation réversible, le câblage informatique et la fibre optique pour un confort optimal. Six garages sont disponibles en option pour faciliter le stationnement.
- Honoraires preneur: 20,00% du taux de location annuel
-
Charges locatives: 1,27 $ CAD/pi²/an 0,11 $ CAD/pi²/mois 6 135 $ CAD/an 511,27 $ CAD/mois
- Dépôt de garantie: 3 mois de taux de location
-
Taxe foncière: 1,79 $ CAD/pi²/an 0,15 $ CAD/pi²/mois 8 662 $ CAD/an 721,84 $ CAD/mois
- Entièrement construit comme Bureau standard
- Disposition du plan d’étage ouverte en général
- Bureaux partitionnés
- Espace en excellent état
- Climatisation centrale
- Connectivité Wi-Fi
- Installations WC abandonnées
- Accessible aux fauteuils roulants
- Linéaire de vitrine
- Annexe indépendante
- 6 garages disponibles
RDC, ste Garage
| Taille | 65 pi² |
| Terme | 3/6/9 |
|
Taux de location
|
31,39 $ CAD/HT-HC/pi²/an |
| Utilisation de l’espace | Bureau |
| Aménagement | construction complète |
| Disponible | Maintenant |
Espace garage de 6m².
- Honoraires preneur: 20,00% du taux de location annuel
-
Charges locatives: 1,27 $ CAD/pi²/an 0,11 $ CAD/pi²/mois 81,81 $ CAD/an 6,82 $ CAD/mois
- Dépôt de garantie: 3 mois de taux de location
-
Taxe foncière: 1,79 $ CAD/pi²/an 0,15 $ CAD/pi²/mois 115,49 $ CAD/an 9,62 $ CAD/mois
- Entièrement construit comme Bureau standard
- Disposition du plan d’étage ouverte en général
- Bureaux partitionnés
- Espace en excellent état
- Climatisation centrale
- Connectivité Wi-Fi
- Installations WC abandonnées
- Accessible aux fauteuils roulants
- Linéaire de vitrine
- Annexe indépendante
- 6 garages disponibles
1er étage, ste Bureaux - cuisine
| Taille | 2 368 pi² |
| Terme | 3/6/9 |
|
Taux de location
|
31,39 $ CAD/HT-HC/pi²/an |
| Utilisation de l’espace | Bureau |
| Aménagement | construction complète |
| Disponible | Maintenant |
Cet espace au premier étage bénéficie d’une excellente visibilité grâce à son linéaire de vitrine, idéal pour accueillir vos clients ou mettre en valeur votre activité. Il dispose d’une configuration modulable permettant d’adapter les bureaux selon vos besoins, avec une partie annexe indépendante pour créer un espace dédié, une salle de réunion ou un bureau privé. Les prestations incluent la climatisation réversible, le câblage informatique et la fibre optique pour un confort optimal. Six garages sont disponibles en option pour faciliter le stationnement.
- Honoraires preneur: 20,00% du taux de location annuel
-
Charges locatives: 1,27 $ CAD/pi²/an 0,11 $ CAD/pi²/mois 2 999 $ CAD/an 249,95 $ CAD/mois
- Dépôt de garantie: 3 mois de taux de location
-
Taxe foncière: 1,79 $ CAD/pi²/an 0,15 $ CAD/pi²/mois 4 235 $ CAD/an 352,90 $ CAD/mois
- Entièrement construit comme Bureau standard
- Disposition du plan d’étage ouverte en général
- Bureaux partitionnés
- Espace en excellent état
- Climatisation centrale
- Connectivité Wi-Fi
- Installations WC abandonnées
- Accessible aux fauteuils roulants
- Linéaire de vitrine
- Annexe indépendante
- 6 garages disponibles
À propos de la propriété
Situé dans le 3ème arrondissement de Lyon, à proximité immédiate de la Part-Dieu et du quartier Garibaldi, cet immeuble bénéficie d’un emplacement stratégique au cœur d’un secteur dynamique. L’accessibilité est optimale grâce à la gare Part-Dieu à 1,4 km, l’aéroport Saint-Exupéry à 26 km, ainsi qu’un réseau complet de transports en commun : tramway, métro et plusieurs lignes de bus à quelques mètres. Le quartier offre de nombreux services, commerces, restaurants et infrastructures pour faciliter la vie professionnelle au quotidien.
Faits sur la propriété
| Superficie totale disponible | 9 752 pi² | Style d’appartement | De hauteur moyenne |
| Nombre d’unités | 81 | Taille du bâtiment | > 50 000 pi² |
| Type de propriété | Immeuble residentiel | Année de construction | 1990 - 1999 |
| Sous-type de propriété | Appartement |
| Superficie totale disponible | 9 752 pi² |
| Nombre d’unités | 81 |
| Type de propriété | Immeuble residentiel |
| Sous-type de propriété | Appartement |
| Style d’appartement | De hauteur moyenne |
| Taille du bâtiment | > 50 000 pi² |
| Année de construction | 1990 - 1999 |
Présenté par
"69003 Lyon"
Hmm, il semble y avoir eu une erreur lors de l’envoi de votre message. Veuillez réessayer.
Merci! Votre message a été envoyé.







