Votre courriel a été envoyé.
Zona Sol Unité de condo • Commerce de détail • 387 pi² • À vendre 1 413 054 $ CAD • Centro, Madrid 28012


Certaines informations ont été traduites automatiquement.
Faits saillants de l'investissement
- Sur le meilleur tronçon entre la Puerta del Sol et la rue Cruz
- Excellent emplacement dans une zone touristique, une référence pour les établissements d'accueil
- Rentabilité locale
Résumé de l'annonce
Immeuble mixte dans une rue centrale de Madrid. Situé à quelques minutes à pied de la Plaza Puerta de Sol, de la Plaza de Santa Ana et de la Plaza Jacinto Benavente. Dans une zone avec beaucoup de piétons, une grande concentration de boutiques, de restaurants, de bars et de discothèques.
Faits sur la propriété
| Taille totale du bâtiment | < 15 000 pi² | Classe d’immeuble | B |
| Type de propriété | Immeuble residentiel (Condo) | Planchers | 5 |
| Sous-type de propriété | Appartement | Année de construction | 1910 - 1919 |
| Taille totale du bâtiment | < 15 000 pi² |
| Type de propriété | Immeuble residentiel (Condo) |
| Sous-type de propriété | Appartement |
| Classe d’immeuble | B |
| Planchers | 5 |
| Année de construction | 1910 - 1919 |
Commodités
- Lumière naturelle
Commodités du site
- Près des transports en commun
- Ascenseur
1 Unité disponible
Unité Puerta 02
| Taille de l’unité | 387 pi² | Utilisation du condo | Commerce de détail |
| Prix | 1 413 054 $ CAD | Type de vente | Investissement |
| Prix par pi² | 3 651,30 $ CAD |
| Taille de l’unité | 387 pi² |
| Prix | 1 413 054 $ CAD |
| Prix par pi² | 3 651,30 $ CAD |
| Utilisation du condo | Commerce de détail |
| Type de vente | Investissement |
Notes sur la vente
Excelente local comercial en venta en el centro de Madrid.
Excelente ubicación en esquinazo, a pocos metros de la Plaza Puerta de Sol, de la Plaza de Santa Ana y de la Plaza Jacinto Benavente. En zona con mucha afluencia peatonal gran concentración de tiendas, restaurantes, bares y discotecas.
El inmueble en rentabilidad, alquilado a excelente inquilino con contrato de larga duración.
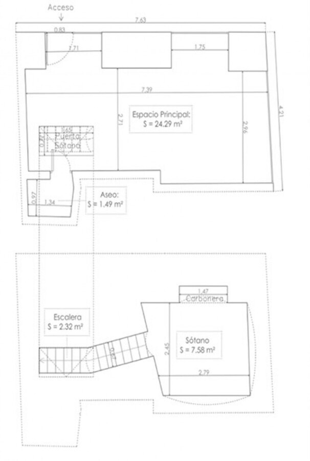
El local tiene cerca de 35,68 m2 útiles, siendo 25,78 m2 útiles en planta calle y 9,90 m2 útiles en sótano.
Cuenta con fachada de 11,84 metros lineales y licencia de actividad para venta de bebidas y comidas. No tiene salida de humos.
Grupo Andino Plano
Morales Cano Investments Plano
Présenté par
Entreprise non fournie
Zona Sol
Hmm, il semble y avoir eu une erreur lors de l’envoi de votre message. Veuillez réessayer.
Merci! Votre message a été envoyé.
Sélectionnez la personne que vous souhaitez appeler

