Votre courriel a été envoyé.
Calle de Santa María Magdalena 3 843 pi² d'espace disponible • Bureau/Commerce de détail • Chamartín, Madrid 28016



Certaines informations ont été traduites automatiquement.
Faits saillants
- Inmueble de uso terciario en el distrito de Chamartín, Madrid.
- Accesos mediante metro, autobuses urbanos y vías principales como la M-30.
- Entorno próximo a Parque de Berlín y Auditorio Nacional de Música.
Tous les espaces disponibles(1)
Afficher les taux de location en
- Espace
- Taille
- Terme
-
Taux de location
- Utilisation de l’espace
- Aménagement
- Disponible
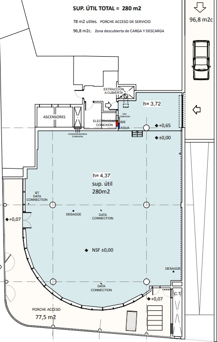
Oficina – Local en esquina con gran visibilidad y excelente luminosidad natural, situado en edificio exclusivo y representativo. El inmueble cuenta con una superficie de 357 m2, distribuida en un espacio completamente diáfano, lo que permite una gran versatilidad de implantación. Dispone de una altura libre de 3 metros, aportando amplitud y confort al espacio. Destaca por su fachada acristalada, que garantiza una magnífica entrada de luz natural durante toda la jornada, reforzando la visibilidad y presencia del activo al tratarse de un local en esquina. El edificio ofrece muelle de carga propio, con acceso directo desde la calle al inmueble, así como dos plazas de aparcamiento incluidas. El espacio se encuentra en buen estado de conservación y está equipado con falso techo modular con luminarias LED empotradas, suelo técnico elevado para cableado, red de datos por suelo técnico, y fibra óptica. Dispone de sistema de climatización individual, sistema de protección contra incendios, seguridad 24 horas con control de accesos, dos ascensores y montacargas. Además, cuenta con cocina y está totalmente adaptado para personas con movilidad reducida. Una excelente oportunidad para empresas que buscan un espacio moderno, funcional y altamente representativo, con visibilidad, luz natural y excelentes prestaciones técnicas.
- Taxes et charges incluses dans le loyer
- Disposition du plan d’étage ouverte
- Espace en coin
- Lumière naturelle
- Plan ouvert
- En esquina con fachada acristalada.
- Suelo técnico elevado y falso techo.
- Dos plazas de aparcamiento incluidas.
- Entièrement construit comme Espace de commerce de détail standard
- Climatisation centrale
- Plafond suspendu
- Installations WC abandonnées
- Superficie diáfana de 357 m2.
- Altura libre interior de 3 m.
- Muelle de carga con acceso directo.
| Espace | Taille | Terme | Taux de location | Utilisation de l’espace | Aménagement | Disponible |
| RDC | 3 843 pi² | Négociable | 53,40 $ CAD/pi²/an INCL 4,45 $ CAD/pi²/mois INCL 205 211 $ CAD/an INCL 17 101 $ CAD/mois INCL | Bureau/Commerce de détail | construction complète | Maintenant |
RDC
| Taille |
| 3 843 pi² |
| Terme |
| Négociable |
|
Taux de location
|
| 53,40 $ CAD/pi²/an INCL 4,45 $ CAD/pi²/mois INCL 205 211 $ CAD/an INCL 17 101 $ CAD/mois INCL |
| Utilisation de l’espace |
| Bureau/Commerce de détail |
| Aménagement |
| construction complète |
| Disponible |
| Maintenant |
RDC
| Taille | 3 843 pi² |
| Terme | Négociable |
|
Taux de location
|
53,40 $ CAD/pi²/an INCL |
| Utilisation de l’espace | Bureau/Commerce de détail |
| Aménagement | construction complète |
| Disponible | Maintenant |
Oficina – Local en esquina con gran visibilidad y excelente luminosidad natural, situado en edificio exclusivo y representativo. El inmueble cuenta con una superficie de 357 m2, distribuida en un espacio completamente diáfano, lo que permite una gran versatilidad de implantación. Dispone de una altura libre de 3 metros, aportando amplitud y confort al espacio. Destaca por su fachada acristalada, que garantiza una magnífica entrada de luz natural durante toda la jornada, reforzando la visibilidad y presencia del activo al tratarse de un local en esquina. El edificio ofrece muelle de carga propio, con acceso directo desde la calle al inmueble, así como dos plazas de aparcamiento incluidas. El espacio se encuentra en buen estado de conservación y está equipado con falso techo modular con luminarias LED empotradas, suelo técnico elevado para cableado, red de datos por suelo técnico, y fibra óptica. Dispone de sistema de climatización individual, sistema de protección contra incendios, seguridad 24 horas con control de accesos, dos ascensores y montacargas. Además, cuenta con cocina y está totalmente adaptado para personas con movilidad reducida. Una excelente oportunidad para empresas que buscan un espacio moderno, funcional y altamente representativo, con visibilidad, luz natural y excelentes prestaciones técnicas.
- Taxes et charges incluses dans le loyer
- Entièrement construit comme Espace de commerce de détail standard
- Disposition du plan d’étage ouverte
- Climatisation centrale
- Espace en coin
- Plafond suspendu
- Lumière naturelle
- Installations WC abandonnées
- Plan ouvert
- Superficie diáfana de 357 m2.
- En esquina con fachada acristalada.
- Altura libre interior de 3 m.
- Suelo técnico elevado y falso techo.
- Muelle de carga con acceso directo.
- Dos plazas de aparcamiento incluidas.
Aperçu de la propriété
Local-oficina en alquiler situada en la calle de Santa María Magdalena, en Madrid. En el entorno cercano se localizan espacios urbanos y equipamientos de referencia como el Parque de Berlín, el Auditorio Nacional de Música y el eje del paseo de la Castellana. En las inmediaciones existen también edificios institucionales, centros educativos, instalaciones sanitarias y áreas comerciales de proximidad, además de oficinas y servicios vinculados a la actividad terciaria del distrito. Las comunicaciones se apoyan en la red de transporte público de Madrid, con estaciones de metro cercanas como Colombia (líneas 8 y 9) y Concha Espina (línea 9), así como varias líneas de autobuses de la EMT que conectan con distintos puntos de la ciudad. El acceso en transporte privado se realiza a través de vías principales como el paseo de la Castellana y la M-30, que facilita la conexión con el resto de la red viaria metropolitana.
- Ligne d'autobus
- Métro
- Système de sécurité
- Près des transports en commun
- Accessible aux fauteuils roulants
- Wi-Fi
- Ascenseur
- Éclairage encastré
- Salle de bain privée
- Climatisation
Faits sur la propriété
Présenté par
Calle de Santa María Magdalena
Hmm, il semble y avoir eu une erreur lors de l’envoi de votre message. Veuillez réessayer.
Merci! Votre message a été envoyé.



