Se Connecter/S’inscrire
Votre courriel a été envoyé.
Market Street - Paddlewheel Lot • Terrain commercial • 1 Acre • 2 769 000 $ CAD • Apalachicola, FL 32320



Certaines informations ont été traduites automatiquement.
RÉSUMÉ DE L'ANNONCE
These premier properties offer an incredible investment opportunity for retail, dining, office, event, or mixed-use development with residential units above.
FAITS SUR LA PROPRIÉTÉ
1 LOT DISPONIBLE
Lot
| Prix | 2 769 000 $ CAD | Taille du lot | 1,00 AC |
| Prix par AC | 2 769 000,05 $ CAD |
| Prix | 2 769 000 $ CAD |
| Prix par AC | 2 769 000,05 $ CAD |
| Taille du lot | 1,00 AC |
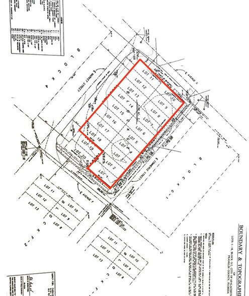
18 lots situés dans la ville d'Apalachicola, comté de Franklin bordé par la rue Commerce, avenue G, rue Market, avenue F
Bike Score®
Très cyclable (72)
Impôts fonciers
| Numéro de lot | 01-09S-08W-8330-00G2-0010 | Évaluation des bâtiments | 0 $ CAD |
| Évaluation du terrain | 1 892 268 $ CAD | Évaluation totale | 1 892 268 $ CAD |
Impôts fonciers
Numéro de lot
01-09S-08W-8330-00G2-0010
Évaluation du terrain
1 892 268 $ CAD
Évaluation des bâtiments
0 $ CAD
Évaluation totale
1 892 268 $ CAD
1 de 5
VIDÉOS
VISITE EXTÉRIEURE 3D MATTERPORT
VISITE 3D MATTERPORT
PHOTOS
VUE DEPUIS LA RUE
RUE
CARTE
Présenté par
Market Street - Paddlewheel
Vous êtes déjà membre? Connectez-vous
Hmm, il semble y avoir eu une erreur lors de l’envoi de votre message. Veuillez réessayer.
Merci! Votre message a été envoyé.

