Votre courriel a été envoyé.
13013 Marseille Unités de condo • Commerce de détail



Certaines informations ont été traduites automatiquement.
Description
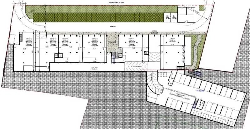
COLLIERS vous propose à la vente un ensemble de cellules commerciales totalisant 1 100 m², situées au coeur du quartier des Olives dans le 13ème arrondissement de Marseille. Ces cellules sont disponibles à partir de 163 m², livrées brut de béton, offrant ainsi une grande liberté d'aménagement selon les besoins des futurs exploitants. Des places de stationnement sont également disponibles pour faciliter l'accès de la clientèle et du personnel. Un emplacement stratégique : Les Olives, un quartier vivant et en pleine évolution. VEFA - Contrat de réservation Prix de vente parkings : 6 666 euros HT/unité Locaux livrés bruts de décoffrage Fluides en attente et hors huisseries Locaux ERP 5 Surfaces utiles intégrants l'espace de stockage Surface RDC : 1103,25 m²
Faits sur la propriété
| Taille de l’unité | 1 754 - 2 163 pi² | Taille totale du bâtiment | 11 873 pi² |
| Nombre d’unités | 6 | Type de propriété | Commerce de détail |
| Taille de l’unité | 1 754 - 2 163 pi² |
| Nombre d’unités | 6 |
| Taille totale du bâtiment | 11 873 pi² |
| Type de propriété | Commerce de détail |
6 Unités disponibles
| Taille de l’unité | 1 754 pi² | Utilisation du condo | Commerce de détail |
| Prix | 911 168 $ CAD | Type de vente | Investissement |
| Prix par pi² | 519,48 $ CAD |
| Taille de l’unité | 1 754 pi² |
| Prix | 911 168 $ CAD |
| Prix par pi² | 519,48 $ CAD |
| Utilisation du condo | Commerce de détail |
| Type de vente | Investissement |
| Taille de l’unité | 1 786 pi² | Utilisation du condo | Commerce de détail |
| Prix | 927 634 $ CAD | Type de vente | Investissement |
| Prix par pi² | 519,39 $ CAD |
| Taille de l’unité | 1 786 pi² |
| Prix | 927 634 $ CAD |
| Prix par pi² | 519,39 $ CAD |
| Utilisation du condo | Commerce de détail |
| Type de vente | Investissement |
| Taille de l’unité | 2 034 pi² | Utilisation du condo | Commerce de détail |
| Prix | 1 057 737 $ CAD | Type de vente | Investissement |
| Prix par pi² | 520,03 $ CAD |
| Taille de l’unité | 2 034 pi² |
| Prix | 1 057 737 $ CAD |
| Prix par pi² | 520,03 $ CAD |
| Utilisation du condo | Commerce de détail |
| Type de vente | Investissement |
| Taille de l’unité | 2 045 pi² | Utilisation du condo | Commerce de détail |
| Prix | 1 062 273 $ CAD | Type de vente | Investissement |
| Prix par pi² | 519,45 $ CAD |
| Taille de l’unité | 2 045 pi² |
| Prix | 1 062 273 $ CAD |
| Prix par pi² | 519,45 $ CAD |
| Utilisation du condo | Commerce de détail |
| Type de vente | Investissement |
| Taille de l’unité | 2 098 pi² | Utilisation du condo | Commerce de détail |
| Prix | 1 094 421 $ CAD | Type de vente | Investissement |
| Prix par pi² | 521,65 $ CAD |
| Taille de l’unité | 2 098 pi² |
| Prix | 1 094 421 $ CAD |
| Prix par pi² | 521,65 $ CAD |
| Utilisation du condo | Commerce de détail |
| Type de vente | Investissement |
| Taille de l’unité | 2 163 pi² | Utilisation du condo | Commerce de détail |
| Prix | 1 125 672 $ CAD | Type de vente | Investissement |
| Prix par pi² | 520,42 $ CAD |
| Taille de l’unité | 2 163 pi² |
| Prix | 1 125 672 $ CAD |
| Prix par pi² | 520,42 $ CAD |
| Utilisation du condo | Commerce de détail |
| Type de vente | Investissement |
Présenté par
"13013 Marseille"
Hmm, il semble y avoir eu une erreur lors de l’envoi de votre message. Veuillez réessayer.
Merci! Votre message a été envoyé.
