Votre courriel a été envoyé.
Mearns Rd - INDUSTRIAL LAND - Stover Industrial Park Lots • Terrain industriel • 4,28-4,39 Acre • 1 030 175 $-1 347 892 $ CAD par lot • Warminster Township, PA 18974



Certaines informations ont été traduites automatiquement.
Faits saillants de l'investissement
- Situé à Stoover Industrial Park
- Excellent emplacement central
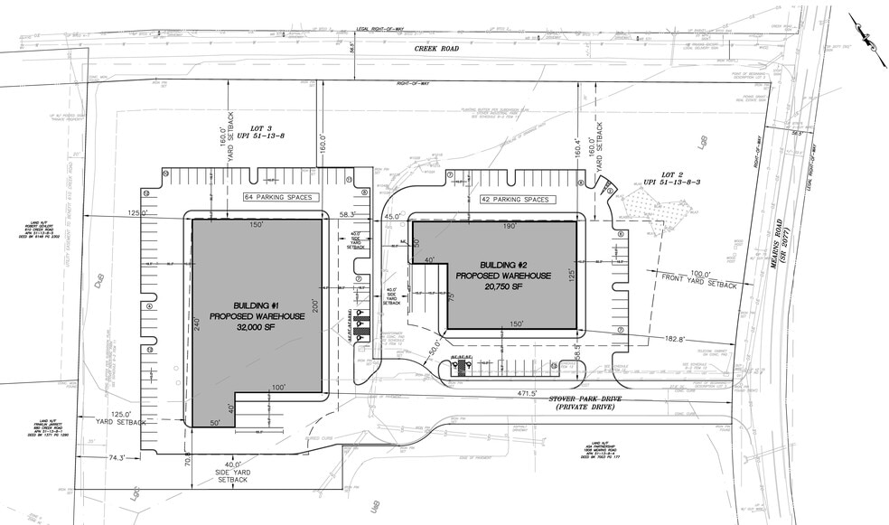
- Possibilité de construire deux immeubles de plus de 30 000 pieds 2 sur deux lots ou de combiner des lots pour un bâtiment plus grand
Résumé de l'annonce
Les lots 2 et 3 peuvent être combinés pour un bâtiment plus grand
Faits sur la propriété
2 Lots disponibles
Lot Lot 2
| Prix | 1 030 175 $ CAD | Taille du lot | 4,39 AC |
| Prix par AC | 234 663,91 $ CAD |
| Prix | 1 030 175 $ CAD |
| Prix par AC | 234 663,91 $ CAD |
| Taille du lot | 4,39 AC |
Taille proposée du bâtiment industriel : 30 000 à 35 000 ; Eau : Eau publique disponible ; égout : privé (un monticule de sable est requis) ; Électrique : PECO Electric & Gaz sur le site ; Municipalité : Warwick Township ; Le terrain a une façade sur les chemins Mearns et Creek.
Lot Lot 3
| Prix | 1 347 892 $ CAD | Taille du lot | 4,28 AC |
| Prix par AC | 314 928,03 $ CAD |
| Prix | 1 347 892 $ CAD |
| Prix par AC | 314 928,03 $ CAD |
| Taille du lot | 4,28 AC |
Taille proposée du bâtiment industriel : 30 000 à 35 000 ; Eau : Eau publique disponible ; égout : privé (un monticule de sable est requis) ; Électrique : PECO Electric & Gaz sur le site ; Municipalité : Warwick Township ; Le terrain a une façade sur les chemins Mearns et Creek.
Description
Situé dans le parc industriel Stove ; possibilité de construire deux immeubles de plus de 30 000 pi2 sur deux lots ou de combiner des lots pour un bâtiment plus grand ; Zonage industriel limité - Grand choix d'utilisations autorisées ; emplacement central : accès facile à York Road (route 263), 15 minutes de l'autoroute I-276 de PA, 20 minutes de l'autoroute I-95, 1/2 heure de la frontière entre le New Jersey et la Pennsylvanie, moins d'une heure de Philadelphie, moins de deux heures de la ville de New York
Impôts fonciers
| Numéros de lot | Évaluation des bâtiments | 0 $ CAD | |
| Évaluation du terrain | 55 456 $ CAD | Évaluation totale | 55 456 $ CAD |
Impôts fonciers
Présenté par
Mearns Rd - INDUSTRIAL LAND - Stover Industrial Park
Hmm, il semble y avoir eu une erreur lors de l’envoi de votre message. Veuillez réessayer.
Merci! Votre message a été envoyé.
