Votre courriel a été envoyé.
93370 Montfermeil 797 pi² d'espace disponible • Commerce de détail



Certaines informations ont été traduites automatiquement.
Faits saillants
- Environnement commerçant dynamique
- Immeuble récent en cœur de ville
- Accès immédiat aux transports
Tous les espaces disponibles(1)
Afficher les taux de location en
- Espace
- Taille
- Terme
-
Taux de location
- Utilisation de l’espace
- État
- Disponible
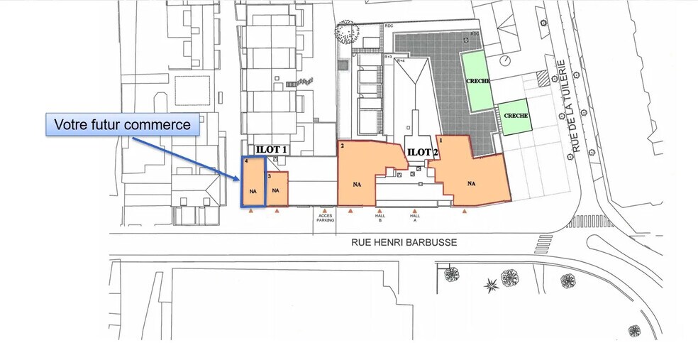
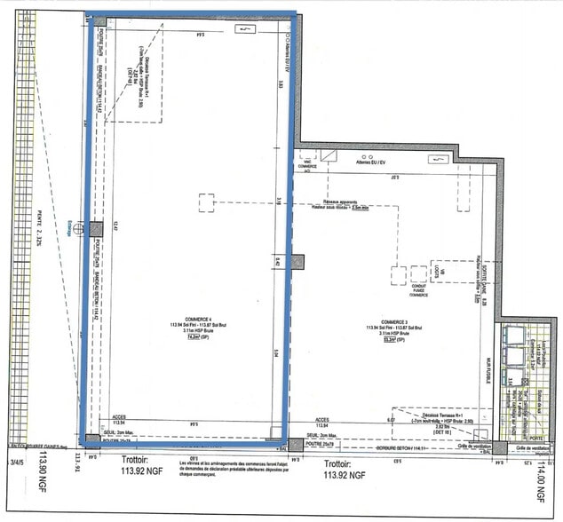
Cet espace commercial est proposé dans un état brut permettant au futur preneur de concevoir librement son aménagement selon les besoins de son activité. Situé dans le secteur dynamique du centre-ville, il bénéficie d’un environnement renouvelé et d’une proximité immédiate avec un arrêt de tram, offrant une accessibilité renforcée. Le local nécessite l’ensemble des travaux intérieurs, comprenant l’isolation, les revêtements, l’électricité, la plomberie, les sanitaires ainsi que la conception de la façade et des vitrines conformément au cahier des charges en vigueur. Il n’est pas adapté aux activités nécessitant de la restauration. Le bailleur accorde une période d’installation avantageuse après la livraison pour faciliter la mise en exploitation.
- Dépôt de garantie: 3 mois de taux de location
- Accessible aux fauteuils roulants
- livré brut de béton avec fluides en attente
- 2 mois de loyer gratuits
- Détecteur de fumée
- Local NON ADAPTE à la restauration
- Tous travaux à la charge du preneur
| Espace | Taille | Terme | Taux de location | Utilisation de l’espace | État | Disponible |
| RDC | 797 pi² | 3/6/9 | 23,64 $ CAD/HT-HC/pi²/an 1,97 $ CAD/HT-HC/pi²/mois 18 828 $ CAD/HT-HC/an 1 569 $ CAD/HT-HC/mois | Commerce de détail | espace cloisonné | Maintenant |
RDC
| Taille |
| 797 pi² |
| Terme |
| 3/6/9 |
|
Taux de location
|
| 23,64 $ CAD/HT-HC/pi²/an 1,97 $ CAD/HT-HC/pi²/mois 18 828 $ CAD/HT-HC/an 1 569 $ CAD/HT-HC/mois |
| Utilisation de l’espace |
| Commerce de détail |
| État |
| espace cloisonné |
| Disponible |
| Maintenant |
RDC
| Taille | 797 pi² |
| Terme | 3/6/9 |
|
Taux de location
|
23,64 $ CAD/HT-HC/pi²/an |
| Utilisation de l’espace | Commerce de détail |
| État | espace cloisonné |
| Disponible | Maintenant |
Cet espace commercial est proposé dans un état brut permettant au futur preneur de concevoir librement son aménagement selon les besoins de son activité. Situé dans le secteur dynamique du centre-ville, il bénéficie d’un environnement renouvelé et d’une proximité immédiate avec un arrêt de tram, offrant une accessibilité renforcée. Le local nécessite l’ensemble des travaux intérieurs, comprenant l’isolation, les revêtements, l’électricité, la plomberie, les sanitaires ainsi que la conception de la façade et des vitrines conformément au cahier des charges en vigueur. Il n’est pas adapté aux activités nécessitant de la restauration. Le bailleur accorde une période d’installation avantageuse après la livraison pour faciliter la mise en exploitation.
- Dépôt de garantie: 3 mois de taux de location
- Détecteur de fumée
- Accessible aux fauteuils roulants
- Local NON ADAPTE à la restauration
- livré brut de béton avec fluides en attente
- Tous travaux à la charge du preneur
- 2 mois de loyer gratuits
Faits sur la propriété
| Superficie totale disponible | 797 pi² | Taille du bâtiment | 10,000 - 60 000 pi² |
| Type de propriété | Immeuble residentiel | Année de construction | 2020 - 2026 |
| Sous-type de propriété | Appartement |
| Superficie totale disponible | 797 pi² |
| Type de propriété | Immeuble residentiel |
| Sous-type de propriété | Appartement |
| Taille du bâtiment | 10,000 - 60 000 pi² |
| Année de construction | 2020 - 2026 |
À propos de la propriété
Le local s’intègre dans une opération d’aménagement récente située au cœur de Montfermeil, au sein d’une zone structurante regroupant commerces, services et équipements publics. Le quartier, revitalisé autour de la ZAC Cœur de Ville, propose une ambiance urbaine agréable où les flux piétons sont favorisés par la présence de transports en commun, notamment une station de tramway située à quelques minutes. L’environnement proche comprend diverses commodités telles que commerces alimentaires, restaurants, services financiers et établissements scolaires, contribuant à une fréquentation régulière. L’immeuble, édifié récemment, s’inscrit dans un ensemble moderne offrant des prestations contemporaines et un cadre attractif pour les activités commerciales. Cet emplacement permet de bénéficier d’une visibilité adéquate et d’une accessibilité simple, aussi bien pour la clientèle locale que pour les visiteurs provenant des communes voisines.
Principaux détaillants à proximité
Présenté par
"93370 Montfermeil"
Hmm, il semble y avoir eu une erreur lors de l’envoi de votre message. Veuillez réessayer.
Merci! Votre message a été envoyé.
