Votre courriel a été envoyé.
34090 Montpellier Unités de condo • Flex • À vendre 503 991 $ CAD par unité



Certaines informations ont été traduites automatiquement.
Description
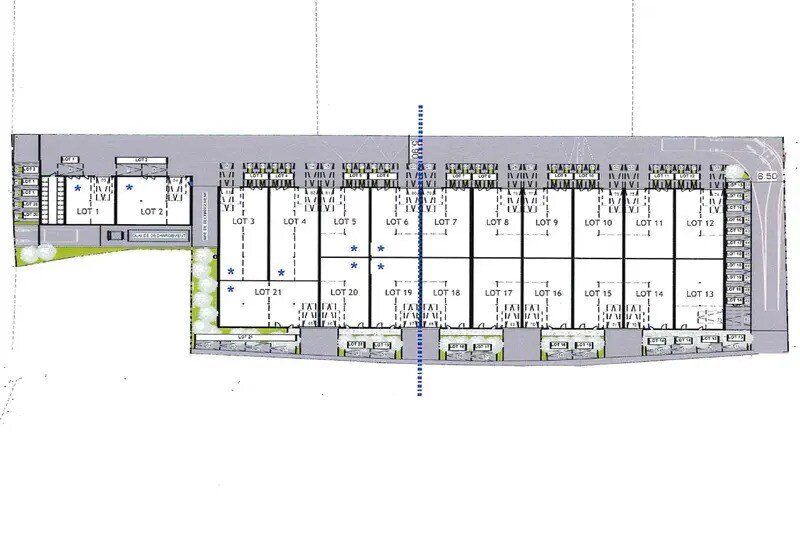
NOUVEAU ! À vendre : Locaux d'activités sur Lattes/Montpellier Sud Nous vous proposons des locaux d'activités à la vente dans un ensemble immobilier exceptionnel, idéalement situé à proximité de l'autoroute. Détails des lots : - Surface : À partir de 200 m², avec une surface totale disponible de 5 200 m². - Hauteur sous plafond (HSP) : 7 m (4 m sous mezzanine et 3 m au-dessus de la mezzanine). - Accès : Accès semi-remorque pour faciliter les opérations de chargement et déchargement. - Équipements : - Quai de déchargement mutualisé - Porte sectionnelle de 3,50 m x 3,50 m - 3 places de parking privatives par lotFlexibilité : Possibilité de division à partir de 200 m² avec option de fusion de plusieurs lots pour une superficie plus grande. Emplacement : Autoroute à seulement 3 minutes. Parking aérien devant les locaux Quelques lots encore disponibles ! Ne manquez pas cette opportunité unique. Contactez-nous pour plus d'informations ou pour organiser une visite. www.normantaylor.fr - Équipements : - Quai de déchargement mutualisé - Porte sectionnelle de 3,50 m x 3,50 m - 3 places de parking privatives par lot
9 Unités disponibles
- Unité
- Taille de l’unité
- Utilisation du condo
- Prix
- Revenu net d’exploitation
| Type de vente | Propriétaire utilisateur | Honoraires preneur | 4,00% du prix de vente |
| Type de vente | Propriétaire utilisateur |
| Honoraires preneur | 4,00% du prix de vente |
| Type de vente | Propriétaire utilisateur | Honoraires preneur | 4,00% du prix de vente |
| Type de vente | Propriétaire utilisateur |
| Honoraires preneur | 4,00% du prix de vente |
| Type de vente | Propriétaire utilisateur | Honoraires preneur | 4,00% du prix de vente |
| Type de vente | Propriétaire utilisateur |
| Honoraires preneur | 4,00% du prix de vente |
| Type de vente | Propriétaire utilisateur | Honoraires preneur | 4,00% du prix de vente |
| Type de vente | Propriétaire utilisateur |
| Honoraires preneur | 4,00% du prix de vente |
| Type de vente | Propriétaire utilisateur | Honoraires preneur | 4,00% du prix de vente |
| Type de vente | Propriétaire utilisateur |
| Honoraires preneur | 4,00% du prix de vente |
| Type de vente | Propriétaire utilisateur | Honoraires preneur | 4,00% du prix de vente |
| Type de vente | Propriétaire utilisateur |
| Honoraires preneur | 4,00% du prix de vente |
| Type de vente | Propriétaire utilisateur | Honoraires preneur | 4,00% du prix de vente |
| Type de vente | Propriétaire utilisateur |
| Honoraires preneur | 4,00% du prix de vente |
| Type de vente | Propriétaire utilisateur | Honoraires preneur | 4,00% du prix de vente |
| Type de vente | Propriétaire utilisateur |
| Honoraires preneur | 4,00% du prix de vente |
| Type de vente | Propriétaire utilisateur | Honoraires preneur | 4,00% du prix de vente |
| Type de vente | Propriétaire utilisateur |
| Honoraires preneur | 4,00% du prix de vente |
| Unité | Taille de l’unité | Utilisation du condo | Prix | Revenu net d’exploitation |
| Unité 1 | 3 116 pi² | Flex | 749 762 $ CAD (240,62 $ CAD/pi²) | - |
| Unité 4 | 2 587 pi² | Flex | 630 788 $ CAD (243,83 $ CAD/pi²) | - |
| Unité 5 | 2 566 pi² | Flex | 622 347 $ CAD (242,54 $ CAD/pi²) | - |
| Unité 7 | 2 622 pi² | Flex | 630 788 $ CAD (240,58 $ CAD/pi²) | - |
| Unité 8 | 2 587 pi² | Flex | 630 788 $ CAD (243,83 $ CAD/pi²) | - |
| Unité 9 | 2 587 pi² | Flex | 630 788 $ CAD (243,83 $ CAD/pi²) | - |
| Unité 12 | 2 587 pi² | Flex | 637 096 $ CAD (246,27 $ CAD/pi²) | - |
| Unité 16 | 2 579 pi² | Flex | 628 571 $ CAD (243,73 $ CAD/pi²) | - |
| Unité 19 | 3 114 pi² | Flex | 756 791 $ CAD (243,03 $ CAD/pi²) | - |
Unité 1
| Taille de l’unité |
| 3 116 pi² |
| Utilisation du condo |
| Flex |
| Prix |
| 749 762 $ CAD (240,62 $ CAD/pi²) |
| Revenu net d’exploitation |
| - |
Unité 4
| Taille de l’unité |
| 2 587 pi² |
| Utilisation du condo |
| Flex |
| Prix |
| 630 788 $ CAD (243,83 $ CAD/pi²) |
| Revenu net d’exploitation |
| - |
Unité 5
| Taille de l’unité |
| 2 566 pi² |
| Utilisation du condo |
| Flex |
| Prix |
| 622 347 $ CAD (242,54 $ CAD/pi²) |
| Revenu net d’exploitation |
| - |
Unité 7
| Taille de l’unité |
| 2 622 pi² |
| Utilisation du condo |
| Flex |
| Prix |
| 630 788 $ CAD (240,58 $ CAD/pi²) |
| Revenu net d’exploitation |
| - |
Unité 8
| Taille de l’unité |
| 2 587 pi² |
| Utilisation du condo |
| Flex |
| Prix |
| 630 788 $ CAD (243,83 $ CAD/pi²) |
| Revenu net d’exploitation |
| - |
Unité 9
| Taille de l’unité |
| 2 587 pi² |
| Utilisation du condo |
| Flex |
| Prix |
| 630 788 $ CAD (243,83 $ CAD/pi²) |
| Revenu net d’exploitation |
| - |
Unité 12
| Taille de l’unité |
| 2 587 pi² |
| Utilisation du condo |
| Flex |
| Prix |
| 637 096 $ CAD (246,27 $ CAD/pi²) |
| Revenu net d’exploitation |
| - |
Unité 16
| Taille de l’unité |
| 2 579 pi² |
| Utilisation du condo |
| Flex |
| Prix |
| 628 571 $ CAD (243,73 $ CAD/pi²) |
| Revenu net d’exploitation |
| - |
Unité 19
| Taille de l’unité |
| 3 114 pi² |
| Utilisation du condo |
| Flex |
| Prix |
| 756 791 $ CAD (243,03 $ CAD/pi²) |
| Revenu net d’exploitation |
| - |
Unité 1
| Taille de l’unité | 3 116 pi² |
| Utilisation du condo | Flex |
| Prix | 749 762 $ CAD (240,62 $ CAD/pi²) |
| Revenu net d’exploitation | - |
| Type de vente | Propriétaire utilisateur |
| Honoraires preneur | 4,00% du prix de vente |
Unité 4
| Taille de l’unité | 2 587 pi² |
| Utilisation du condo | Flex |
| Prix | 630 788 $ CAD (243,83 $ CAD/pi²) |
| Revenu net d’exploitation | - |
| Type de vente | Propriétaire utilisateur |
| Honoraires preneur | 4,00% du prix de vente |
Unité 5
| Taille de l’unité | 2 566 pi² |
| Utilisation du condo | Flex |
| Prix | 622 347 $ CAD (242,54 $ CAD/pi²) |
| Revenu net d’exploitation | - |
| Type de vente | Propriétaire utilisateur |
| Honoraires preneur | 4,00% du prix de vente |
Unité 7
| Taille de l’unité | 2 622 pi² |
| Utilisation du condo | Flex |
| Prix | 630 788 $ CAD (240,58 $ CAD/pi²) |
| Revenu net d’exploitation | - |
| Type de vente | Propriétaire utilisateur |
| Honoraires preneur | 4,00% du prix de vente |
Unité 8
| Taille de l’unité | 2 587 pi² |
| Utilisation du condo | Flex |
| Prix | 630 788 $ CAD (243,83 $ CAD/pi²) |
| Revenu net d’exploitation | - |
| Type de vente | Propriétaire utilisateur |
| Honoraires preneur | 4,00% du prix de vente |
Unité 9
| Taille de l’unité | 2 587 pi² |
| Utilisation du condo | Flex |
| Prix | 630 788 $ CAD (243,83 $ CAD/pi²) |
| Revenu net d’exploitation | - |
| Type de vente | Propriétaire utilisateur |
| Honoraires preneur | 4,00% du prix de vente |
Unité 12
| Taille de l’unité | 2 587 pi² |
| Utilisation du condo | Flex |
| Prix | 637 096 $ CAD (246,27 $ CAD/pi²) |
| Revenu net d’exploitation | - |
| Type de vente | Propriétaire utilisateur |
| Honoraires preneur | 4,00% du prix de vente |
Unité 16
| Taille de l’unité | 2 579 pi² |
| Utilisation du condo | Flex |
| Prix | 628 571 $ CAD (243,73 $ CAD/pi²) |
| Revenu net d’exploitation | - |
| Type de vente | Propriétaire utilisateur |
| Honoraires preneur | 4,00% du prix de vente |
Unité 19
| Taille de l’unité | 3 114 pi² |
| Utilisation du condo | Flex |
| Prix | 756 791 $ CAD (243,03 $ CAD/pi²) |
| Revenu net d’exploitation | - |
| Type de vente | Propriétaire utilisateur |
| Honoraires preneur | 4,00% du prix de vente |
Faits sur la propriété
| Prix | 503 991 $ CAD | Taille totale du bâtiment | 55 951 pi² |
| Taille de l’unité | 2 566 - 3 116 pi² | Type de propriété | Local d'activités |
| Nombre d’unités | 9 |
| Prix | 503 991 $ CAD |
| Taille de l’unité | 2 566 - 3 116 pi² |
| Nombre d’unités | 9 |
| Taille totale du bâtiment | 55 951 pi² |
| Type de propriété | Local d'activités |
Présenté par
"34090 Montpellier"
Hmm, il semble y avoir eu une erreur lors de l’envoi de votre message. Veuillez réessayer.
Merci! Votre message a été envoyé.
