Votre courriel a été envoyé.
34000 Montpellier Unités de condo • Bureau • 2 637-4 070 pi²



Certaines informations ont été traduites automatiquement.
Description
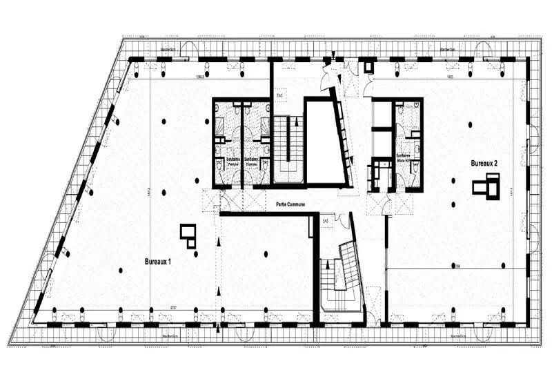
Opportunité quartier République/Port Marianne/Odyssée Rive Gauche. Au sein d'un ensemble immobilier mixte composé de 4 bâtiments autour d'un ilot central, immeuble neuf très qualitatif d'environ 4 244 m² composé de 744 m² de commerces en RDC et 3 500 m² de bureaux Un plateau de bureaux livré aménagés, non cloisonnés en open space d'environ 623,30 m² quotte part des parties communes incluses en R + 5 divisibles en 2 plateaux - Bureaux très lumineux avec coursives tout autour du plateau - 7 places de parking dont 2 boxées - Loyer parking en sous-sol classique : 1 300 Euros HT/unité/an - Loyer parking boxés : 1 500 Euros HT/unité/an - Prix parking : 15 000 Euros HT/unité - Climatisation réversible - 6 sanitaires dont 2 PMR
Faits sur la propriété
| Taille de l’unité | 2 637 - 4 070 pi² | Type de propriété | Bureau |
| Nombre d’unités | 2 |
| Taille de l’unité | 2 637 - 4 070 pi² |
| Nombre d’unités | 2 |
| Type de propriété | Bureau |
2 Unités disponibles
| Taille de l’unité | 2 637 pi² | Honoraires preneur | 18,00% du prix de vente |
| Utilisation du condo | Bureau | Taxe foncière | 7,54 $ CAD/pi²/an |
| Type de vente | Propriétaire utilisateur |
| Taille de l’unité | 2 637 pi² |
| Utilisation du condo | Bureau |
| Type de vente | Propriétaire utilisateur |
| Honoraires preneur | 18,00% du prix de vente |
| Taxe foncière | 7,54 $ CAD/pi²/an |
| Taille de l’unité | 4 070 pi² | Honoraires preneur | 18,00% du prix de vente |
| Utilisation du condo | Bureau | Taxe foncière | 4,89 $ CAD/pi²/an |
| Type de vente | Propriétaire utilisateur |
| Taille de l’unité | 4 070 pi² |
| Utilisation du condo | Bureau |
| Type de vente | Propriétaire utilisateur |
| Honoraires preneur | 18,00% du prix de vente |
| Taxe foncière | 4,89 $ CAD/pi²/an |
Présenté par
"34000 Montpellier"
Hmm, il semble y avoir eu une erreur lors de l’envoi de votre message. Veuillez réessayer.
Merci! Votre message a été envoyé.
