Se Connecter/S’inscrire
Votre courriel a été envoyé.
Mount Holly Road Rd
Charlotte, NC 28214
Riverside Townhome Land · Terrain À vendre
·
32,25 AC


Certaines informations ont été traduites automatiquement.
FAITS SAILLANTS DE L'INVESTISSEMENT
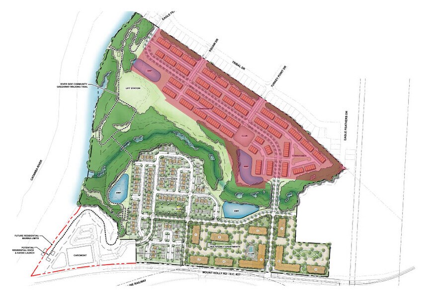
- Intitulé - Approuvé pour un maximum de 258 TH lots
- Portion d'une grande collectivité planifiée
RÉSUMÉ DE L'ANNONCE
Environ 32,25 acres disponibles pour le développement de TH approuvé d'un maximum de 258 unités. Représente une partie de la grande collectivité planifiée avec des sentiers et du front de la rivière Catawba.
FAITS SUR LA PROPRIÉTÉ Sous contrat
1 LOT DISPONIBLE
Lot
| Taille du lot | 32,25 AC |
| Taille du lot | 32,25 AC |
1 de 3
VIDÉOS
VISITE EXTÉRIEURE 3D MATTERPORT
VISITE 3D MATTERPORT
PHOTOS
VUE DEPUIS LA RUE
RUE
CARTE
