Se Connecter/S’inscrire
Votre courriel a été envoyé.
Certaines informations ont été traduites automatiquement.
Faits saillants de l'investissement
- Freeway frontage, Fully Leased Industrial Portfolio
Résumé de l'annonce
Strategically located between Highway 58 and East Brundage Lane, this property offers low-maintenance ownership and efficient management, making it well-suited for investors seeking stable, passive income within a high demand industrial corridor. The multi-tenant industrial project provides strong accessibility and prominent freeway exposure, supporting consistent tenant demand and long-term investment resilience.
Available yard space also presents potential for future development or industrial outdoor storage use. Offered at a price below replacement cost and delivering a cap rate above 8.5%, this asset represents a highly compelling industrial investment opportunity in today’s market.
Available yard space also presents potential for future development or industrial outdoor storage use. Offered at a price below replacement cost and delivering a cap rate above 8.5%, this asset represents a highly compelling industrial investment opportunity in today’s market.
Salle de données Cliquez ici pour accéder à
- Offering Memorandum
Taxes et dépenses d’exploitation (Réel - 2024) |
Annuel (CAD) |
|---|---|
| Revenu de location brut |
970 409 $
|
| Autres revenus |
-
|
| Perte due à l’inoccupation |
-
|
| Revenu brut effectif |
970 409 $
|
| Taxes |
105 547 $
|
| Dépenses d’exploitation |
40 092 $
|
| Total des dépenses |
145 639 $
|
| Revenu net d’exploitation |
824 770 $
|
Taxes et dépenses d’exploitation (Réel - 2024)
| Revenu de location brut (CAD) | |
|---|---|
| Annuel | 970 409 $ |
| Autres revenus (CAD) | |
|---|---|
| Annuel | - |
| Perte due à l’inoccupation (CAD) | |
|---|---|
| Annuel | - |
| Revenu brut effectif (CAD) | |
|---|---|
| Annuel | 970 409 $ |
| Taxes (CAD) | |
|---|---|
| Annuel | 105 547 $ |
| Dépenses d’exploitation (CAD) | |
|---|---|
| Annuel | 40 092 $ |
| Total des dépenses (CAD) | |
|---|---|
| Annuel | 145 639 $ |
| Revenu net d’exploitation (CAD) | |
|---|---|
| Annuel | 824 770 $ |
Faits sur la propriété
| Prix | 8 795 607 $ CAD | Nombre de propriétés | 2 |
| Prix/pi² | 135,58 $ CAD / pi² | Individuellement en vente | 0 |
| Taux de capitalisation | 8,87% | Taille totale du bâtiment | 64 875 pi² |
| Type de vente | Investissement | Superficie totale du terrain | 3,85 AC |
| Statut | Actif |
| Prix | 8 795 607 $ CAD |
| Prix/pi² | 135,58 $ CAD / pi² |
| Taux de capitalisation | 8,87% |
| Type de vente | Investissement |
| Statut | Actif |
| Nombre de propriétés | 2 |
| Individuellement en vente | 0 |
| Taille totale du bâtiment | 64 875 pi² |
| Superficie totale du terrain | 3,85 AC |
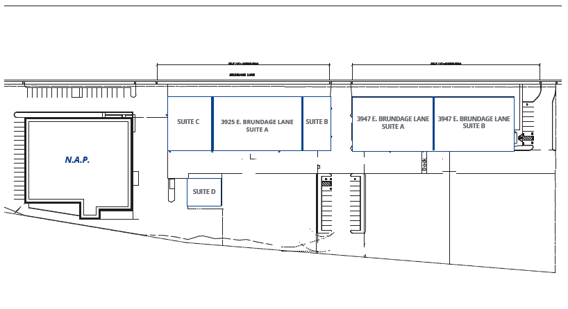
Propriétés
| Nom de la propriété/adresse | Type de propriété | Taille | Année de construction | Prix individuel |
|---|---|---|---|---|
| 3925 E Brundage Ln, Bakersfield, CA 93307 | Industriel | 33 000 pi² | 1986 | - |
| 3947 E Brundage Ln, Bakersfield, CA 93307 | Industriel | 31 875 pi² | 1986 | - |
1 1
1 de 7
Vidéos
Visite extérieure 3D Matterport
Visite 3D Matterport
Photos
Vue depuis la rue
Rue
Carte
1 de 1
Présenté par
Multi-Tenant Office/Warehouse
Vous êtes déjà membre? Connectez-vous
Hmm, il semble y avoir eu une erreur lors de l’envoi de votre message. Veuillez réessayer.
Merci! Votre message a été envoyé.



