Se Connecter/S’inscrire
Votre courriel a été envoyé.
N47W28229 Lynndale Rd Lot • Terrain commercial • 11 Acres • 3 306 000 $ CAD • Pewaukee, WI 53072



Certaines informations ont été traduites automatiquement.
Faits saillants de l'investissement
- Prominent freeway visibility providing exceptional exposure and signage potential.
- Strong location near established retail and dining amenities, including Cassandra’s.
- Level, buildable site with efficient layout potential across the entire acreage.
- Land offered for sale with utilities available via well and septic, supporting flexible site planning.
Résumé de l'annonce
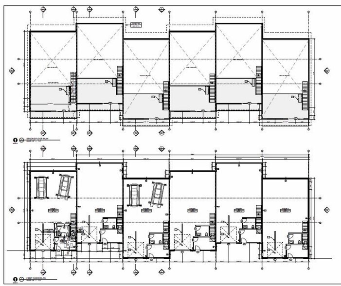
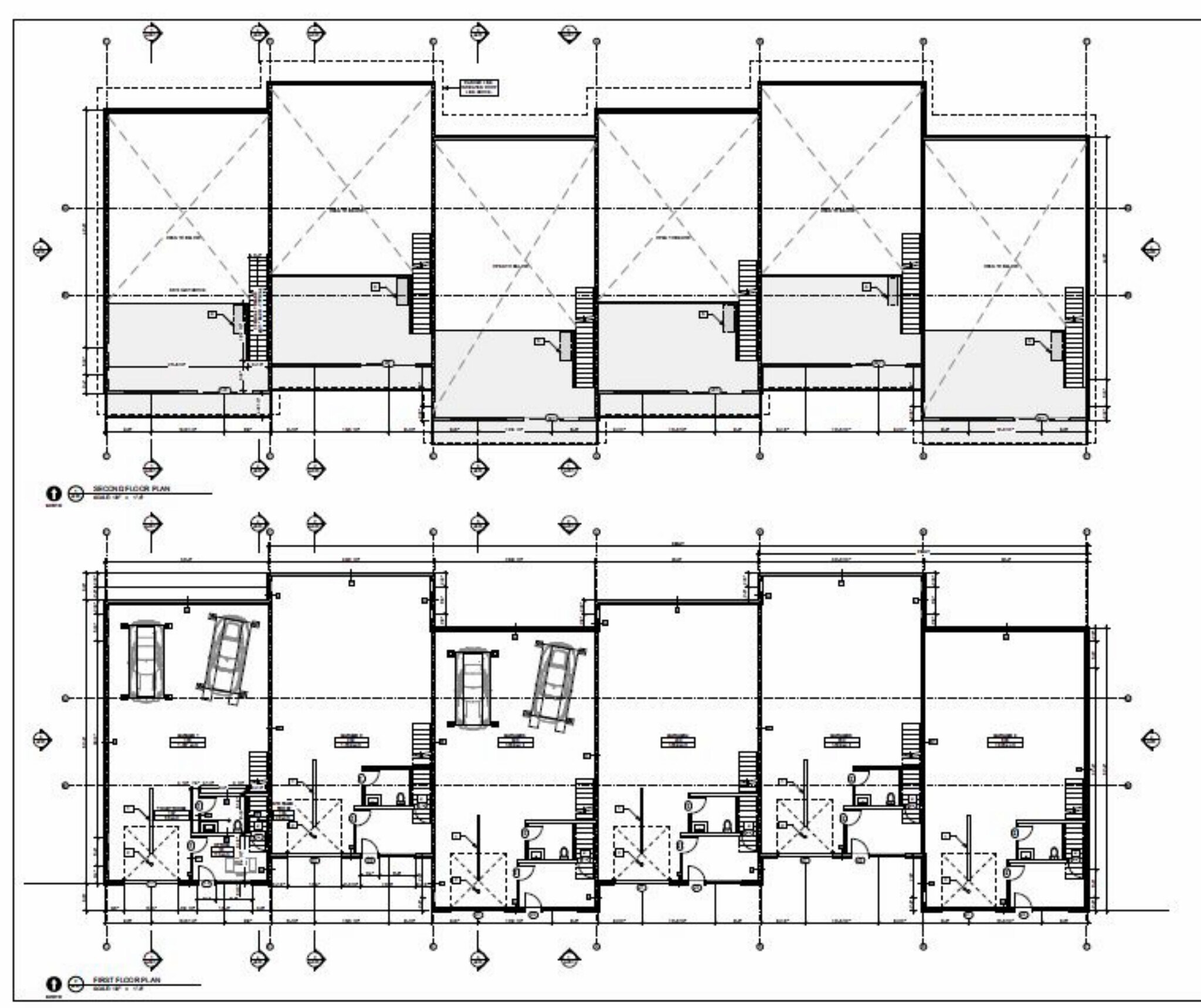
Exceptional opportunity to acquire 11 acres of highly visible land approved for 47 car condo units at N47W28229 Lynndale Rd in Delafield, WI. This freeway-visible site offers excellent exposure and is ideally positioned near Cassandra’s, with approved building sizes ranging from approximately 1,267 to 1,509 SF. Planned metal and concrete construction, well and septic utilities, and a thoughtfully designed layout make this a compelling development for investors or owner-users seeking a premier car condo project in a high-demand corridor.
Faits sur la propriété
| Prix | 3 306 000 $ CAD | Type de propriété | Terrain |
| Type de vente | Investissement | Sous-type de propriété | Terrain commercial |
| Nombre de lots | 1 | Taille totale du lot | 11,00 AC |
| Prix | 3 306 000 $ CAD |
| Type de vente | Investissement |
| Nombre de lots | 1 |
| Type de propriété | Terrain |
| Sous-type de propriété | Terrain commercial |
| Taille totale du lot | 11,00 AC |
1 Lot disponible
Lot
| Prix | 3 306 000 $ CAD | Taille du lot | 11,00 AC |
| Prix par AC | 300 545,47 $ CAD |
| Prix | 3 306 000 $ CAD |
| Prix par AC | 300 545,47 $ CAD |
| Taille du lot | 11,00 AC |
Highly visible 11-acre development site with freeway exposure, approved for 47 car condo units and offering excellent access in the Delafield market.
Description
Highly visible 11-acre development site with freeway exposure, approved for 47 car condo units and offering excellent access in the Delafield market.
1 1
Plutôt praticable à pied
20/100
Exceptionnellement facile d’accès en voiture
100/100
Assez praticable en vélo
30/100
1 de 4
Vidéos
Visite extérieure 3D Matterport
Visite 3D Matterport
Photos
Vue depuis la rue
Rue
Carte
1 de 1
Présenté par
N47W28229 Lynndale Rd
Vous êtes déjà membre? Connectez-vous
Hmm, il semble y avoir eu une erreur lors de l’envoi de votre message. Veuillez réessayer.
Merci! Votre message a été envoyé.
