Se Connecter/S’inscrire
Votre courriel a été envoyé.
NEC Woods St & 14th St
Phoenix, AZ 85040
Terrain À vendre
·
2,07 AC

Certaines informations ont été traduites automatiquement.
Faits saillants de l'investissement
- Site is located in an Opportunity Zone
Résumé de l'annonce
• Site is located in an Opportunity Zone
• ±10 Minutes to Downtown Phoenix
and Phoenix Sky Harbor International
Airport
• ±2 Miles to the Interstate 17 & 7th Street
full Diamond Interchange
• ±3 Miles to the Interstate 10 & University
Drive full Diamond Interchange
• Property is in a QCT (Qualified Census
Tract)
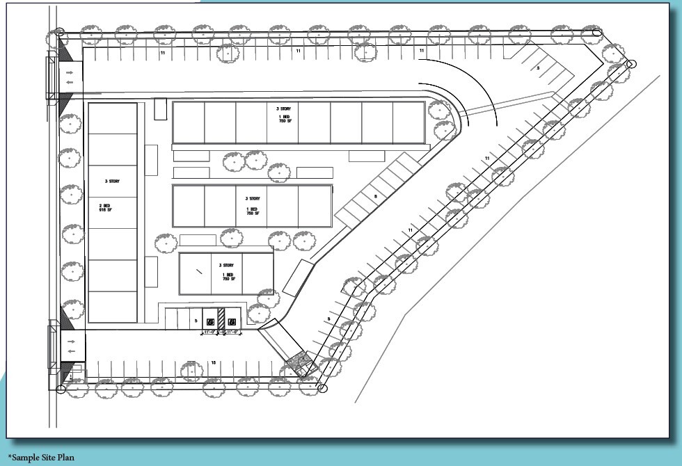
• Zoned for up to 69 multifamily units
(with bonus density) in a three (3) story
product
• ±10 Minutes to Downtown Phoenix
and Phoenix Sky Harbor International
Airport
• ±2 Miles to the Interstate 17 & 7th Street
full Diamond Interchange
• ±3 Miles to the Interstate 10 & University
Drive full Diamond Interchange
• Property is in a QCT (Qualified Census
Tract)
• Zoned for up to 69 multifamily units
(with bonus density) in a three (3) story
product
Faits sur la propriété
1 Lot disponible
Lot
| Taille du lot | 2,07 AC |
| Taille du lot | 2,07 AC |
Site is located in an Opportunity Zone
Description
Site is located in an Opportunity Zone
Impôts fonciers
| Numéros de lot | Évaluation des bâtiments | 0 $ CAD | |
| Évaluation du terrain | 28 962 $ CAD | Évaluation totale | 28 962 $ CAD |
Impôts fonciers
Numéros de lot
Évaluation du terrain
28 962 $ CAD
Évaluation des bâtiments
0 $ CAD
Évaluation totale
28 962 $ CAD
1 de 2
Vidéos
Visite extérieure 3D Matterport
Visite 3D Matterport
Photos
Vue depuis la rue
Rue
Carte
