Se Connecter/S’inscrire
Votre courriel a été envoyé.
Certaines informations ont été traduites automatiquement.
LOT Disponible
Afficher les taux de location en
| Taux de location |
|
Taille du lot | 9,00 AC |
| Durée du bail | Négociable |
| Taux de location | |
| Durée du bail | Négociable |
| Taille du lot | 9,00 AC |
Aperçu de la propriété
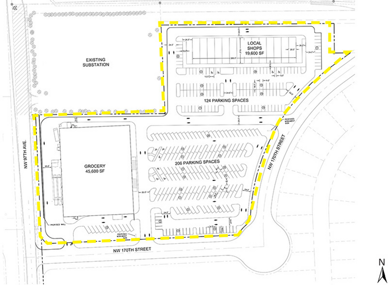
SEQ de 170e rue et 97e avenue Nord-Ouest Superficie de la parcelle - 9± Acres Le survol-au-dessus du NW 170e et I-75 est ouvert à la circulation publique Printemps 2018 Plus de 4 000 unités résidentielles proposées dans un rayon de 2 milles Disponible pour bail foncier ou construction selon les besoins Juste au sud du projet de 4,2 millions de SF American Dream Miami
Faits sur la propriété
| Superficie totale disponible | 9,00 AC | Utilisation proposée | |
| Type de propriété | Terrain | Rues transversales | NW 97th Avenue |
| Sous-type de propriété | Terrain commercial |
| Superficie totale disponible | 9,00 AC |
| Type de propriété | Terrain |
| Sous-type de propriété | Terrain commercial |
| Utilisation proposée | |
| Rues transversales | NW 97th Avenue |
1 1
Plutôt praticable à pied
30/100
Exceptionnellement facile d’accès en voiture
90/100
Transports en commun limités
30/100
Plutôt praticable en vélo
40/100
1 de 4
Vidéos
Visite extérieure 3D Matterport
Visite 3D Matterport
Photos
Vue depuis la rue
Rue
Carte
1 de 1
Présenté par
Turnpike Transfer | NW 170th St
Vous êtes déjà membre? Connectez-vous
Hmm, il semble y avoir eu une erreur lors de l’envoi de votre message. Veuillez réessayer.
Merci! Votre message a été envoyé.



