Votre courriel a été envoyé.
92200 Neuilly-sur-Seine Unité de condo • Bureau • 1 937 pi² • À vendre 2 876 262 $ CAD

Certaines informations ont été traduites automatiquement.
Description
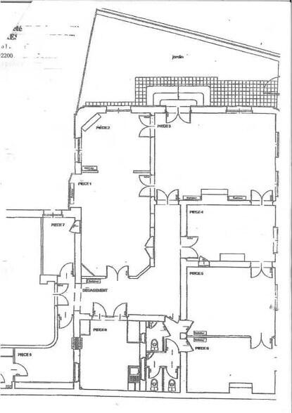
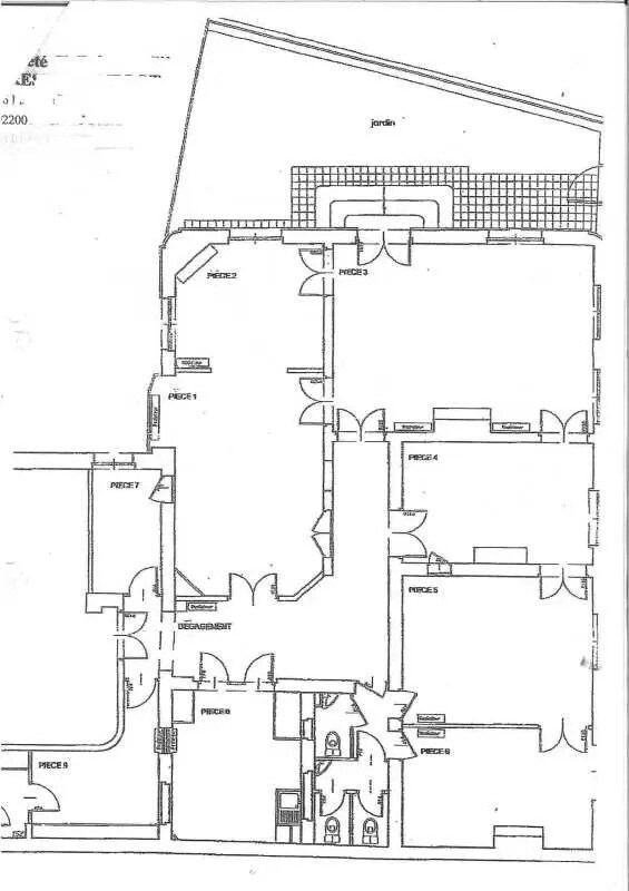
Ce que l'on aime : La proximité immédiate des transports en commun et des commerces. A 20 mètres de la ligne 1 (Porte Maillot) Le bel immeuble haussmannien sécurisé avec gardien Les deux entrées dont une indépendante La surface très lumineuse, et en bon état Le jardin privatif Possibilité profession libérale Ce que l'on aime : La proximité immédiate des transports en commun et des commerces. A 20 mètres de la ligne 1 (Porte Maillot) Le bel immeuble haussmannien sécurisé avec gardien Les deux entrées dont une indépendante La surface très lumineuse, et en bon état Le jardin privatif Possibilité profession libérale Ce que l'on aime : La proximité immédiate des transports en commun et des commerces. A 20 mètres de la ligne 1 (Porte Maillot) Le bel immeuble haussmannien sécurisé avec gardien Les deux entrées dont une indépendante La surface très lumineuse, et en bon état Le jardin privatif Possibilité profession libérale GROUPE BABYLONE vous propose : PRESTATION IMMEUBLE : Immeuble haussmannien Interphone Belles parties communes Double accès dont un accès indépendant Chauffage collectif Fibre optique Cave PRESTATIONS LOT : Surface en bon état Très belle hauteur sous plafond Moulures, cheminées Parquet Climatisation Baie de brassage Câblage RJ45 CONFIGURATION LOT : Nombreux bureaux cloisonnés Cuisine 3 sanitaires Petit jardinet privatif Surface RDC : 180 m²
Faits sur la propriété
| Prix | 2 876 262 $ CAD | Type de propriété | Bureau (Condo) |
| Taille de l’unité | 1 937 pi² | Type de vente | Propriétaire utilisateur |
| Nombre d’unités | 1 |
| Prix | 2 876 262 $ CAD |
| Taille de l’unité | 1 937 pi² |
| Nombre d’unités | 1 |
| Type de propriété | Bureau (Condo) |
| Type de vente | Propriétaire utilisateur |
1 Unité disponible
| Taille de l’unité | 1 937 pi² | Utilisation du condo | Bureau |
| Prix | 2 876 262 $ CAD | Type de vente | Propriétaire utilisateur |
| Prix par pi² | 1 484,91 $ CAD |
| Taille de l’unité | 1 937 pi² |
| Prix | 2 876 262 $ CAD |
| Prix par pi² | 1 484,91 $ CAD |
| Utilisation du condo | Bureau |
| Type de vente | Propriétaire utilisateur |
Présenté par
"92200 Neuilly-sur-Seine"
Hmm, il semble y avoir eu une erreur lors de l’envoi de votre message. Veuillez réessayer.
Merci! Votre message a été envoyé.
