Votre courriel a été envoyé.
Norwich Cmn 2 745–5 490 pi² d'espace disponible • Médical • Wymondham NR18 0SW



Certaines informations ont été traduites automatiquement.
Faits saillants
- Site nouvellement construit
- Excellente connectivité routière
- Parking abondant
Tous les espaces disponibles(2)
Afficher les taux de location en
- Espace
- Taille
- Terme
- Taux de location
- Utilisation de l’espace
- État
- Disponible
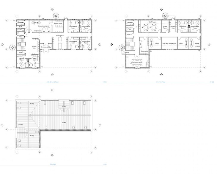
Elm Farm Business Park is an attractive, mixeduse business park with existing offices, 2 new terraces of small light industrial units (currently under construction) and a new doctors’ surgery. The new Medical Centre/Health Services building is currently under construction and will be Available from Q2 2024.
- Classe d’utilisation : E
- Peut être associé à un ou plusieurs espaces supplémentaires pour obtenir jusqu’à 5 490 pi² d’espace adjacent.
- Installations WC abandonnées
- Salles des infirmières
- Espace en excellent état
- Aire de réception
- Salles de consultation
- Services administratifs et d'agrément du personnel
Elm Farm Business Park is an attractive, mixeduse business park with existing offices, 2 new terraces of small light industrial units (currently under construction) and a new doctors’ surgery. The new Medical Centre/Health Services building is currently under construction and will be Available from Q2 2024.
- Classe d’utilisation : E
- Peut être associé à un ou plusieurs espaces supplémentaires pour obtenir jusqu’à 5 490 pi² d’espace adjacent.
- Installations WC abandonnées
- Salles des infirmières
- Espace en excellent état
- Aire de réception
- Salles de consultation
- Services administratifs et d'agrément du personnel
| Espace | Taille | Terme | Taux de location | Utilisation de l’espace | État | Disponible |
| RDC | 2 745 pi² | Négociable | Sur demande Sur demande Sur demande Sur demande | Médical | espace cloisonné | Maintenant |
| 1er étage | 2 745 pi² | Négociable | Sur demande Sur demande Sur demande Sur demande | Médical | espace cloisonné | Maintenant |
RDC
| Taille |
| 2 745 pi² |
| Terme |
| Négociable |
| Taux de location |
| Sur demande Sur demande Sur demande Sur demande |
| Utilisation de l’espace |
| Médical |
| État |
| espace cloisonné |
| Disponible |
| Maintenant |
1er étage
| Taille |
| 2 745 pi² |
| Terme |
| Négociable |
| Taux de location |
| Sur demande Sur demande Sur demande Sur demande |
| Utilisation de l’espace |
| Médical |
| État |
| espace cloisonné |
| Disponible |
| Maintenant |
RDC
| Taille | 2 745 pi² |
| Terme | Négociable |
| Taux de location | Sur demande |
| Utilisation de l’espace | Médical |
| État | espace cloisonné |
| Disponible | Maintenant |
Elm Farm Business Park is an attractive, mixeduse business park with existing offices, 2 new terraces of small light industrial units (currently under construction) and a new doctors’ surgery. The new Medical Centre/Health Services building is currently under construction and will be Available from Q2 2024.
- Classe d’utilisation : E
- Espace en excellent état
- Peut être associé à un ou plusieurs espaces supplémentaires pour obtenir jusqu’à 5 490 pi² d’espace adjacent.
- Aire de réception
- Installations WC abandonnées
- Salles de consultation
- Salles des infirmières
- Services administratifs et d'agrément du personnel
1er étage
| Taille | 2 745 pi² |
| Terme | Négociable |
| Taux de location | Sur demande |
| Utilisation de l’espace | Médical |
| État | espace cloisonné |
| Disponible | Maintenant |
Elm Farm Business Park is an attractive, mixeduse business park with existing offices, 2 new terraces of small light industrial units (currently under construction) and a new doctors’ surgery. The new Medical Centre/Health Services building is currently under construction and will be Available from Q2 2024.
- Classe d’utilisation : E
- Espace en excellent état
- Peut être associé à un ou plusieurs espaces supplémentaires pour obtenir jusqu’à 5 490 pi² d’espace adjacent.
- Aire de réception
- Installations WC abandonnées
- Salles de consultation
- Salles des infirmières
- Services administratifs et d'agrément du personnel
À propos de la propriété
La propriété est située sur l'ancienne A11 entre Hethersett et Wymondham, à environ 6 milles à l'ouest de Norwich et à moins de 2,5 milles. de la route principale (à Wymondham). La propriété offre donc un excellent accès à la A11 principale et, de là, à la voie de contournement sud de Norwich.
Faits sur la propriété
| Superficie totale disponible | 5 490 pi² | Taille du bâtiment | 5 490 pi² |
| Type de propriété | Soins de santé | Année de construction | 2024 |
| Sous-type de propriété | Hôpital |
| Superficie totale disponible | 5 490 pi² |
| Type de propriété | Soins de santé |
| Sous-type de propriété | Hôpital |
| Taille du bâtiment | 5 490 pi² |
| Année de construction | 2024 |
Présenté par
Norwich Cmn
Hmm, il semble y avoir eu une erreur lors de l’envoi de votre message. Veuillez réessayer.
Merci! Votre message a été envoyé.



