Votre courriel a été envoyé.
Certaines informations ont été traduites automatiquement.
Faits saillants
- Le Two Penn Plaza est situé du côté ouest de la 7e avenue, entre la 31e et la 33e rue.
- Les voisins comprennent Madison Square Garden, Penn Station, Moynihan Train Hall, Moynihan Food Hall, Empire State Building, Macy, H&M et Sephora.
- L'immeuble de bureaux est certifié LEED Or et offre une sécurité 24 heures sur 24, 7 jours sur 7.
- Très bien situé, à la disposition des voies de transport en commun de New York.
Tous les espaces disponibles(14)
Afficher les taux de location en
- Espace
- Taille
- Terme
- Taux de location
- Utilisation de l’espace
- Aménagement
- Disponible
The Ground, 2nd, and 3rd floors can be leased together for a maximum contiguous area of 42,866 SF.
- Plafonds finis: 17’8”
- Peut être associé à un ou plusieurs espaces supplémentaires pour obtenir jusqu’à 35 238 pi² d’espace adjacent.
Brand new high-end prebuilt underway delivering in Q1 2027. The Ground, 2nd, and 3rd floors can be leased together for a maximum contiguous area of 42,866 SF.
- Partiellement construit comme Bureau standard
- 8 bureaux privés
- 36 postes de travail
- Peut être associé à un ou plusieurs espaces supplémentaires pour obtenir jusqu’à 35 238 pi² d’espace adjacent.
- Disposition du plan d’étage ouverte en général
- 4 salles de conférence
- Espace en excellent état
The entire floor is available for lease, offering a spacious and versatile layout that can be tailored to meet various needs. With ample square footage and a flexible floor plan, this space is ideal for businesses seeking an expansive environment for offices, showrooms, or other commercial purposes. Natural light floods the area through large windows, creating a bright and inviting atmosphere. The floor also boasts modern amenities, making it a perfect choice for any organization looking to establish or expand its operations. Whether you're looking to create collaborative workspaces or private offices, the possibilities are endless.
- Partiellement construit comme Bureau standard
- 20 salles de conférence
- Plafonds finis: 11’6”
- Climatisation centrale
- Disposition du plan d’étage ouverte en général
- 156 postes de travail
- Espace en excellent état
Brand new high end prebuilt underway.
- Entièrement construit comme Bureau standard
- 7 bureaux privés
- 35 postes de travail
- Disposition du plan d’étage ouverte en général
- 2 salles de conférence
- Espace en excellent état
Brand new high end prebuilt underway. Delivery in Q1 2026.
- Partiellement construit comme Bureau standard
- 4 bureaux privés
- 53 postes de travail
- Espace en excellent état
- Disposition du plan d’étage ouverte
- 1 salle de conférence
- Plafonds finis: 11’6”
- Climatisation centrale
Brand new high-end prebuilt underway. Delivery in Q1 2027.
- Partiellement construit comme Bureau standard
- 3 bureaux privés
- 20 postes de travail
- Disposition du plan d’étage ouverte en général
- 2 salles de conférence
- Espace en excellent état
Brand new high-end prebuilt underway. Delivery in Q1 2027.
- Partiellement construit comme Bureau standard
- 4 bureaux privés
- 14 postes de travail
- Disposition du plan d’étage ouverte en général
- 1 salle de conférence
- Espace en excellent état
Brand new high-end prebuilt underway. Delivery in Q1 2027.
- Partiellement construit comme Bureau standard
- 10 bureaux privés
- 84 postes de travail
- Disposition du plan d’étage ouverte en général
- 3 salles de conférence
- Espace en excellent état
Brand new high-end prebuilt underway. Delivery in Q1 2027.
- Partiellement construit comme Bureau standard
- 4 bureaux privés
- 14 postes de travail
- Disposition du plan d’étage ouverte en général
- 1 salle de conférence
- Espace en excellent état
The entire floor is available for lease, offering a spacious and versatile layout that can be tailored to meet various needs. With ample square footage and a flexible floor plan, this space is ideal for businesses seeking an expansive environment for offices, showrooms, or other commercial purposes. Natural light floods the area through large windows, creating a bright and inviting atmosphere. The floor also boasts modern amenities, making it a perfect choice for any organization looking to establish or expand its operations. Whether you're looking to create collaborative workspaces or private offices, the possibilities are endless. There is 640 square feet of private outdoor space.
- Partiellement construit comme Bureau standard
- Plafonds finis: 11’6”
- Peut être associé à un ou plusieurs espaces supplémentaires pour obtenir jusqu’à 125 489 pi² d’espace adjacent.
- Disposition du plan d’étage ouverte
- Espace en excellent état
- Climatisation centrale
The entire floor is available for lease, offering a spacious and versatile layout that can be tailored to meet various needs. With ample square footage and a flexible floor plan, this space is ideal for businesses seeking an expansive environment for offices, showrooms, or other commercial purposes. Natural light floods the area through large windows, creating a bright and inviting atmosphere. The floor also boasts modern amenities, making it a perfect choice for any organization looking to establish or expand its operations. Whether you're looking to create collaborative workspaces or private offices, the possibilities are endless.
- Partiellement construit comme Bureau standard
- Plafonds finis: 11’6”
- Peut être associé à un ou plusieurs espaces supplémentaires pour obtenir jusqu’à 125 489 pi² d’espace adjacent.
- Disposition du plan d’étage ouverte
- Espace en excellent état
- Climatisation centrale
High-end prebuilt underway delivering in Q1 2027. Southwest unit with private landscaped loggia.
- Partiellement construit comme Bureau standard
- 6 bureaux privés
- 32 postes de travail
- Disposition du plan d’étage ouverte en général
- 2 salles de conférence
- Espace en excellent état
Brand new high-end fully furnished prebuilt available immediately. The unit includes eight private offices, a welcoming reception area, 32 workstations, three meeting rooms, and two phone booths, providing a perfect balance of open work areas and private spaces.
- Entièrement construit comme Bureau standard
- 8 bureaux privés
- 32 postes de travail
- Espace en excellent état
- Aire de réception
- Salle d’impression/Photocopie
- Disposition du plan d’étage ouverte en général
- 3 salles de conférence
- Plafonds finis: 11’6”
- Peut être associé à un ou plusieurs espaces supplémentaires pour obtenir jusqu’à 19 974 pi² d’espace adjacent.
- Cuisine
- Espace en coin
Brand new high-end fully furnished prebuilt available immediately. The unit includes five private offices, a welcoming reception area, 20 workstations, two meeting rooms, and two phone booths, striking a perfect balance between open collaboration spaces and private work areas.
- Entièrement construit comme Bureau standard
- 5 bureaux privés
- 20 postes de travail
- Espace en excellent état
- Aire de réception
- Salle d’impression/Photocopie
- Disposition du plan d’étage ouverte en général
- 2 salles de conférence
- Plafonds finis: 11’6”
- Peut être associé à un ou plusieurs espaces supplémentaires pour obtenir jusqu’à 19 974 pi² d’espace adjacent.
- Cuisine
- Espace en coin
| Espace | Taille | Terme | Taux de location | Utilisation de l’espace | Aménagement | Disponible |
| 2e étage | 22 941 pi² | Négociable | Sur demande Sur demande Sur demande Sur demande | Bureau/Commerce de détail | espace cloisonné | 30 jours |
| 3e étage | 12 297 pi² | Négociable | Sur demande Sur demande Sur demande Sur demande | Bureau | construction partielle | Maintenant |
| 11e étage, ste Entire | 62 223 pi² | Négociable | Sur demande Sur demande Sur demande Sur demande | Bureau | construction partielle | Maintenant |
| 12e étage, ste B | 9 813 pi² | Négociable | Sur demande Sur demande Sur demande Sur demande | Bureau | construction complète | Maintenant |
| 17e étage, ste A | 9 687 pi² | Négociable | Sur demande Sur demande Sur demande Sur demande | Bureau | construction partielle | Maintenant |
| 17e étage, ste B | 6 521 pi² | Négociable | Sur demande Sur demande Sur demande Sur demande | Bureau | construction partielle | Maintenant |
| 17e étage, ste C | 5 217 pi² | Négociable | Sur demande Sur demande Sur demande Sur demande | Bureau | construction partielle | Maintenant |
| 17e étage, ste D | 17 805 pi² | Négociable | Sur demande Sur demande Sur demande Sur demande | Bureau | construction partielle | Maintenant |
| 17e étage, ste E | 5 070 pi² | Négociable | Sur demande Sur demande Sur demande Sur demande | Bureau | construction partielle | Maintenant |
| 20e étage, ste Entire | 63 180 pi² | Négociable | Sur demande Sur demande Sur demande Sur demande | Bureau | construction partielle | Maintenant |
| 21e étage, ste Entire | 62 309 pi² | Négociable | Sur demande Sur demande Sur demande Sur demande | Bureau | construction partielle | Maintenant |
| 22e étage | 9 602 pi² | Négociable | Sur demande Sur demande Sur demande Sur demande | Bureau | construction partielle | Maintenant |
| 24e étage, ste D | 12 116 pi² | Négociable | Sur demande Sur demande Sur demande Sur demande | Bureau | construction complète | Maintenant |
| 24e étage, ste E | 7 858 pi² | Négociable | Sur demande Sur demande Sur demande Sur demande | Bureau | construction complète | Maintenant |
2e étage
| Taille |
| 22 941 pi² |
| Terme |
| Négociable |
| Taux de location |
| Sur demande Sur demande Sur demande Sur demande |
| Utilisation de l’espace |
| Bureau/Commerce de détail |
| Aménagement |
| espace cloisonné |
| Disponible |
| 30 jours |
3e étage
| Taille |
| 12 297 pi² |
| Terme |
| Négociable |
| Taux de location |
| Sur demande Sur demande Sur demande Sur demande |
| Utilisation de l’espace |
| Bureau |
| Aménagement |
| construction partielle |
| Disponible |
| Maintenant |
11e étage, ste Entire
| Taille |
| 62 223 pi² |
| Terme |
| Négociable |
| Taux de location |
| Sur demande Sur demande Sur demande Sur demande |
| Utilisation de l’espace |
| Bureau |
| Aménagement |
| construction partielle |
| Disponible |
| Maintenant |
12e étage, ste B
| Taille |
| 9 813 pi² |
| Terme |
| Négociable |
| Taux de location |
| Sur demande Sur demande Sur demande Sur demande |
| Utilisation de l’espace |
| Bureau |
| Aménagement |
| construction complète |
| Disponible |
| Maintenant |
17e étage, ste A
| Taille |
| 9 687 pi² |
| Terme |
| Négociable |
| Taux de location |
| Sur demande Sur demande Sur demande Sur demande |
| Utilisation de l’espace |
| Bureau |
| Aménagement |
| construction partielle |
| Disponible |
| Maintenant |
17e étage, ste B
| Taille |
| 6 521 pi² |
| Terme |
| Négociable |
| Taux de location |
| Sur demande Sur demande Sur demande Sur demande |
| Utilisation de l’espace |
| Bureau |
| Aménagement |
| construction partielle |
| Disponible |
| Maintenant |
17e étage, ste C
| Taille |
| 5 217 pi² |
| Terme |
| Négociable |
| Taux de location |
| Sur demande Sur demande Sur demande Sur demande |
| Utilisation de l’espace |
| Bureau |
| Aménagement |
| construction partielle |
| Disponible |
| Maintenant |
17e étage, ste D
| Taille |
| 17 805 pi² |
| Terme |
| Négociable |
| Taux de location |
| Sur demande Sur demande Sur demande Sur demande |
| Utilisation de l’espace |
| Bureau |
| Aménagement |
| construction partielle |
| Disponible |
| Maintenant |
17e étage, ste E
| Taille |
| 5 070 pi² |
| Terme |
| Négociable |
| Taux de location |
| Sur demande Sur demande Sur demande Sur demande |
| Utilisation de l’espace |
| Bureau |
| Aménagement |
| construction partielle |
| Disponible |
| Maintenant |
20e étage, ste Entire
| Taille |
| 63 180 pi² |
| Terme |
| Négociable |
| Taux de location |
| Sur demande Sur demande Sur demande Sur demande |
| Utilisation de l’espace |
| Bureau |
| Aménagement |
| construction partielle |
| Disponible |
| Maintenant |
21e étage, ste Entire
| Taille |
| 62 309 pi² |
| Terme |
| Négociable |
| Taux de location |
| Sur demande Sur demande Sur demande Sur demande |
| Utilisation de l’espace |
| Bureau |
| Aménagement |
| construction partielle |
| Disponible |
| Maintenant |
22e étage
| Taille |
| 9 602 pi² |
| Terme |
| Négociable |
| Taux de location |
| Sur demande Sur demande Sur demande Sur demande |
| Utilisation de l’espace |
| Bureau |
| Aménagement |
| construction partielle |
| Disponible |
| Maintenant |
24e étage, ste D
| Taille |
| 12 116 pi² |
| Terme |
| Négociable |
| Taux de location |
| Sur demande Sur demande Sur demande Sur demande |
| Utilisation de l’espace |
| Bureau |
| Aménagement |
| construction complète |
| Disponible |
| Maintenant |
24e étage, ste E
| Taille |
| 7 858 pi² |
| Terme |
| Négociable |
| Taux de location |
| Sur demande Sur demande Sur demande Sur demande |
| Utilisation de l’espace |
| Bureau |
| Aménagement |
| construction complète |
| Disponible |
| Maintenant |
2e étage
| Taille | 22 941 pi² |
| Terme | Négociable |
| Taux de location | Sur demande |
| Utilisation de l’espace | Bureau/Commerce de détail |
| Aménagement | espace cloisonné |
| Disponible | 30 jours |
The Ground, 2nd, and 3rd floors can be leased together for a maximum contiguous area of 42,866 SF.
- Plafonds finis: 17’8”
- Peut être associé à un ou plusieurs espaces supplémentaires pour obtenir jusqu’à 35 238 pi² d’espace adjacent.
3e étage
| Taille | 12 297 pi² |
| Terme | Négociable |
| Taux de location | Sur demande |
| Utilisation de l’espace | Bureau |
| Aménagement | construction partielle |
| Disponible | Maintenant |
Brand new high-end prebuilt underway delivering in Q1 2027. The Ground, 2nd, and 3rd floors can be leased together for a maximum contiguous area of 42,866 SF.
- Partiellement construit comme Bureau standard
- Disposition du plan d’étage ouverte en général
- 8 bureaux privés
- 4 salles de conférence
- 36 postes de travail
- Espace en excellent état
- Peut être associé à un ou plusieurs espaces supplémentaires pour obtenir jusqu’à 35 238 pi² d’espace adjacent.
11e étage, ste Entire
| Taille | 62 223 pi² |
| Terme | Négociable |
| Taux de location | Sur demande |
| Utilisation de l’espace | Bureau |
| Aménagement | construction partielle |
| Disponible | Maintenant |
The entire floor is available for lease, offering a spacious and versatile layout that can be tailored to meet various needs. With ample square footage and a flexible floor plan, this space is ideal for businesses seeking an expansive environment for offices, showrooms, or other commercial purposes. Natural light floods the area through large windows, creating a bright and inviting atmosphere. The floor also boasts modern amenities, making it a perfect choice for any organization looking to establish or expand its operations. Whether you're looking to create collaborative workspaces or private offices, the possibilities are endless.
- Partiellement construit comme Bureau standard
- Disposition du plan d’étage ouverte en général
- 20 salles de conférence
- 156 postes de travail
- Plafonds finis: 11’6”
- Espace en excellent état
- Climatisation centrale
12e étage, ste B
| Taille | 9 813 pi² |
| Terme | Négociable |
| Taux de location | Sur demande |
| Utilisation de l’espace | Bureau |
| Aménagement | construction complète |
| Disponible | Maintenant |
Brand new high end prebuilt underway.
- Entièrement construit comme Bureau standard
- Disposition du plan d’étage ouverte en général
- 7 bureaux privés
- 2 salles de conférence
- 35 postes de travail
- Espace en excellent état
17e étage, ste A
| Taille | 9 687 pi² |
| Terme | Négociable |
| Taux de location | Sur demande |
| Utilisation de l’espace | Bureau |
| Aménagement | construction partielle |
| Disponible | Maintenant |
Brand new high end prebuilt underway. Delivery in Q1 2026.
- Partiellement construit comme Bureau standard
- Disposition du plan d’étage ouverte
- 4 bureaux privés
- 1 salle de conférence
- 53 postes de travail
- Plafonds finis: 11’6”
- Espace en excellent état
- Climatisation centrale
17e étage, ste B
| Taille | 6 521 pi² |
| Terme | Négociable |
| Taux de location | Sur demande |
| Utilisation de l’espace | Bureau |
| Aménagement | construction partielle |
| Disponible | Maintenant |
Brand new high-end prebuilt underway. Delivery in Q1 2027.
- Partiellement construit comme Bureau standard
- Disposition du plan d’étage ouverte en général
- 3 bureaux privés
- 2 salles de conférence
- 20 postes de travail
- Espace en excellent état
17e étage, ste C
| Taille | 5 217 pi² |
| Terme | Négociable |
| Taux de location | Sur demande |
| Utilisation de l’espace | Bureau |
| Aménagement | construction partielle |
| Disponible | Maintenant |
Brand new high-end prebuilt underway. Delivery in Q1 2027.
- Partiellement construit comme Bureau standard
- Disposition du plan d’étage ouverte en général
- 4 bureaux privés
- 1 salle de conférence
- 14 postes de travail
- Espace en excellent état
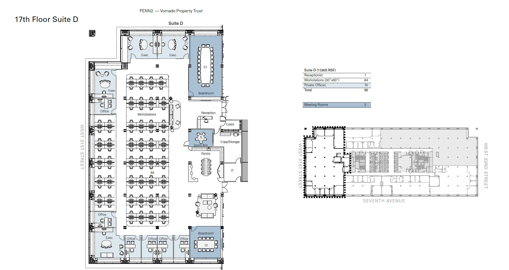
17e étage, ste D
| Taille | 17 805 pi² |
| Terme | Négociable |
| Taux de location | Sur demande |
| Utilisation de l’espace | Bureau |
| Aménagement | construction partielle |
| Disponible | Maintenant |
Brand new high-end prebuilt underway. Delivery in Q1 2027.
- Partiellement construit comme Bureau standard
- Disposition du plan d’étage ouverte en général
- 10 bureaux privés
- 3 salles de conférence
- 84 postes de travail
- Espace en excellent état
17e étage, ste E
| Taille | 5 070 pi² |
| Terme | Négociable |
| Taux de location | Sur demande |
| Utilisation de l’espace | Bureau |
| Aménagement | construction partielle |
| Disponible | Maintenant |
Brand new high-end prebuilt underway. Delivery in Q1 2027.
- Partiellement construit comme Bureau standard
- Disposition du plan d’étage ouverte en général
- 4 bureaux privés
- 1 salle de conférence
- 14 postes de travail
- Espace en excellent état
20e étage, ste Entire
| Taille | 63 180 pi² |
| Terme | Négociable |
| Taux de location | Sur demande |
| Utilisation de l’espace | Bureau |
| Aménagement | construction partielle |
| Disponible | Maintenant |
The entire floor is available for lease, offering a spacious and versatile layout that can be tailored to meet various needs. With ample square footage and a flexible floor plan, this space is ideal for businesses seeking an expansive environment for offices, showrooms, or other commercial purposes. Natural light floods the area through large windows, creating a bright and inviting atmosphere. The floor also boasts modern amenities, making it a perfect choice for any organization looking to establish or expand its operations. Whether you're looking to create collaborative workspaces or private offices, the possibilities are endless. There is 640 square feet of private outdoor space.
- Partiellement construit comme Bureau standard
- Disposition du plan d’étage ouverte
- Plafonds finis: 11’6”
- Espace en excellent état
- Peut être associé à un ou plusieurs espaces supplémentaires pour obtenir jusqu’à 125 489 pi² d’espace adjacent.
- Climatisation centrale
21e étage, ste Entire
| Taille | 62 309 pi² |
| Terme | Négociable |
| Taux de location | Sur demande |
| Utilisation de l’espace | Bureau |
| Aménagement | construction partielle |
| Disponible | Maintenant |
The entire floor is available for lease, offering a spacious and versatile layout that can be tailored to meet various needs. With ample square footage and a flexible floor plan, this space is ideal for businesses seeking an expansive environment for offices, showrooms, or other commercial purposes. Natural light floods the area through large windows, creating a bright and inviting atmosphere. The floor also boasts modern amenities, making it a perfect choice for any organization looking to establish or expand its operations. Whether you're looking to create collaborative workspaces or private offices, the possibilities are endless.
- Partiellement construit comme Bureau standard
- Disposition du plan d’étage ouverte
- Plafonds finis: 11’6”
- Espace en excellent état
- Peut être associé à un ou plusieurs espaces supplémentaires pour obtenir jusqu’à 125 489 pi² d’espace adjacent.
- Climatisation centrale
22e étage
| Taille | 9 602 pi² |
| Terme | Négociable |
| Taux de location | Sur demande |
| Utilisation de l’espace | Bureau |
| Aménagement | construction partielle |
| Disponible | Maintenant |
High-end prebuilt underway delivering in Q1 2027. Southwest unit with private landscaped loggia.
- Partiellement construit comme Bureau standard
- Disposition du plan d’étage ouverte en général
- 6 bureaux privés
- 2 salles de conférence
- 32 postes de travail
- Espace en excellent état
24e étage, ste D
| Taille | 12 116 pi² |
| Terme | Négociable |
| Taux de location | Sur demande |
| Utilisation de l’espace | Bureau |
| Aménagement | construction complète |
| Disponible | Maintenant |
Brand new high-end fully furnished prebuilt available immediately. The unit includes eight private offices, a welcoming reception area, 32 workstations, three meeting rooms, and two phone booths, providing a perfect balance of open work areas and private spaces.
- Entièrement construit comme Bureau standard
- Disposition du plan d’étage ouverte en général
- 8 bureaux privés
- 3 salles de conférence
- 32 postes de travail
- Plafonds finis: 11’6”
- Espace en excellent état
- Peut être associé à un ou plusieurs espaces supplémentaires pour obtenir jusqu’à 19 974 pi² d’espace adjacent.
- Aire de réception
- Cuisine
- Salle d’impression/Photocopie
- Espace en coin
24e étage, ste E
| Taille | 7 858 pi² |
| Terme | Négociable |
| Taux de location | Sur demande |
| Utilisation de l’espace | Bureau |
| Aménagement | construction complète |
| Disponible | Maintenant |
Brand new high-end fully furnished prebuilt available immediately. The unit includes five private offices, a welcoming reception area, 20 workstations, two meeting rooms, and two phone booths, striking a perfect balance between open collaboration spaces and private work areas.
- Entièrement construit comme Bureau standard
- Disposition du plan d’étage ouverte en général
- 5 bureaux privés
- 2 salles de conférence
- 20 postes de travail
- Plafonds finis: 11’6”
- Espace en excellent état
- Peut être associé à un ou plusieurs espaces supplémentaires pour obtenir jusqu’à 19 974 pi² d’espace adjacent.
- Aire de réception
- Cuisine
- Salle d’impression/Photocopie
- Espace en coin
Aperçu de la propriété
Vornado a récemment entrepris le réaménagement de PENN 2, situé directement au-dessus de Penn Station, sur l'un des immeubles uniques à double largeur de New York. Le nouveau PENN 2 transformera cet immeuble de bureaux de 1968 en une tour emblématique de classe mondiale. En redécorant l'ensemble du bâtiment avec un nouveau mur-rideau, en ajoutant des loggias d'angle distinctives à chaque étage et en étendant les étages de base vers la Septième Avenue, la façade en blocs de 430 pieds de long du PENN 2 contiendra plus de 88 000 pieds carrés d'espace à double hauteur sans colonnes. Le nouveau hall d'entrée à trois hauteurs déplacera l'entrée des bureaux de PENN 2 à partir de la nouvelle place bordée d'arbres de la 33e rue. Cette nouvelle icône architecturale comprendra également divers espaces flexibles pour les locataires pour travailler ou socialiser et des événements privés - y compris un hôtel de ville de 280 personnes, des salons décontractés, un pavillon sur le toit, des espaces verts extérieurs et plus d'un acre de terrasses extérieures offrant une vue à 360 degrés sur New York.
- Accès 24 heures
- Banque
- Ligne d'autobus
- Métro
- Gestionnaire d'immeuble sur place
- Restaurant
- Système de sécurité
- Terrasse sur le toit
- Balcon
Faits sur la propriété
Sélectionner des locataires
- Étage
- Nom du locataire
- Secteur
- 11ᵉ
- American Foundation for the Blind
- Services
- 24ᵉ
- Axiom Markets
- Finance et assurances
- Multiple
- MSG Entertainment
- Arts, divertissement et loisirs
- 10ᵉ
- Schoology
- Services éducatifs
- 15ᵉ
- Tao Group Hospitality
- Arts, divertissement et loisirs
- 14ᵉ
- The Garden Of Dreams Foundation
- Services
Durabilité
Durabilité
Certification LEED Établi par le U.S. Green Building Council (USGBC, Conseil américain du bâtiment durable), le programme de certification LEED (Leadership in Energy and Environmental Design) est axé sur la conception, la construction, l’exploitation et l’entretien de bâtiments, de maisons et de quartiers écologiques. Sa vocation est d’aider les propriétaires et les exploitants à adopter des pratiques écoresponsables et à utiliser les ressources de façon efficace. La certification LEED est un symbole mondialement reconnu de réussite et de leadership en matière de développement durable. Pour obtenir la certification LEED, un projet doit obtenir des points en respectant des conditions préalables et un barème de crédits qui tiennent compte des émissions de carbone, de l’énergie, de l’eau, des déchets, du transport, des matériaux, de la santé et de la qualité de l’environnement intérieur. Les projets passent par un processus de vérification et d’évaluation et reçoivent un pointage correspondant à un niveau de certification LEED: Platine (80 points et plus) Or (60 à 79 points) Silver (50-59 points) Certifié (40 à 49 points)
Présenté par
Entreprise non fournie
Two Penn Plaza | PENN 2
Hmm, il semble y avoir eu une erreur lors de l’envoi de votre message. Veuillez réessayer.
Merci! Votre message a été envoyé.



































