Se Connecter/S’inscrire
Votre courriel a été envoyé.
Saracens Head Paddock Ln 2 500 pi² Commerce de détail Immeuble Warburton WA13 9TH 1 569 109 $ CAD (627,64 $ CAD/pi²)



Certaines informations ont été traduites automatiquement.
Faits saillants de l'investissement
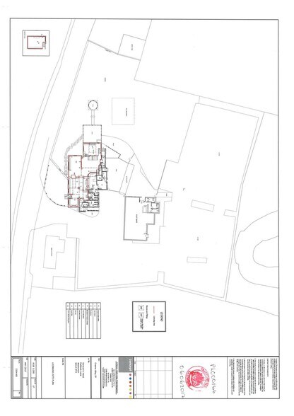
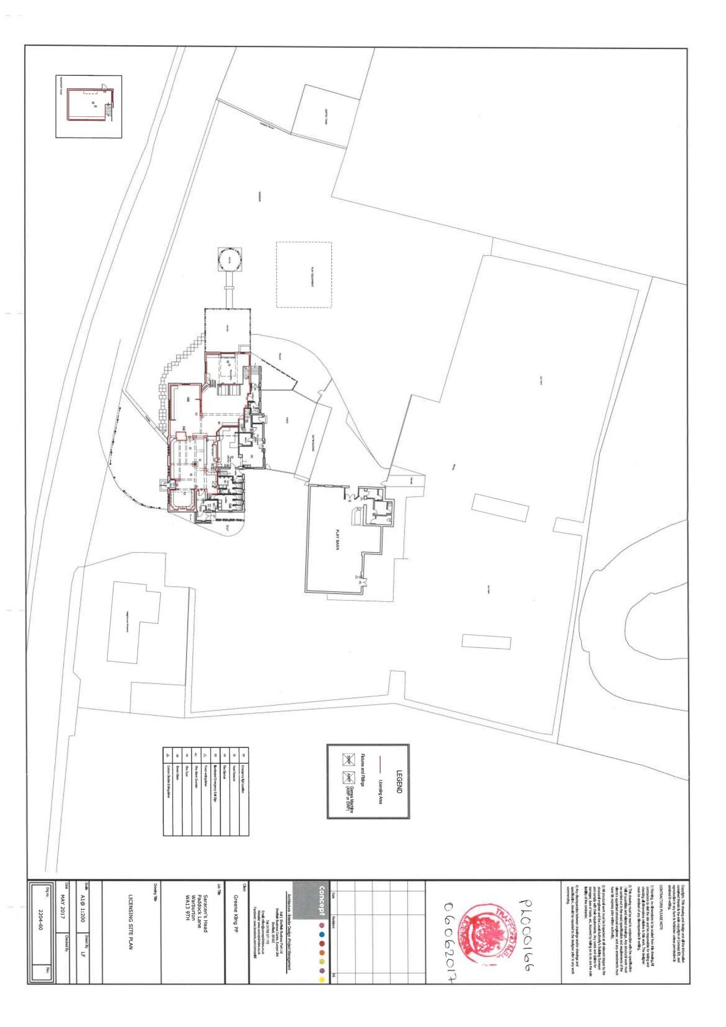
- Large Detached Public House
- First Floor Living Accommodation
- Fronting the A6144 in Greater Manchester
- Ground Floor Trading Accommodation
- Play Barn, Beer Garden and Car Parking
- The Site Extends to 3.3 Acres
Résumé de l'annonce
The Property comprises a detached two storey public house of brick elevations, set beneath a pitched slate and tile covered roof. To the side and rear there are single storey extensions, beneath a variety of pitched and flats roofs. Externally there are two outbuildings, one providing a children’s play barn, the other storage. To the front there is a beer patio and to the side is a large beer garden with further play areas. The car park to the rear is extensive, with approximately 120 spaces. Overall the site extends to 3.3 acres.
Faits sur la propriété Vente en attente
Type de vente
Investissement
Type de propriété
Commerce de détail
Ancienneté
Pleine propriété
Sous-type de propriété
Bar
Taille du bâtiment
2 500 pi²
Année de construction
1910
Prix
1 569 109 $ CAD
Prix par pi²
627,64 $ CAD
Location
Unique
Hauteur du bâtiment
1 étage
Coefficient d’occupation des sols de l’immeuble
0,02
Taille du lot
3,31 AC
Stationnement
120 places (48 places par 1 000 pi² loué)
Commodités
- Cour
- Espace d'entreposage
- Détecteur de fumée
1 1
1 de 19
Vidéos
Visite extérieure 3D Matterport
Visite 3D Matterport
Photos
Vue depuis la rue
Rue
Carte
1 de 1
Présenté par
Saracens Head | Paddock Ln
Vous êtes déjà membre? Connectez-vous
Hmm, il semble y avoir eu une erreur lors de l’envoi de votre message. Veuillez réessayer.
Merci! Votre message a été envoyé.
