Votre courriel a été envoyé.
75016 Paris Unité de condo • Bureau • 4 682 pi² • À vendre 13 721 408 $ CAD



Certaines informations ont été traduites automatiquement.
Description
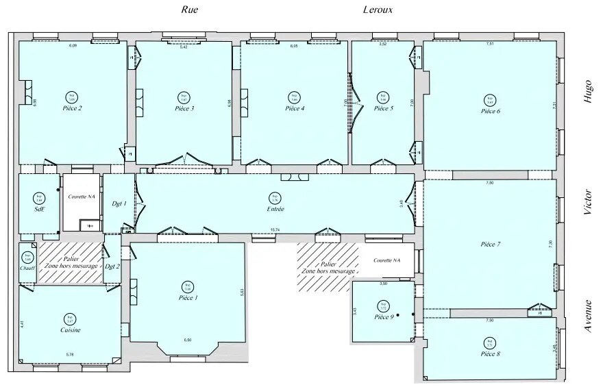
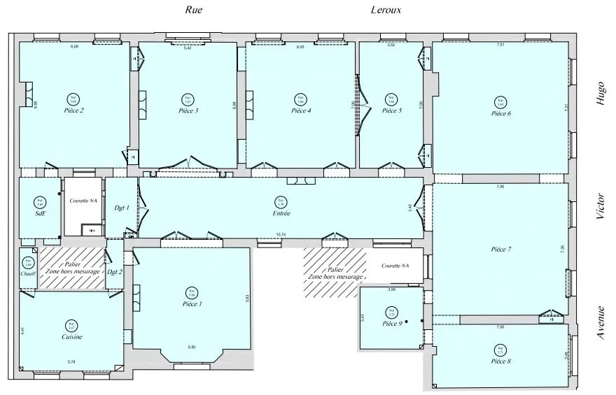
Entre la Place de l'Etoile et la Place Victor Hugo, dans un immeuble haussmannien, Consult'im vous propose une surface de bureaux à la vente de 435m² au 1er étage. CARACTERISTIQUES DE L'OFFRE Une entrée galerie 4 open-spaces 2 bureaux 2 salles de réunion Une grande cuisine équipée 4 sanitaires Une douche CONDITIONS FINANCIERES Prix de vente : 8 700 000€ Net vendeur Honoraires : 5% HT du prix net vendeur Vente de parts de SCI envisageable Câblage informatique;Cheminées;Climatisation;Cuisine;Moulures;Parquet
Faits sur la propriété
| Prix | 13 721 408 $ CAD | Type de propriété | Bureau (Condo) |
| Taille de l’unité | 4 682 pi² | Type de vente | Propriétaire utilisateur |
| Nombre d’unités | 1 |
| Prix | 13 721 408 $ CAD |
| Taille de l’unité | 4 682 pi² |
| Nombre d’unités | 1 |
| Type de propriété | Bureau (Condo) |
| Type de vente | Propriétaire utilisateur |
1 Unité disponible
| Taille de l’unité | 4 682 pi² | Utilisation du condo | Bureau |
| Prix | 13 721 408 $ CAD | Type de vente | Propriétaire utilisateur |
| Prix par pi² | 2 930,67 $ CAD |
| Taille de l’unité | 4 682 pi² |
| Prix | 13 721 408 $ CAD |
| Prix par pi² | 2 930,67 $ CAD |
| Utilisation du condo | Bureau |
| Type de vente | Propriétaire utilisateur |
Présenté par
"75016 Paris"
Hmm, il semble y avoir eu une erreur lors de l’envoi de votre message. Veuillez réessayer.
Merci! Votre message a été envoyé.
