Votre courriel a été envoyé.
Park Street - Park & Beaufort Development Opportunity Lot • Résidentiel • 1,33 Acres • 759 476 $ CAD • Columbia, SC 29201



Certaines informations ont été traduites automatiquement.
FAITS SAILLANTS DE L'INVESTISSEMENT
- Development Opportunity
- Adjacent to planned greenway
- Prime Downtown Location
RÉSUMÉ DE L'ANNONCE
FAITS SUR LA PROPRIÉTÉ
1 LOT DISPONIBLE
Lot
| Prix | 759 476 $ CAD | Taille du lot | 1,33 AC |
| Prix par AC | 571 034,32 $ CAD |
| Prix | 759 476 $ CAD |
| Prix par AC | 571 034,32 $ CAD |
| Taille du lot | 1,33 AC |
This parcel is located the intersection of Park Street and Beaufort Street in the desirable Earlewood area of downtown Columbia.
DESCRIPTION
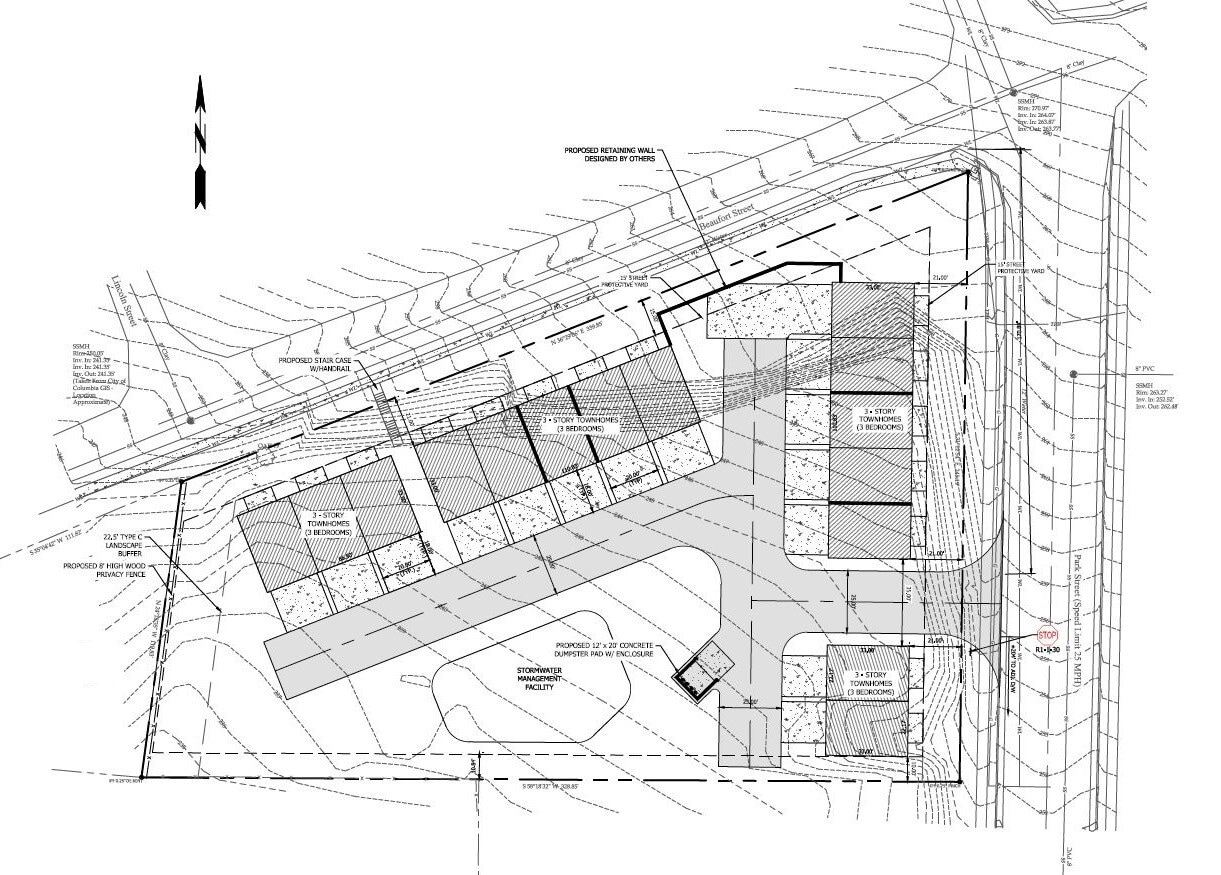
Occasion exceptionnelle de développement au centre-ville de Columbia. Ce terrain d'angle est situé à proximité immédiate du quartier central des affaires, du projet de développement mixte de Bull Street, du quartier de divertissement Vista, du Capitole de l'État et de l'Université de Caroline du Sud. Le site est zoné RM-2, ce qui permet la construction de maisons unifamiliales, de duplex, de maisons en rangée et d'appartements. Il n'y a aucune densité maximale pour les maisons en rangée, et le site pourrait accueillir jusqu'à 22 unités pour un projet multifamilial. Les plans conceptuels existants proposent un développement de 15 unités de maisons en rangée ou un développement de 17 unités. Certaines approbations préliminaires ont déjà été obtenues. Les services d'eau et d'égouts sont disponibles auprès de la Ville de Columbia. Aucun changement de zonage n'est requis pour le développement. Consultez le dossier de vente ci-joint et contactez l'agent pour plus d'informations.
Impôts fonciers
| Numéro de lot | 09109-20-13 | Évaluation des bâtiments | 693 $ CAD |
| Évaluation du terrain | 90 631 $ CAD | Évaluation totale | 91 324 $ CAD |
Impôts fonciers
Présenté par
Park Street - Park & Beaufort Development Opportunity
Hmm, il semble y avoir eu une erreur lors de l’envoi de votre message. Veuillez réessayer.
Merci! Votre message a été envoyé.
