Se Connecter/S’inscrire
Votre courriel a été envoyé.
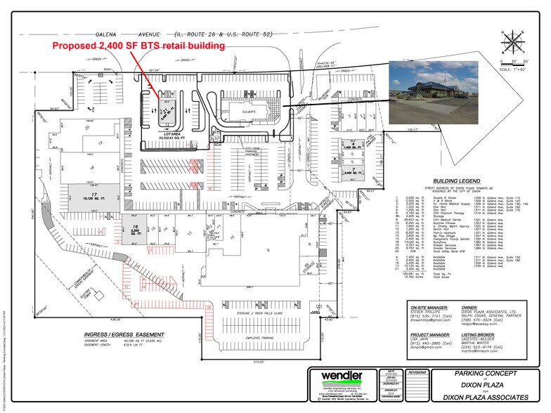
Proposed Outlot BTS
Dixon, IL 61021
Dixon Plaza Outlot · Commerce de détail Propriété À vendre


Certaines informations ont été traduites automatiquement.
FAITS SAILLANTS DE L'INVESTISSEMENT
- Will BTS 2 400 +/- SF Out Lot Building, adjacent aux ponceaux.
- Façade sur le corridor de vente au détail de l'avenue Galena
- Centre de vente au détail Dixon Plaza avec ancres Anytime Fitness, AutoZone, Pam's Hallmark et Centre médical CGH.
RÉSUMÉ DE L'ANNONCE
Édifice extérieur (construit sur mesure) disponible à côté de Culvers : 2 400 +/- PI2 proposés. Ancres de centre - Anytime Fitness, AutoZone, Pam's Hallmark, Centre médical de la CGH.
FAITS SUR LA PROPRIÉTÉ
Type de vente
Investissement
Condition de vente
Construction sur mesure
Type de propriété
Commerce de détail
Sous-type de propriété
Taille du bâtiment
2 400 pi²
Classe d’immeuble
C
État de la construction
Proposé
Pourcentage loué
100%
Hauteur du bâtiment
1 étage
Impôts fonciers
| Numéro de lot | 07-02-30-477-016 | Évaluation des bâtiments | 1 407 072 $ CAD |
| Évaluation du terrain | 402 020 $ CAD | Évaluation totale | 1 809 093 $ CAD |
Impôts fonciers
Numéro de lot
07-02-30-477-016
Évaluation du terrain
402 020 $ CAD
Évaluation des bâtiments
1 407 072 $ CAD
Évaluation totale
1 809 093 $ CAD
1 de 8
VIDÉOS
VISITE EXTÉRIEURE 3D MATTERPORT
VISITE 3D MATTERPORT
PHOTOS
VUE DEPUIS LA RUE
RUE
CARTE
