Votre courriel a été envoyé.
Cantium House Railway Appr 1 870–25 091 pi² d'espace disponible • Bureau • Wallington SM6 0HB



Certaines informations ont été traduites automatiquement.
Faits saillants
- Air conditioning.
- Suspended ceilings with recessed light fittings.
- Boardroom and Meeting Room.
- Cat 5e connected to workstations.
- Numerous Executive offices.
- Raised Floors.
- Fitted, plug and play.
- Functioning Server Room with patch panel.
- Modern workstations available.
- on site parking.
Tous les espaces disponibles(6)
Afficher les taux de location en
- Espace
- Taille
- Terme
- Taux de location
- Utilisation de l’espace
- Aménagement
- Disponible
Cantium House comprises a self-contained office building totally approximately 37,268 sq ft (3,462 sq m) of office accommodation arranged over 5 floors with lower level parking. The available accommodation comprises part 3rd floor (3,692 sq ft) and the whole of the 4th Floor (4,648 sq ft), which provide superb suites of Grade A fitted offices currently laid out to provide a mixture of open plan and cellular work spaces, executive offices and meeting/Boardroom facilities.
- Classe d’utilisation : E
- Disposition du plan d’étage ouverte en général
- Climatisation centrale
- Plancher surélevé
- Cote de rendement énergétique - D
- Plan ouvert
- Grade A offices
- Suspended ceilings with recessed light fittings
- Partiellement construit comme Bureau standard
- Clé en main
- Complètement tapissé
- Lumière naturelle
- Installations WC abandonnées
- Détecteur de fumée
- Fitted, Plug & Play
- Five parking spaces
Cantium House comprises a self-contained office building totally approximately 37,268 sq ft (3,462 sq m) of office accommodation arranged over 5 floors with lower level parking. The available accommodation comprises part 3rd floor (3,692 sq ft) and the whole of the 4th Floor (4,648 sq ft), which provide superb suites of Grade A fitted offices currently laid out to provide a mixture of open plan and cellular work spaces, executive offices and meeting/Boardroom facilities.
- Classe d’utilisation : E
- Disposition du plan d’étage ouverte en général
- Peut être associé à un ou plusieurs espaces supplémentaires pour obtenir jusqu’à 10 879 pi² d’espace adjacent.
- Complètement tapissé
- Cote de rendement énergétique - D
- Détecteur de fumée
- Ajusté, prêt à l'emploi
- Deux places de stationnement
- Partiellement construit comme Bureau standard
- Clé en main
- Climatisation centrale
- Plancher surélevé
- Installations WC abandonnées
- Bureaux de catégorie A
- Plafonds suspendus avec luminaires encastrés
Cantium House comprises a self-contained office building totally approximately 37,268 sq ft (3,462 sq m) of office accommodation arranged over 5 floors with lower level parking. The available accommodation comprises part 3rd floor (3,692 sq ft) and the whole of the 4th Floor (4,648 sq ft), which provide superb suites of Grade A fitted offices currently laid out to provide a mixture of open plan and cellular work spaces, executive offices and meeting/Boardroom facilities.
- Classe d’utilisation : E
- Disposition du plan d’étage ouverte en général
- Peut être associé à un ou plusieurs espaces supplémentaires pour obtenir jusqu’à 5 626 pi² d’espace adjacent.
- Complètement tapissé
- Cote de rendement énergétique - D
- Détecteur de fumée
- Fitted, Plug & Play
- Two Parking spaces
- Partiellement construit comme Bureau standard
- Clé en main
- Climatisation centrale
- Plancher surélevé
- Installations WC abandonnées
- Grade A offices
- Suspended ceilings with recessed light fittings
Cantium House comprises a self-contained office building totally approximately 37,268 sq ft (3,462 sq m) of office accommodation arranged over 5 floors with lower level parking. The available accommodation comprises part 3rd floor (3,692 sq ft) and the whole of the 4th Floor (4,648 sq ft), which provide superb suites of Grade A fitted offices currently laid out to provide a mixture of open plan and cellular work spaces, executive offices and meeting/Boardroom facilities.
- Classe d’utilisation : E
- Disposition du plan d’étage ouverte en général
- Peut être associé à un ou plusieurs espaces supplémentaires pour obtenir jusqu’à 5 626 pi² d’espace adjacent.
- Complètement tapissé
- Hauts plafonds
- Cote de rendement énergétique - D
- Détecteur de fumée
- Fitted, Plug & Play
- Two Parking spaces
- Partiellement construit comme Bureau standard
- Clé en main
- Climatisation centrale
- Plancher surélevé
- Lumière naturelle
- Installations WC abandonnées
- Grade A offices
- Suspended ceilings with recessed light fittings
Cantium House comprises a self-contained office building totally approximately 37,268 sq ft (3,462 sq m) of office accommodation arranged over 5 floors with lower level parking. The available accommodation comprises part 3rd floor (3,692 sq ft) and the whole of the 4th Floor (4,648 sq ft), which provide superb suites of Grade A fitted offices currently laid out to provide a mixture of open plan and cellular work spaces, executive offices and meeting/Boardroom facilities.
- Classe d’utilisation : E
- Disposition du plan d’étage ouverte en général
- Peut être associé à un ou plusieurs espaces supplémentaires pour obtenir jusqu’à 10 879 pi² d’espace adjacent.
- Complètement tapissé
- Cote de rendement énergétique - D
- Détecteur de fumée
- Ajusté, prêt à l'emploi
- Quatre places de stationnement
- Partiellement construit comme Bureau standard
- Clé en main
- Climatisation centrale
- Plancher surélevé
- Installations WC abandonnées
- Bureaux de catégorie A
- Plafonds suspendus avec luminaires encastrés
Cantium House comprises a self-contained office building totally approximately 37,268 sq ft (3,462 sq m) of office accommodation arranged over 5 floors with lower level parking. The available accommodation comprises part 3rd floor (3,692 sq ft) and the whole of the 4th Floor (4,648 sq ft), which provide superb suites of Grade A fitted offices currently laid out to provide a mixture of open plan and cellular work spaces, executive offices and meeting/Boardroom facilities.
- Classe d’utilisation : E
- Disposition du plan d’étage ouverte en général
- Peut être associé à un ou plusieurs espaces supplémentaires pour obtenir jusqu’à 10 879 pi² d’espace adjacent.
- Complètement tapissé
- Lumière naturelle
- Installations WC abandonnées
- Détecteur de fumée
- Ajusté, prêt à l'emploi
- Cinq places de stationnement
- Partiellement construit comme Bureau standard
- Clé en main
- Climatisation centrale
- Plancher surélevé
- Cote de rendement énergétique - D
- Plan ouvert
- Bureaux de catégorie A
- Plafonds suspendus avec luminaires encastrés
| Espace | Taille | Terme | Taux de location | Utilisation de l’espace | Aménagement | Disponible |
| 1er étage | 8 586 pi² | Négociable | 39,67 $ CAD/pi²/an 3,31 $ CAD/pi²/mois 340 643 $ CAD/an 28 387 $ CAD/mois | Bureau | construction partielle | Maintenant |
| 2e étage, ste A | 2 539 pi² | Négociable | 39,67 $ CAD/pi²/an 3,31 $ CAD/pi²/mois 100 733 $ CAD/an 8 394 $ CAD/mois | Bureau | construction partielle | Maintenant |
| 2e étage, ste B | 1 870 pi² | Négociable | 39,67 $ CAD/pi²/an 3,31 $ CAD/pi²/mois 74 191 $ CAD/an 6 183 $ CAD/mois | Bureau | construction partielle | Maintenant |
| 2e étage, ste C | 3 756 pi² | Négociable | 39,67 $ CAD/pi²/an 3,31 $ CAD/pi²/mois 149 016 $ CAD/an 12 418 $ CAD/mois | Bureau | construction partielle | Maintenant |
| 3e étage, ste 1 | 3 692 pi² | Négociable | 39,67 $ CAD/pi²/an 3,31 $ CAD/pi²/mois 146 477 $ CAD/an 12 206 $ CAD/mois | Bureau | construction partielle | Maintenant |
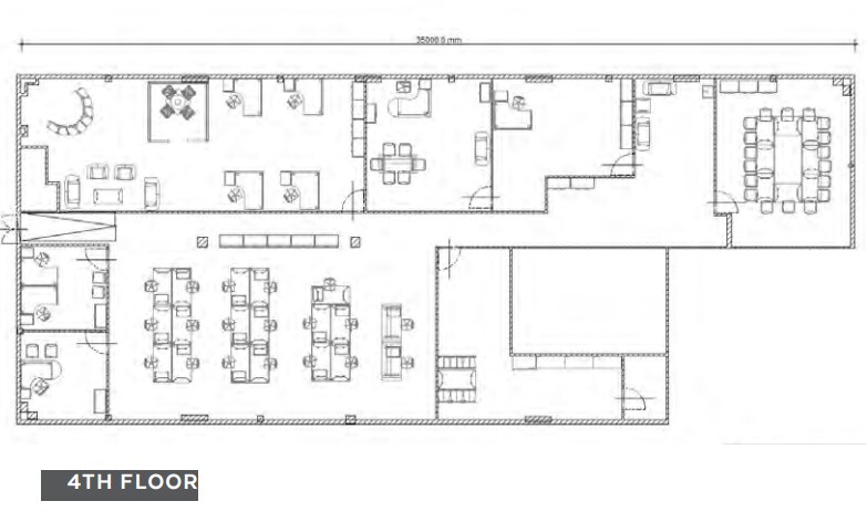
| 4e étage | 4 648 pi² | Négociable | 39,67 $ CAD/pi²/an 3,31 $ CAD/pi²/mois 184 406 $ CAD/an 15 367 $ CAD/mois | Bureau | construction partielle | Maintenant |
1er étage
| Taille |
| 8 586 pi² |
| Terme |
| Négociable |
| Taux de location |
| 39,67 $ CAD/pi²/an 3,31 $ CAD/pi²/mois 340 643 $ CAD/an 28 387 $ CAD/mois |
| Utilisation de l’espace |
| Bureau |
| Aménagement |
| construction partielle |
| Disponible |
| Maintenant |
2e étage, ste A
| Taille |
| 2 539 pi² |
| Terme |
| Négociable |
| Taux de location |
| 39,67 $ CAD/pi²/an 3,31 $ CAD/pi²/mois 100 733 $ CAD/an 8 394 $ CAD/mois |
| Utilisation de l’espace |
| Bureau |
| Aménagement |
| construction partielle |
| Disponible |
| Maintenant |
2e étage, ste B
| Taille |
| 1 870 pi² |
| Terme |
| Négociable |
| Taux de location |
| 39,67 $ CAD/pi²/an 3,31 $ CAD/pi²/mois 74 191 $ CAD/an 6 183 $ CAD/mois |
| Utilisation de l’espace |
| Bureau |
| Aménagement |
| construction partielle |
| Disponible |
| Maintenant |
2e étage, ste C
| Taille |
| 3 756 pi² |
| Terme |
| Négociable |
| Taux de location |
| 39,67 $ CAD/pi²/an 3,31 $ CAD/pi²/mois 149 016 $ CAD/an 12 418 $ CAD/mois |
| Utilisation de l’espace |
| Bureau |
| Aménagement |
| construction partielle |
| Disponible |
| Maintenant |
3e étage, ste 1
| Taille |
| 3 692 pi² |
| Terme |
| Négociable |
| Taux de location |
| 39,67 $ CAD/pi²/an 3,31 $ CAD/pi²/mois 146 477 $ CAD/an 12 206 $ CAD/mois |
| Utilisation de l’espace |
| Bureau |
| Aménagement |
| construction partielle |
| Disponible |
| Maintenant |
4e étage
| Taille |
| 4 648 pi² |
| Terme |
| Négociable |
| Taux de location |
| 39,67 $ CAD/pi²/an 3,31 $ CAD/pi²/mois 184 406 $ CAD/an 15 367 $ CAD/mois |
| Utilisation de l’espace |
| Bureau |
| Aménagement |
| construction partielle |
| Disponible |
| Maintenant |
1er étage
| Taille | 8 586 pi² |
| Terme | Négociable |
| Taux de location | 39,67 $ CAD/pi²/an |
| Utilisation de l’espace | Bureau |
| Aménagement | construction partielle |
| Disponible | Maintenant |
Cantium House comprises a self-contained office building totally approximately 37,268 sq ft (3,462 sq m) of office accommodation arranged over 5 floors with lower level parking. The available accommodation comprises part 3rd floor (3,692 sq ft) and the whole of the 4th Floor (4,648 sq ft), which provide superb suites of Grade A fitted offices currently laid out to provide a mixture of open plan and cellular work spaces, executive offices and meeting/Boardroom facilities.
- Classe d’utilisation : E
- Partiellement construit comme Bureau standard
- Disposition du plan d’étage ouverte en général
- Clé en main
- Climatisation centrale
- Complètement tapissé
- Plancher surélevé
- Lumière naturelle
- Cote de rendement énergétique - D
- Installations WC abandonnées
- Plan ouvert
- Détecteur de fumée
- Grade A offices
- Fitted, Plug & Play
- Suspended ceilings with recessed light fittings
- Five parking spaces
2e étage, ste A
| Taille | 2 539 pi² |
| Terme | Négociable |
| Taux de location | 39,67 $ CAD/pi²/an |
| Utilisation de l’espace | Bureau |
| Aménagement | construction partielle |
| Disponible | Maintenant |
Cantium House comprises a self-contained office building totally approximately 37,268 sq ft (3,462 sq m) of office accommodation arranged over 5 floors with lower level parking. The available accommodation comprises part 3rd floor (3,692 sq ft) and the whole of the 4th Floor (4,648 sq ft), which provide superb suites of Grade A fitted offices currently laid out to provide a mixture of open plan and cellular work spaces, executive offices and meeting/Boardroom facilities.
- Classe d’utilisation : E
- Partiellement construit comme Bureau standard
- Disposition du plan d’étage ouverte en général
- Clé en main
- Peut être associé à un ou plusieurs espaces supplémentaires pour obtenir jusqu’à 10 879 pi² d’espace adjacent.
- Climatisation centrale
- Complètement tapissé
- Plancher surélevé
- Cote de rendement énergétique - D
- Installations WC abandonnées
- Détecteur de fumée
- Bureaux de catégorie A
- Ajusté, prêt à l'emploi
- Plafonds suspendus avec luminaires encastrés
- Deux places de stationnement
2e étage, ste B
| Taille | 1 870 pi² |
| Terme | Négociable |
| Taux de location | 39,67 $ CAD/pi²/an |
| Utilisation de l’espace | Bureau |
| Aménagement | construction partielle |
| Disponible | Maintenant |
Cantium House comprises a self-contained office building totally approximately 37,268 sq ft (3,462 sq m) of office accommodation arranged over 5 floors with lower level parking. The available accommodation comprises part 3rd floor (3,692 sq ft) and the whole of the 4th Floor (4,648 sq ft), which provide superb suites of Grade A fitted offices currently laid out to provide a mixture of open plan and cellular work spaces, executive offices and meeting/Boardroom facilities.
- Classe d’utilisation : E
- Partiellement construit comme Bureau standard
- Disposition du plan d’étage ouverte en général
- Clé en main
- Peut être associé à un ou plusieurs espaces supplémentaires pour obtenir jusqu’à 5 626 pi² d’espace adjacent.
- Climatisation centrale
- Complètement tapissé
- Plancher surélevé
- Cote de rendement énergétique - D
- Installations WC abandonnées
- Détecteur de fumée
- Grade A offices
- Fitted, Plug & Play
- Suspended ceilings with recessed light fittings
- Two Parking spaces
2e étage, ste C
| Taille | 3 756 pi² |
| Terme | Négociable |
| Taux de location | 39,67 $ CAD/pi²/an |
| Utilisation de l’espace | Bureau |
| Aménagement | construction partielle |
| Disponible | Maintenant |
Cantium House comprises a self-contained office building totally approximately 37,268 sq ft (3,462 sq m) of office accommodation arranged over 5 floors with lower level parking. The available accommodation comprises part 3rd floor (3,692 sq ft) and the whole of the 4th Floor (4,648 sq ft), which provide superb suites of Grade A fitted offices currently laid out to provide a mixture of open plan and cellular work spaces, executive offices and meeting/Boardroom facilities.
- Classe d’utilisation : E
- Partiellement construit comme Bureau standard
- Disposition du plan d’étage ouverte en général
- Clé en main
- Peut être associé à un ou plusieurs espaces supplémentaires pour obtenir jusqu’à 5 626 pi² d’espace adjacent.
- Climatisation centrale
- Complètement tapissé
- Plancher surélevé
- Hauts plafonds
- Lumière naturelle
- Cote de rendement énergétique - D
- Installations WC abandonnées
- Détecteur de fumée
- Grade A offices
- Fitted, Plug & Play
- Suspended ceilings with recessed light fittings
- Two Parking spaces
3e étage, ste 1
| Taille | 3 692 pi² |
| Terme | Négociable |
| Taux de location | 39,67 $ CAD/pi²/an |
| Utilisation de l’espace | Bureau |
| Aménagement | construction partielle |
| Disponible | Maintenant |
Cantium House comprises a self-contained office building totally approximately 37,268 sq ft (3,462 sq m) of office accommodation arranged over 5 floors with lower level parking. The available accommodation comprises part 3rd floor (3,692 sq ft) and the whole of the 4th Floor (4,648 sq ft), which provide superb suites of Grade A fitted offices currently laid out to provide a mixture of open plan and cellular work spaces, executive offices and meeting/Boardroom facilities.
- Classe d’utilisation : E
- Partiellement construit comme Bureau standard
- Disposition du plan d’étage ouverte en général
- Clé en main
- Peut être associé à un ou plusieurs espaces supplémentaires pour obtenir jusqu’à 10 879 pi² d’espace adjacent.
- Climatisation centrale
- Complètement tapissé
- Plancher surélevé
- Cote de rendement énergétique - D
- Installations WC abandonnées
- Détecteur de fumée
- Bureaux de catégorie A
- Ajusté, prêt à l'emploi
- Plafonds suspendus avec luminaires encastrés
- Quatre places de stationnement
4e étage
| Taille | 4 648 pi² |
| Terme | Négociable |
| Taux de location | 39,67 $ CAD/pi²/an |
| Utilisation de l’espace | Bureau |
| Aménagement | construction partielle |
| Disponible | Maintenant |
Cantium House comprises a self-contained office building totally approximately 37,268 sq ft (3,462 sq m) of office accommodation arranged over 5 floors with lower level parking. The available accommodation comprises part 3rd floor (3,692 sq ft) and the whole of the 4th Floor (4,648 sq ft), which provide superb suites of Grade A fitted offices currently laid out to provide a mixture of open plan and cellular work spaces, executive offices and meeting/Boardroom facilities.
- Classe d’utilisation : E
- Partiellement construit comme Bureau standard
- Disposition du plan d’étage ouverte en général
- Clé en main
- Peut être associé à un ou plusieurs espaces supplémentaires pour obtenir jusqu’à 10 879 pi² d’espace adjacent.
- Climatisation centrale
- Complètement tapissé
- Plancher surélevé
- Lumière naturelle
- Cote de rendement énergétique - D
- Installations WC abandonnées
- Plan ouvert
- Détecteur de fumée
- Bureaux de catégorie A
- Ajusté, prêt à l'emploi
- Plafonds suspendus avec luminaires encastrés
- Cinq places de stationnement
Aperçu de la propriété
Cantium House est située juste en face de la gare de l'Approche ferroviaire, au cœur du central de Wallington. L'approche ferroviaire mène à Woodcote Road, qui est la principale voie traversant Wallington, offrant un accès direct aux commodités du centre-ville.
- Ligne d'autobus
- Affichage
- Cote de rendement énergétique - D
- Espace d'entreposage
- Climatisation
- Détecteur de fumée
- Système de plancher surélevé
Faits sur la propriété
Présenté par
Cantium House | Railway Appr
Hmm, il semble y avoir eu une erreur lors de l’envoi de votre message. Veuillez réessayer.
Merci! Votre message a été envoyé.



