Se Connecter/S’inscrire
Votre courriel a été envoyé.
S Olive Street
Denver, CO 80237
C2 · Bureau Propriété À louer
·
181 000 pi²

Certaines informations ont été traduites automatiquement.
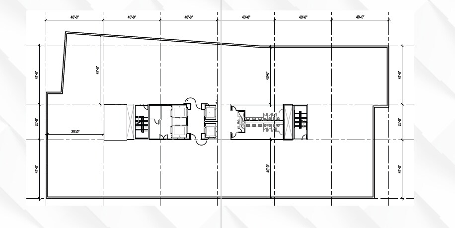
Faits sur la propriété
Type de bâtiment
Bureau
Année de construction
2027
Tarification de LoopNet
5 Étoiles
Hauteur du bâtiment
14 étages
Taille du bâtiment
191 000 pi²
Classe d’immeuble
A
Superficie de plancher typique
23 700 pi²
1 de 2
Vidéos
Visite extérieure 3D Matterport
Visite 3D Matterport
Photos
Vue depuis la rue
Rue
Carte
