Votre courriel a été envoyé.
Sunset Grove SEC Rte 83 & Aptakisic Rd 1 465–3 908 pi² d'espace disponible • Commerce de détail • Long Grove, IL 60047



Certaines informations ont été traduites automatiquement.
Faits saillants
- Property is situated in an area with strong demographics.
- Traffic signal entry on Route 83 and Aptakisic.
- Sunset Foods is the grocery anchor for the retail shopping center.
Disponibilité des espaces (2)
Afficher les taux de location en
- Espace
- Taille
- Terme
- Taux de location
- Type de loyer
| Espace | Taille | Terme | Taux de location | Type de loyer | ||
| 1er étage, ste B | 1 465 pi² | 7-20 ans | 35,82 $ CAD/pi²/an 2,98 $ CAD/pi²/mois 52 469 $ CAD/an 4 372 $ CAD/mois | Loyer hypernet | ||
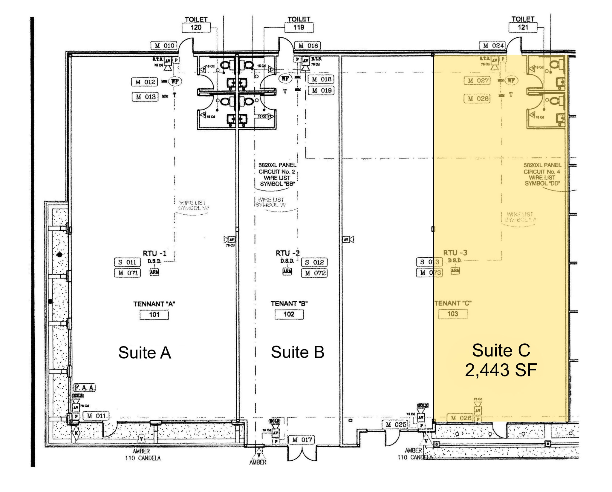
| 1er étage, ste C | 2 443 pi² | 5-30 ans | 35,82 $ CAD/pi²/an 2,98 $ CAD/pi²/mois 87 496 $ CAD/an 7 291 $ CAD/mois | Loyer hypernet |
4196 Rte 83 - 1er étage - ste B
Unit B is ideally located in between Starbucks and Domino’s fully visible facing Route 83. Second gen restaurant space with two washrooms, walk-in cooler/freezer, and three compartment sink.
- Le taux de location ne comprend pas les services publics, les services de bâtiment ou les dépenses immobilières.
- Entièrement construit comme Espace pour un restaurant ou un café
- Situé en ligne avec d’autres commerces de détail
- Espace en excellent état
- Salle de bains privée
- Clé en main
4192 IL-83 Rd - 1er étage - ste C
Unit C is ideal for retail or office use. It has a large open area and currently built out with six private offices, showroom, and two ADA compliant updated washrooms.
- Le taux de location ne comprend pas les services publics, les services de bâtiment ou les dépenses immobilières.
- Entièrement construit comme Espace pour un restaurant ou un café
- Situé en ligne avec d’autres commerces de détail
Types de loyers
Le type et le montant du loyer que le locataire (preneur) est tenu de payer au propriétaire (bailleur) sur la durée du bail sont négociés avant la signature du bail par les deux parties. Le type de loyer varie selon les services fournis. Par exemple, le prix d’un loyer hypernet est habituellement inférieur à celui d’un bail à service complet puisque le locataire est tenu d’assumer des dépenses additionnelles par rapport au loyer de base. Contactez le courtier inscripteur pour tout connaître sur les frais connexes et additionnels associés à chaque type de loyer.
1. Service complet: Un taux de location qui comprend des services standards liés à l’immeuble fournis par le propriétaire dans le cadre d’une location annuelle de base.
2. Loyer supernet: Le locataire paie seulement deux des frais de l’immeuble. Le propriétaire et le locataire déterminent ces frais spécifiques avant la signature du bail.
3. Loyer hypernet: Un bail en vertu duquel le locataire est responsable de tous les frais liés à sa part proportionnelle d’occupation de l’immeuble.
4. Brut modifié: Le loyer brut modifié désigne un type général de taux de location dans lequel le locataire est habituellement responsable de sa part proportionnelle d’un ou de plusieurs frais. C’est le propriétaire qui paie les frais restants. Considérez les structures tarifaires courantes suivantes applicables aux loyers bruts modifiés: 4. Plus les services: Un type de bail brut modifié suivant lequel le locataire est responsable de sa part proportionnelle des coûts des services publics, en plus du loyer. 4. Plus le nettoyage: Un type de bail brut modifié suivant lequel le locataire est responsable de sa part proportionnelle des coûts de nettoyage, en plus du loyer. 4. Plus l'électricité: Un type de bail brut modifié suivant lequel le locataire est responsable de sa part proportionnelle des coûts d’électricité, en plus du loyer. 4. Plus l’électricité et le nettoyage: Un type de bail brut modifié dans lequel le locataire est responsable de sa part proportionnelle des coûts d’électricité et de nettoyage, en plus du loyer. 4. Plus les services publics et le nettoyage: Un type de bail brut modifié dans lequel le locataire est responsable de sa part proportionnelle des coûts des services publics et de nettoyage, en plus du loyer. 4. Bail industriel brut: Un type de bail brut modifié dans lequel le locataire paie un ou plusieurs des frais, en plus du loyer. Le propriétaire et le locataire déterminent ces frais spécifiques avant la signature du bail.
5. L’électricité est à la charge du locataire: Le propriétaire paie pour tous les services et le locataire est responsable de sa propre utilisation de l’éclairage et des prises électriques dans l’espace qu’il occupe.
6. Négociable ou sur demande: Cette option est utilisée lorsque le contact de location ne précise pas le type de loyer ou de service.
7. À déterminer: À déterminer ; utilisé pour les immeubles dont le type de services ou de loyer n’est pas connu, souvent quand l’immeuble n’est pas encore construit.
Plan de site
Faits sur la propriété
| Superficie totale disponible | 3 908 pi² | Superficie commerciale brute | 115 485 pi² |
| Type de centre | Centre de voisinage | Superficie totale du terrain | 39,14 AC |
| Stationnement | 363 places | Année de construction | 2011 |
| Propriétés du centre | 7 |
| Superficie totale disponible | 3 908 pi² |
| Type de centre | Centre de voisinage |
| Stationnement | 363 places |
| Propriétés du centre | 7 |
| Superficie commerciale brute | 115 485 pi² |
| Superficie totale du terrain | 39,14 AC |
| Année de construction | 2011 |
À propos de la propriété
Anciennement occupé par un utilisateur de fitness. Façade de 56 pieds Centre commercial avec une épicerie comme locataire principal Intersection à fort volume de trafic (50 800 véhicules par jour) Quartier à revenu élevé Co-locataires incluent Sunset Foods, Starbucks, Verizon, Sherwin Williams, CVS, Domino’s et plus encore.
Principaux détaillants à proximité
Présenté par
Sunset Grove | SEC Rte 83 & Aptakisic Rd
Hmm, il semble y avoir eu une erreur lors de l’envoi de votre message. Veuillez réessayer.
Merci! Votre message a été envoyé.






