Se Connecter/S’inscrire
Votre courriel a été envoyé.
Certaines informations ont été traduites automatiquement.
LOT Disponible
Afficher les taux de location en
| Taux de location |
|
Taille du lot | 3,44 AC |
| Durée du bail | Négociable |
| Taux de location | |
| Durée du bail | Négociable |
| Taille du lot | 3,44 AC |
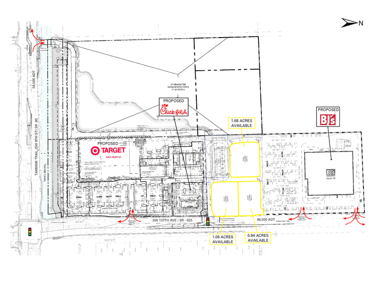
The project will be anchored by BJ’s Wholesale Club and shadow anchored by Target located at the NW quadrant of SW 8th St (Tamiami Trail) and SW 137th Ave This is strategically positioned to capture the under-serviced market of West Miami and will benefit from its regional access to the Dolphin Expwy (836) & Florida’s Turnpike 15+ Acres; 150,000 SF proposed retail Pad sites available Projected Delivery: 4th Qtr 2026
Faits sur la propriété
1 1
Assez praticable à pied
40/100
Exceptionnellement facile d’accès en voiture
100/100
Transports en commun très limités
10/100
Plutôt praticable en vélo
50/100
1 de 4
Vidéos
Visite extérieure 3D Matterport
Visite 3D Matterport
Photos
Vue depuis la rue
Rue
Carte
1 de 1
Présenté par
SW 137th Ave
Vous êtes déjà membre? Connectez-vous
Hmm, il semble y avoir eu une erreur lors de l’envoi de votre message. Veuillez réessayer.
Merci! Votre message a été envoyé.



