Se Connecter/S’inscrire
Votre courriel a été envoyé.
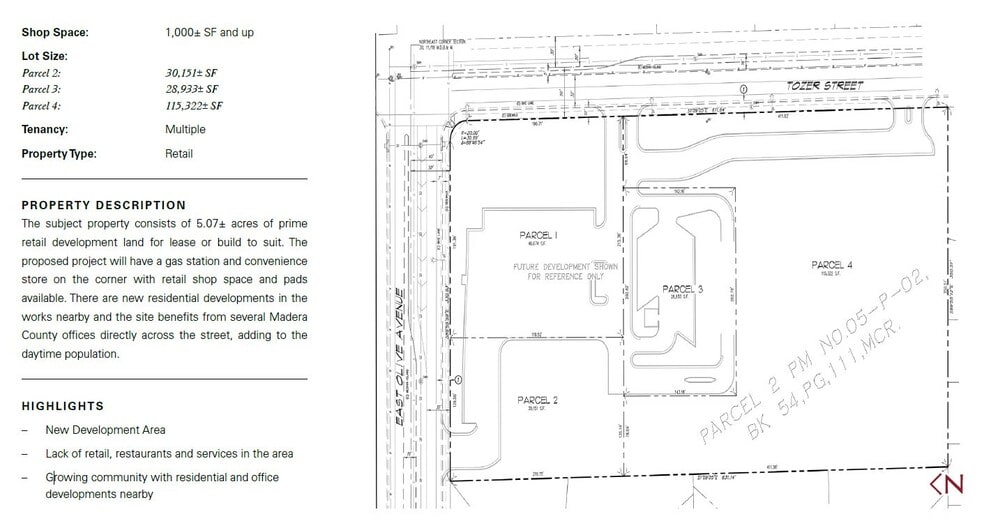
SWC Olive Avenue
Madera, CA 93637
Terrain À louer


Certaines informations ont été traduites automatiquement.
Faits saillants
- New Development Area
- Growing community with residential and office developments nearby
- Lack of retail, restaurants and services in the area
Faits sur la propriété
| Superficie totale disponible | 5,07 AC | Utilisation proposée | Commercial |
| Type de propriété | Terrain | Rues transversales | Tozer Street |
| Sous-type de propriété | Terrain commercial |
| Superficie totale disponible | 5,07 AC |
| Type de propriété | Terrain |
| Sous-type de propriété | Terrain commercial |
| Utilisation proposée | Commercial |
| Rues transversales | Tozer Street |
1 de 5
Vidéos
Visite extérieure 3D Matterport
Visite 3D Matterport
Photos
Vue depuis la rue
Rue
Carte
