Se Connecter/S’inscrire
Votre courriel a été envoyé.
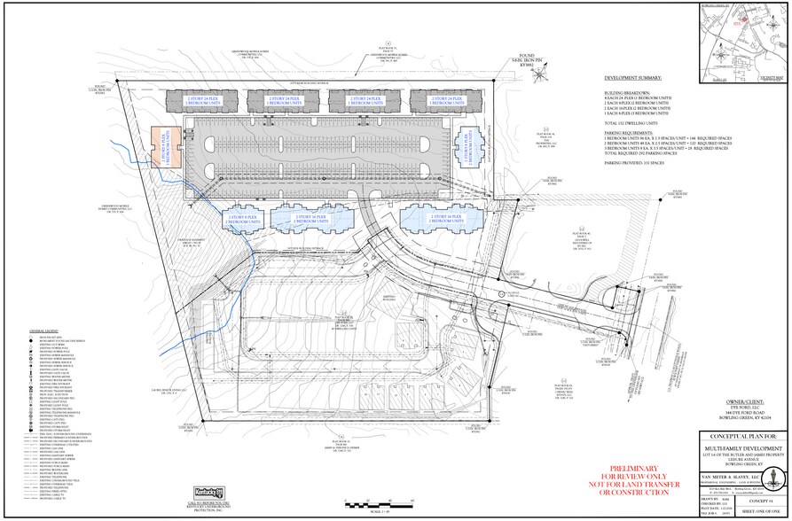
Scottsville Rd - Fully Entitled 152 Unit Multifamily Dev Lot • Terrain commercial • 8 Acres • 2 446 572 $ CAD • Bowling Green, KY 42101



Certaines informations ont été traduites automatiquement.
Résumé de l'annonce
This fully entitled 8 acre multifamily development site along Scottsville Road offers a shovel ready opportunity approved for 152 two story units with a completed conceptual plan that includes efficient circulation, a diverse unit mix, and parking counts above required minimums. The property sits in a high visibility corridor with 25,000 AADT and strong surrounding residential and commercial growth, supported by a five mile population base exceeding seventy thousand residents and solid median household incomes. With zoning, density, and planning already in place, the site provides a rare, large scale development opportunity in a rapidly expanding Bowling Green submarket.
Faits sur la propriété
1 Lot disponible
Lot
| Prix | 2 446 572 $ CAD | Taille du lot | 8,00 AC |
| Prix par AC | 305 821,49 $ CAD |
| Prix | 2 446 572 $ CAD |
| Prix par AC | 305 821,49 $ CAD |
| Taille du lot | 8,00 AC |
Fully entitled. 8 acre parcel zoned high density multifamily (RM-4).
1 1
Assez praticable à pied
40/100
Exceptionnellement facile d’accès en voiture
100/100
Assez praticable en vélo
20/100
Impôts fonciers
| Numéro de lot | 053B-23 | Évaluation des bâtiments | 0 $ CAD |
| Évaluation du terrain | 0 $ CAD | Évaluation totale | 6 749 750 $ CAD |
Impôts fonciers
Numéro de lot
053B-23
Évaluation du terrain
0 $ CAD
Évaluation des bâtiments
0 $ CAD
Évaluation totale
6 749 750 $ CAD
1 de 4
Vidéos
Visite extérieure 3D Matterport
Visite 3D Matterport
Photos
Vue depuis la rue
Rue
Carte
1 de 1
Présenté par
Scottsville Rd - Fully Entitled 152 Unit Multifamily Dev
Vous êtes déjà membre? Connectez-vous
Hmm, il semble y avoir eu une erreur lors de l’envoi de votre message. Veuillez réessayer.
Merci! Votre message a été envoyé.
