Votre courriel a été envoyé.
Zona centro 237–560 pi² d'espace disponible • Commerce de détail • Segovia, Segovia 40001


Certaines informations ont été traduites automatiquement.
FAITS SAILLANTS
- Zona muy transitada.
- A pocos minutos de todos los servicios.
TOUS LES ESPACES DISPONIBLES(2)
Afficher les taux de location en
- ESPACE
- TAILLE
- TERME
-
TAUX DE LOCATION
- UTILISATION DE L’ESPACE
- ÉTAT
- DISPONIBLE
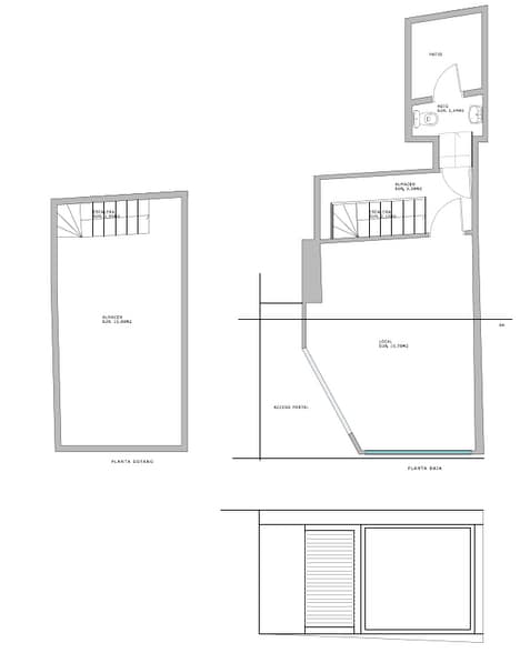
Se traspasa excelente local comercial situado en la planta baja de un edificio ubicado en una zona muy céntrica y transitada. Tiene una superficie total de 52 m2 distribuidos en dos alturas; 30 m2 en planta calle y 22 m2 en planta sótano. Cuenta con una amplia fachada de 5 metros lineales. El importe de traspaso es de 40.000 €.
- Taxes et charges non incluses dans le loyer
- Situé en ligne avec d’autres commerces de détail
- Sous-sol
- Magnífica ubicación.
- Entièrement construit comme Espace de commerce de détail standard
- Salle de bains privée
- Buen estado.
Se traspasa excelente local comercial situado en la planta baja de un edificio ubicado en una zona muy céntrica y transitada. Tiene una superficie total de 52 m2 distribuidos en dos alturas; 30 m2 en planta calle y 22 m2 en planta sótano. Cuenta con una amplia fachada de 5 metros lineales. El importe de traspaso es de 40.000 €.
- Taxes et charges non incluses dans le loyer
- Situé en ligne avec d’autres commerces de détail
- Sous-sol
- Magnífica ubicación.
- Entièrement construit comme Espace de commerce de détail standard
- Salle de bains privée
- Buen estado.
| Espace | Taille | Terme | Taux de location | Utilisation de l’espace | État | Disponible |
| Sous-sol | 237 pi² | Négociable | 86,50 $ CAD/pi²/an EXCL 7,21 $ CAD/pi²/mois EXCL 20 484 $ CAD/an EXCL 1 707 $ CAD/mois EXCL | Commerce de détail | construction complète | 30 jours |
| RDC | 323 pi² | Négociable | 86,46 $ CAD/pi²/an EXCL 7,20 $ CAD/pi²/mois EXCL 27 919 $ CAD/an EXCL 2 327 $ CAD/mois EXCL | Commerce de détail | construction complète | 30 jours |
Sous-sol
| Taille |
| 237 pi² |
| Terme |
| Négociable |
|
Taux de location
|
| 86,50 $ CAD/pi²/an EXCL 7,21 $ CAD/pi²/mois EXCL 20 484 $ CAD/an EXCL 1 707 $ CAD/mois EXCL |
| Utilisation de l’espace |
| Commerce de détail |
| État |
| construction complète |
| Disponible |
| 30 jours |
RDC
| Taille |
| 323 pi² |
| Terme |
| Négociable |
|
Taux de location
|
| 86,46 $ CAD/pi²/an EXCL 7,20 $ CAD/pi²/mois EXCL 27 919 $ CAD/an EXCL 2 327 $ CAD/mois EXCL |
| Utilisation de l’espace |
| Commerce de détail |
| État |
| construction complète |
| Disponible |
| 30 jours |
Sous-sol
| Taille | 237 pi² |
| Terme | Négociable |
|
Taux de location
|
86,50 $ CAD/pi²/an EXCL |
| Utilisation de l’espace | Commerce de détail |
| État | construction complète |
| Disponible | 30 jours |
Se traspasa excelente local comercial situado en la planta baja de un edificio ubicado en una zona muy céntrica y transitada. Tiene una superficie total de 52 m2 distribuidos en dos alturas; 30 m2 en planta calle y 22 m2 en planta sótano. Cuenta con una amplia fachada de 5 metros lineales. El importe de traspaso es de 40.000 €.
- Taxes et charges non incluses dans le loyer
- Entièrement construit comme Espace de commerce de détail standard
- Situé en ligne avec d’autres commerces de détail
- Salle de bains privée
- Sous-sol
- Buen estado.
- Magnífica ubicación.
RDC
| Taille | 323 pi² |
| Terme | Négociable |
|
Taux de location
|
86,46 $ CAD/pi²/an EXCL |
| Utilisation de l’espace | Commerce de détail |
| État | construction complète |
| Disponible | 30 jours |
Se traspasa excelente local comercial situado en la planta baja de un edificio ubicado en una zona muy céntrica y transitada. Tiene una superficie total de 52 m2 distribuidos en dos alturas; 30 m2 en planta calle y 22 m2 en planta sótano. Cuenta con una amplia fachada de 5 metros lineales. El importe de traspaso es de 40.000 €.
- Taxes et charges non incluses dans le loyer
- Entièrement construit comme Espace de commerce de détail standard
- Situé en ligne avec d’autres commerces de détail
- Salle de bains privée
- Sous-sol
- Buen estado.
- Magnífica ubicación.
FAITS SUR LA PROPRIÉTÉ
| Superficie totale disponible | 560 pi² | Style d’appartement | De hauteur moyenne |
| Type de propriété | Immeuble residentiel | Taille du bâtiment | < 15 000 pi² |
| Sous-type de propriété | Appartement | Année de construction/rénovation | 1880 - 1889/1970 - 1979 |
| Superficie totale disponible | 560 pi² |
| Type de propriété | Immeuble residentiel |
| Sous-type de propriété | Appartement |
| Style d’appartement | De hauteur moyenne |
| Taille du bâtiment | < 15 000 pi² |
| Année de construction/rénovation | 1880 - 1889/1970 - 1979 |
À PROPOS DE LA PROPRIÉTÉ
Edificio residencial construido en el año 1880. Tiene 6 plantas sobre rasante, con viviendas en altura y locales comerciales en planta calle.
PRINCIPAUX DÉTAILLANTS À PROXIMITÉ
Présenté par
Zona centro
Hmm, il semble y avoir eu une erreur lors de l’envoi de votre message. Veuillez réessayer.
Merci! Votre message a été envoyé.
