Se Connecter/S’inscrire
Votre courriel a été envoyé.
Shoals Spur Commerce Park 5 biens • Industriel • À vendre 3 458 475 $ CAD • Muscle Shoals, AL


Certaines informations ont été traduites automatiquement.
FAITS SAILLANTS DE L'INVESTISSEMENT
- Rare opportunity to acquire a scalable, multi-building industrial complex
- Strong market fundamentals and excellent regional connectivity
- Buildings range in size from ±5,172 SF to ±17,091 SF
- Positioned for value-add investment or immediate occupancy
RÉSUMÉ DE L'ANNONCE
***Units can be purchased individually - call for more information.*** Located in the dynamic core of Muscle Shoals, 120 Commerce Street presents a unique opportunity to acquire a versatile industrial complex spanning approximately 57,817 square feet across five buildings on ±5 acres. This well-located property is ideally suited for a wide range of uses including distribution, manufacturing, light production, warehousing, and storage.
Property Overview:
• Building 120: ±15,162 SF with 602 SF of office space, two loading docks, and a large roll-up door. Connected via covered tunnel to Building 122 for enhanced operational flexibility.
• Building 122: ±17,091 SF featuring two loading docks and a large roll-up door.
• Building 123: ±15,117 SF, including 884 SF of modern office space, two loading docks, and a large roll-up door.
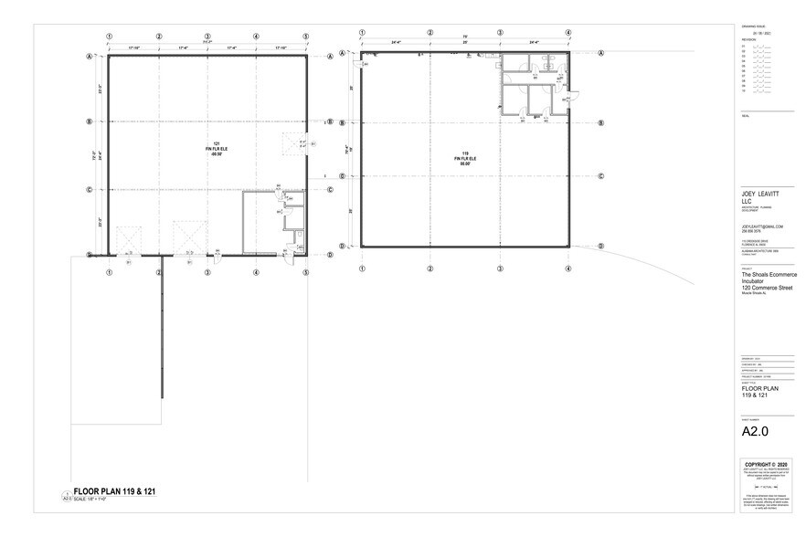
• Building 121: ±5,172 SF total with 547 SF of well-designed office space and ±4,625 SF of warehouse/light manufacturing space, plus a loading dock and roll-up door.
• Building 119: ±5,275 SF with 563 SF of office space, co-worker space, and one large roll-up door.
Key Features:
• Five industrial buildings totaling ±57,817 SF on ±5 acres
• Functional layout with inter-building access (covered tunnel between Buildings 120 and 122)
• Multiple loading docks and large roll-up doors across all buildings
• Flexible configurations to accommodate tenants or owner-operators
• Ideal for distribution, warehousing, and light industrial operations
Strategic North Alabama Location & Market Access:
• Centrally positioned in the Muscle Shoals industrial district
• Approximately 1 hour from Huntsville, a growing innovation and logistics hub
• Immediate access to Highway 72 and other key transportation corridors
• Within a 500-mile radius of major metro areas including:
o Nashville, TN (˜120 miles)
o Birmingham, AL (˜115 miles)
o Memphis, TN (˜150 miles)
o Atlanta, GA (˜230 miles)
o Chattanooga, TN (˜135 miles)
o Louisville, KY (˜250 miles)
o St. Louis, MO (˜340 miles)
o New Orleans, LA (˜400 miles)
o Dallas, TX (˜490 miles)
This strategic position places your operations within a day's reach of over 50 million consumers across the Southeast and South-Central U.S. This is a high-utility industrial property with substantial upside in one of North Alabama’s fastest-growing areas. Whether you’re an investor or an operator, 120 Commerce Street is a standout opportunity.
Property Overview:
• Building 120: ±15,162 SF with 602 SF of office space, two loading docks, and a large roll-up door. Connected via covered tunnel to Building 122 for enhanced operational flexibility.
• Building 122: ±17,091 SF featuring two loading docks and a large roll-up door.
• Building 123: ±15,117 SF, including 884 SF of modern office space, two loading docks, and a large roll-up door.
• Building 121: ±5,172 SF total with 547 SF of well-designed office space and ±4,625 SF of warehouse/light manufacturing space, plus a loading dock and roll-up door.
• Building 119: ±5,275 SF with 563 SF of office space, co-worker space, and one large roll-up door.
Key Features:
• Five industrial buildings totaling ±57,817 SF on ±5 acres
• Functional layout with inter-building access (covered tunnel between Buildings 120 and 122)
• Multiple loading docks and large roll-up doors across all buildings
• Flexible configurations to accommodate tenants or owner-operators
• Ideal for distribution, warehousing, and light industrial operations
Strategic North Alabama Location & Market Access:
• Centrally positioned in the Muscle Shoals industrial district
• Approximately 1 hour from Huntsville, a growing innovation and logistics hub
• Immediate access to Highway 72 and other key transportation corridors
• Within a 500-mile radius of major metro areas including:
o Nashville, TN (˜120 miles)
o Birmingham, AL (˜115 miles)
o Memphis, TN (˜150 miles)
o Atlanta, GA (˜230 miles)
o Chattanooga, TN (˜135 miles)
o Louisville, KY (˜250 miles)
o St. Louis, MO (˜340 miles)
o New Orleans, LA (˜400 miles)
o Dallas, TX (˜490 miles)
This strategic position places your operations within a day's reach of over 50 million consumers across the Southeast and South-Central U.S. This is a high-utility industrial property with substantial upside in one of North Alabama’s fastest-growing areas. Whether you’re an investor or an operator, 120 Commerce Street is a standout opportunity.
FAITS SUR LA PROPRIÉTÉ
| Prix | 3 458 475 $ CAD | Nombre de propriétés | 5 |
| Prix/pi² | 59,82 $ CAD / pi² | Individuellement en vente | 1 |
| Condition de vente | Ventes de portefeuille | Taille totale du bâtiment | 57 817 pi² |
| Type de vente | Propriétaire utilisateur | Superficie totale du terrain | 20,14 AC |
| Statut | Actif |
| Prix | 3 458 475 $ CAD |
| Prix/pi² | 59,82 $ CAD / pi² |
| Condition de vente | Ventes de portefeuille |
| Type de vente | Propriétaire utilisateur |
| Statut | Actif |
| Nombre de propriétés | 5 |
| Individuellement en vente | 1 |
| Taille totale du bâtiment | 57 817 pi² |
| Superficie totale du terrain | 20,14 AC |
PROPRIÉTÉS
| NOM DE LA PROPRIÉTÉ/ADRESSE | TYPE DE PROPRIÉTÉ | TAILLE | ANNÉE DE CONSTRUCTION | PRIX INDIVIDUEL |
|---|---|---|---|---|
| 122 Commerce St, Muscle Shoals, AL 35661 | Industriel | 17 091 pi² | - | - |
| 120 Commerce St, Muscle Shoals, AL 35661 | Industriel | 15 162 pi² | 2003 | 3 458 475 $ CAD |
| 123 Commerce St, Muscle Shoals, AL 35661 | Industriel | 15 117 pi² | 2004 | - |
| 119 Commerce, Muscle Shoals, AL 35661 | Industriel | 5 275 pi² | 2004 | - |
| 121 Commerce St, Muscle Shoals, AL 35661 | Industriel | 5 172 pi² | 2004 | - |
1 1
1 de 3
VIDÉOS
VISITE EXTÉRIEURE 3D MATTERPORT
VISITE 3D MATTERPORT
PHOTOS
VUE DEPUIS LA RUE
RUE
CARTE
1 de 1
Présenté par
Shoals Spur Commerce Park
Vous êtes déjà membre? Connectez-vous
Hmm, il semble y avoir eu une erreur lors de l’envoi de votre message. Veuillez réessayer.
Merci! Votre message a été envoyé.
