Votre courriel a été envoyé.
Shuttleworth Ct - Elm Farm Industrial Estate Unité de condo • Flex • 1 144 pi² • À vendre 278 120 $ CAD • Bedford MK41 0EN



Certaines informations ont été traduites automatiquement.
Faits saillants de l'investissement
- Prominent Business Location
- High Eaves
- Solid Transport Links
Résumé de l'annonce
This property comprises industrial accommodation of masonry construction.
1 Unité disponible
Unité 9
| Taille de l’unité | 1 144 pi² | Utilisation du condo | Flex |
| Prix | 278 120 $ CAD | Type de vente | Investissement ou propriétaire utilisateur |
| Prix par pi² | 243,11 $ CAD | Ancienneté | Pleine propriété |
| Taille de l’unité | 1 144 pi² |
| Prix | 278 120 $ CAD |
| Prix par pi² | 243,11 $ CAD |
| Utilisation du condo | Flex |
| Type de vente | Investissement ou propriétaire utilisateur |
| Ancienneté | Pleine propriété |
Description
This is a mid-terrace industrial unit of steel portal frame construction available to purchase with vacant possession. There is a personnel door and a roller
shutter loading access to the front elevation. Unit 9, Shuttleworth Court
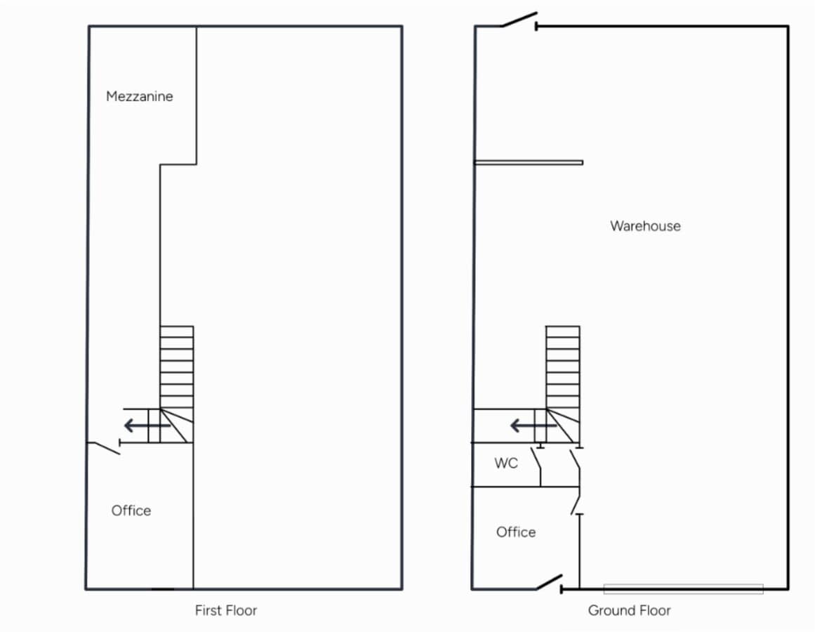
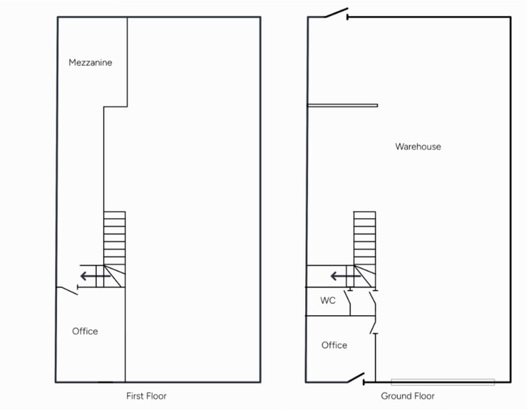
Internally the unit has a ground and first floor office and an open plan warehouse space with a concrete floor. There is a kitchen area and WC facilities also. The unit has an internal minimum eaves height of 4.5m rising to a maximum eaves height of 5.8m. Externally the unit has parking immediately to the front of the property and a single additional parking space within a bank of spaces to the far left of Shuttleworth Court.
Notes sur la vente
This property is available to purchase freehold at a guide price of £150,000 exclusive of VAT.
Unit 9 Floor Plan
Unit 9
Unit 9
Unit 9
Unit 9
Faits sur la propriété
| Taille totale du bâtiment | 5 574 pi² | Planchers | 1 |
| Type de propriété | Industriel (Condo) | Superficie de plancher typique | 5 574 pi² |
| Sous-type de propriété | Service | Année de construction | 1980 |
| Classe d’immeuble | B | Taille du lot | 0,19 AC |
| Taille totale du bâtiment | 5 574 pi² |
| Type de propriété | Industriel (Condo) |
| Sous-type de propriété | Service |
| Classe d’immeuble | B |
| Planchers | 1 |
| Superficie de plancher typique | 5 574 pi² |
| Année de construction | 1980 |
| Taille du lot | 0,19 AC |
Commodités
- Système de sécurité
- Cour
- Stores automatiques
Services publics
- Eau
- Égout
- Chauffage
Présenté par
Shuttleworth Ct - Elm Farm Industrial Estate
Hmm, il semble y avoir eu une erreur lors de l’envoi de votre message. Veuillez réessayer.
Merci! Votre message a été envoyé.

