Se Connecter/S’inscrire
Votre courriel a été envoyé.
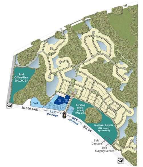
Asturia Mixed Use (2 Parcels) State Road 54 Terrain à louer de 3,22 acres • Terrain commercial • Odessa, FL 33556



Certaines informations ont été traduites automatiquement.
FAITS SAILLANTS
- Façade SR 54 très visible avec plus de 55 000 voitures par jour
- Parcelles de 1,24 ± et 1,98 ± acre disponibles, convenables pour la vente au détail, les soins médicaux ou les bureaux
- Emplacement au coin des épinglettes de premier ordre à l'entrée de la communauté des Asturies avec 1 000 résidences ±
- Zonage et droits de vente au détail en place
LOT Disponible
Afficher les taux de location en
| Taux de location |
|
Taille du lot | 3,22 AC |
| Durée du bail | Négociable |
| Taux de location | |
| Durée du bail | Négociable |
| Taille du lot | 3,22 AC |
1.24± and 1.98± acre parcels available, suitable for retail, medical or office use
APERÇU DE LA PROPRIÉTÉ
Parcelles de 1,24 ± et 1,98 ± acre disponibles, convenables pour la vente au détail, les soins médicaux ou les bureaux
FAITS SUR LA PROPRIÉTÉ
1 de 5
VIDÉOS
VISITE EXTÉRIEURE 3D MATTERPORT
VISITE 3D MATTERPORT
PHOTOS
VUE DEPUIS LA RUE
RUE
CARTE
Présenté par
Asturia Mixed Use (2 Parcels) | State Road 54
Vous êtes déjà membre? Connectez-vous
Hmm, il semble y avoir eu une erreur lors de l’envoi de votre message. Veuillez réessayer.
Merci! Votre message a été envoyé.

