Votre courriel a été envoyé.
Harpur Crewe House Swarkestone Rd 1 544 pi² d'espace disponible • Commerce de détail • Derby DE73 6UD



Certaines informations ont été traduites automatiquement.
Faits saillants
- Part of former Co-Op food store.
- Lat remaining unit.
- Neighbouring Birds and Domino's Pizza.
- Works underway to sub divide into 3 new units.
- Well located in neighbourhood centre.
- Suitable for a variety of high street uses.
Disponibilité de l’espace (1)
Afficher les taux de location en
- Espace
- Taille
- Terme
- Taux de location
- Type
| Espace | Taille | Terme | Taux de location | Type de loyer | ||
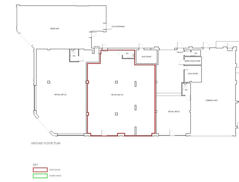
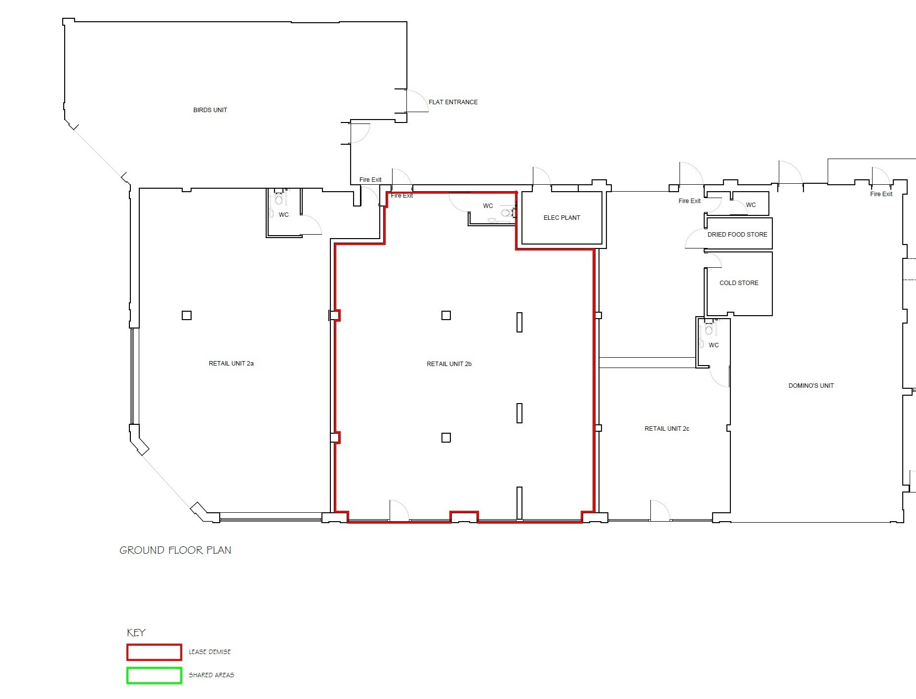
| RDC, ste 2B | 1 544 pi² | Négociable | 38,61 $ CAD/pi²/an 3,22 $ CAD/pi²/mois 59 616 $ CAD/an 4 968 $ CAD/mois | À déterminer |
RDC, ste 2B
The units are available individually or combined. See plan attached. Rents are based on £13 per sq ft. The units are available by way of a new lease for a term of years to be agreed.
- Classe d’utilisation : E
- Situé en ligne avec d’autres commerces de détail
- Suitable for a range of uses
- Excellent position within centre
- High profile location
Types de services
Le type de service et le montant du loyer que le locataire (preneur) est tenu de payer au propriétaire (bailleur) sur la durée du bail sont négociés avant la signature du bail par les deux parties. Le type de service varie selon les services fournis. Contactez le courtier inscripteur pour tout connaître sur les frais connexes et additionnels associés à chaque type de service.
1. Réparations et assurances complètes: Toutes les obligations de réparer et d’assurer la propriété (ou de sa part de la propriété) à l’interne comme à l’externe.
2. Réparations internes seulement: Le locataire est responsable des réparations internes seulement. Le propriétaire est responsable des réparations structurelles et externes.
3. Réparations et assurances internes: Le locataire est responsable des réparations internes et des assurances pour les parties internes de la propriété seulement. Le propriétaire est responsable des réparations structurelles et externes.
4. Négociable ou à déterminer: Cette option est utilisée lorsque le contact de location ne fournit pas le type de service.
Sélectionner des locataires à Harpur Crewe House
- Locataire
- Description
- Emplacements GB
- Portée
- Birds Bakery
- Boulangerie
- 59
- Régional
- Co-op
- Supermarché
- 3 825
- National
| Locataire | Description | Emplacements GB | Portée |
| Birds Bakery | Boulangerie | 59 | Régional |
| Co-op | Supermarché | 3 825 | National |
Faits sur la propriété
| Superficie totale disponible | 1 544 pi² | Superficie commerciale brute | 4 445 pi² |
| Type de propriété | Commerce de détail | Année de construction | 1980 |
| Superficie totale disponible | 1 544 pi² |
| Type de propriété | Commerce de détail |
| Superficie commerciale brute | 4 445 pi² |
| Année de construction | 1980 |
À propos de la propriété
La propriété est idéalement située à un emplacement stratégique, à l'angle de Swarkestone Road (A514) et High Street, dans le quartier de Chellaston, au sud de Derby, et à proximité immédiate de la Derby Southern Bypass (A50). La propriété occupe une grande partie du rez-de-chaussée du bâtiment connu sous le nom de Harpur Crewe House. Parmi les autres commerces présents, on trouve Birds the Bakers et George’s Fish & Chips. En face, à proximité immédiate de la propriété, se trouve une rangée de locaux commerciaux, tous occupés par des entreprises locales. À une courte distance, on trouve un magasin Tesco Express, et dans la direction opposée, un supermarché Lidl.
Présenté par
Harpur Crewe House | Swarkestone Rd
Hmm, il semble y avoir eu une erreur lors de l’envoi de votre message. Veuillez réessayer.
Merci! Votre message a été envoyé.



