Votre courriel a été envoyé.
I-94 West Industrial Suites TBD 71st St 1 680–11 880 pi² d'espace disponible • Industriel • Otsego, MN 55301



Certaines informations ont été traduites automatiquement.
Faits saillants
- New Construction
- Close freeway access
- Direct sightlines to Interstate 94
Caractéristiques
Tous les espaces disponibles(1)
Afficher les taux de location en
- Espace
- Taille
- Terme
- Taux de location
- Utilisation de l’espace
- État
- Disponible
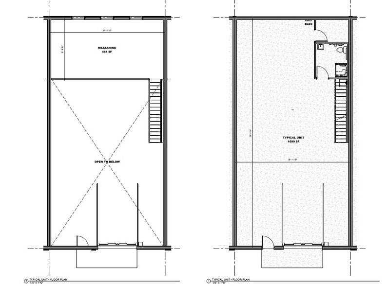
New Construction Commercial Flex-Use Suites for Rent (1,680-11,800 sq/ft) $2,000 per month. Available November/December 2025. Reservations being taken for newly constructed flex-use contractor Suites in the I-94 West Industrial Park. Available square footages range from 1,680-11,800. Additional mezzanine space can be added. Unit features include natural gas heat, 200-amp service, roughed-in 3/4-bathroom, wash tub, hose bib, 5” concrete w/ floor drain, 12’x14’ overhead door, 18’ ceilings. Attractive building with great curb appeal. Complex has direct freeway visibility and is less than 2 miles from the Albertville Interstate 94 on/off ramp.
- Le taux inscrit peut ne pas comprendre certains services publics, les services de bâtiment et les dépenses immobilières.
| Espace | Taille | Terme | Taux de location | Utilisation de l’espace | État | Disponible |
| 1er étage | 1 680 à 11 880 pi² | Négociable | 20,54 $ CAD/pi²/an 1,71 $ CAD/pi²/mois 244 022 $ CAD/an 20 335 $ CAD/mois | Industriel | - | 2026-03-01 |
1er étage
| Taille |
| 1 680 à 11 880 pi² |
| Terme |
| Négociable |
| Taux de location |
| 20,54 $ CAD/pi²/an 1,71 $ CAD/pi²/mois 244 022 $ CAD/an 20 335 $ CAD/mois |
| Utilisation de l’espace |
| Industriel |
| État |
| - |
| Disponible |
| 2026-03-01 |
1er étage
| Taille | 1 680 à 11 880 pi² |
| Terme | Négociable |
| Taux de location | 20,54 $ CAD/pi²/an |
| Utilisation de l’espace | Industriel |
| État | - |
| Disponible | 2026-03-01 |
New Construction Commercial Flex-Use Suites for Rent (1,680-11,800 sq/ft) $2,000 per month. Available November/December 2025. Reservations being taken for newly constructed flex-use contractor Suites in the I-94 West Industrial Park. Available square footages range from 1,680-11,800. Additional mezzanine space can be added. Unit features include natural gas heat, 200-amp service, roughed-in 3/4-bathroom, wash tub, hose bib, 5” concrete w/ floor drain, 12’x14’ overhead door, 18’ ceilings. Attractive building with great curb appeal. Complex has direct freeway visibility and is less than 2 miles from the Albertville Interstate 94 on/off ramp.
- Le taux inscrit peut ne pas comprendre certains services publics, les services de bâtiment et les dépenses immobilières.
Aperçu de la propriété
Suites Commerciales Polyvalentes Neuve à Louer (1 800-11 800 pi²) 2 000 $ par mois. Disponibles en novembre/décembre 2025. Réservations en cours pour des suites polyvalentes neuves destinées aux entrepreneurs, situées dans le parc industriel I-94 West. Les superficies disponibles varient de 1 800 à 11 800 pi². Un espace mezzanine supplémentaire peut être ajouté. Les caractéristiques des unités incluent : chauffage au gaz naturel, service électrique de 200 ampères, salle de bain 3/4 pré-aménagée, cuve de lavage, robinet extérieur, béton de 5 pouces avec drain de sol, porte basculante de 12’x14’, plafonds de 18’. Bâtiment attrayant avec une excellente visibilité depuis la rue. Le complexe offre une visibilité directe sur l’autoroute et se trouve à moins de 2 miles de la bretelle d’accès/sortie de l’Interstate 94 à Albertville.
Faits sur l’installation Industriel
Présenté par
Acuity Group
I-94 West Industrial Suites | TBD 71st St
Hmm, il semble y avoir eu une erreur lors de l’envoi de votre message. Veuillez réessayer.
Merci! Votre message a été envoyé.

