Votre courriel a été envoyé.
Titusville - Approved 136 Lot Subdivision - Daley Farm Lot • Résidentiel • 149 Acres • 9 738 680 $ CAD • Poughkeepsie, NY 12603



Certaines informations ont été traduites automatiquement.
FAITS SAILLANTS DE L'INVESTISSEMENT
- Répond à la demande grandement mal desservie de nouvelles maisons unifamiliales et de maisons en rangée.
RÉSUMÉ DE L'ANNONCE
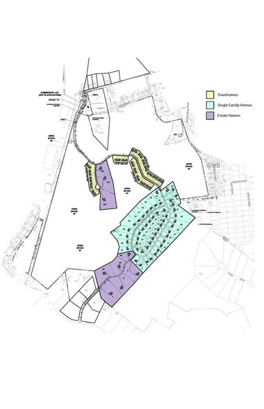
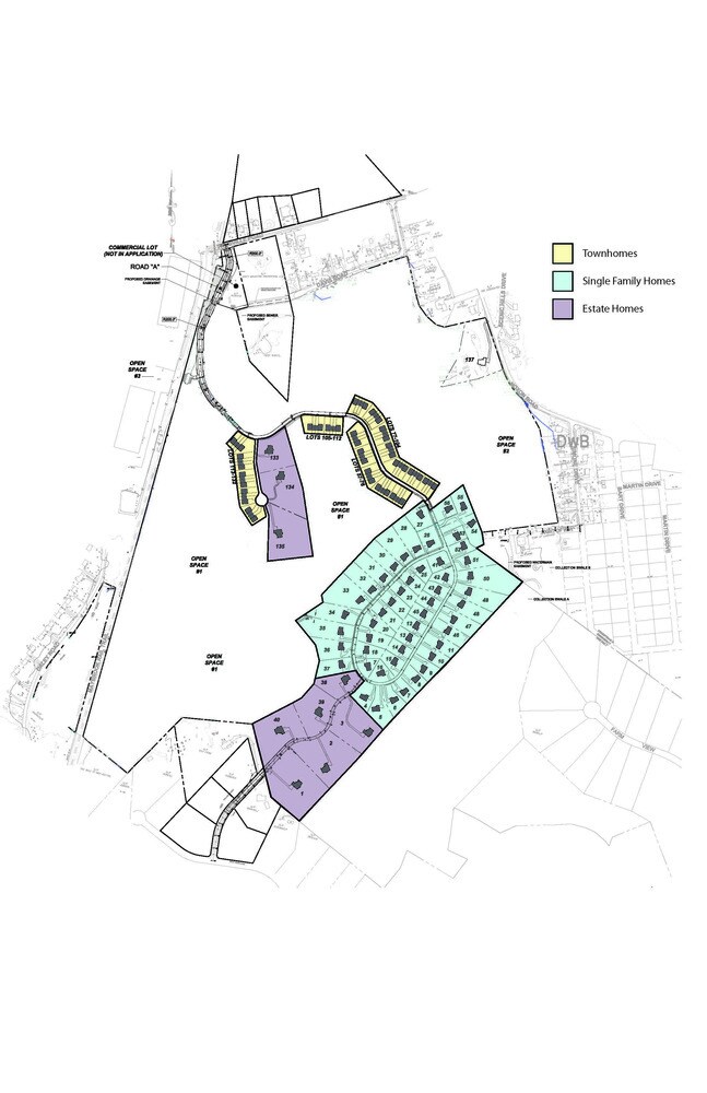
La carte finale est en cours de dépôt et les améliorations à l'infrastructure pourraient commencer à l'été 2022 et la construction d'ici le début de 2023. Le plan actuel prévoit 136 lots : 51 unifamiliaux (0,5 à 1 acre), 9 domaines (1,5 à 8 acres) et 76 maisons de ville. Chaque propriété sera reliée à un réseau municipal d'eau et d'égout.
FAITS SUR LA PROPRIÉTÉ
1 LOT DISPONIBLE
Lot 1-136
| Prix | 9 738 680 $ CAD | Taille du lot | 149,00 AC |
| Prix par AC | 65 360,27 $ CAD |
| Prix | 9 738 680 $ CAD |
| Prix par AC | 65 360,27 $ CAD |
| Taille du lot | 149,00 AC |
149 acres pour le lotissement de 136 lots
DESCRIPTION
Il s'agit d'un lotissement de 136 lots entièrement approuvé dans la vallée de la rivière Hudson. Situé sur le chemin Titusville entre Noxon Road et Daley Road, c'est l'un des endroits les plus recherchés de la région. La Taconic State Parkway, le Metro North Train et Amtrak sont tous à quelques milles de cette ancienne ferme, ce qui en fait un endroit idéal pour les navetteurs ainsi que pour la main-d'œuvre locale qui soutient les employeurs de la région comme IBM, Nuvance Medical Center, Marist College, Vassar College, Culinary Institute of America et plus encore. La propriété longe également le sentier ferroviaire Dutchess, une section du réseau de sentiers cyclables du sentier Empire qui comprend la passerelle au-dessus de l'Hudson, la deuxième plus longue passerelle piétonnière au monde.
Impôts fonciers
| Numéros de lot | Évaluation des bâtiments | 0 $ CAD | |
| Évaluation du terrain | 788 447 $ CAD | Évaluation totale | 788 447 $ CAD |
Impôts fonciers
Présenté par
Titusville - Approved 136 Lot Subdivision - Daley Farm
Hmm, il semble y avoir eu une erreur lors de l’envoi de votre message. Veuillez réessayer.
Merci! Votre message a été envoyé.

