Votre courriel a été envoyé.
Centro urbano Unité de condo • Commerce de détail • 1 216 pi² • À vendre 158 530 $ CAD • Vilanova del Camí, Barcelona 08788



Certaines informations ont été traduites automatiquement.
Faits saillants de l'investissement
- Edificio ubicado en zona residencial consolidada y con todos los servicios al alcance de la mano.
- Bien comunicado mediante transporte público y privado.
Résumé de l'annonce
Immeuble résidentiel situé dans le centre urbain de la localité de Vilanova del Camí, dans la province de Barcelone. Il dispose de 259 m² de surface construite répartis sur 3 étages hors sol. Il bénéficie d'excellentes liaisons, ce qui facilite les déplacements vers le centre-ville et d'autres localités voisines.
1 Unité disponible
| Taille de l’unité | 1 216 pi² | Utilisation du condo | Commerce de détail |
| Prix | 158 530 $ CAD | Type de vente | Investissement ou propriétaire utilisateur |
| Prix par pi² | 130,37 $ CAD |
| Taille de l’unité | 1 216 pi² |
| Prix | 158 530 $ CAD |
| Prix par pi² | 130,37 $ CAD |
| Utilisation du condo | Commerce de détail |
| Type de vente | Investissement ou propriétaire utilisateur |
Description
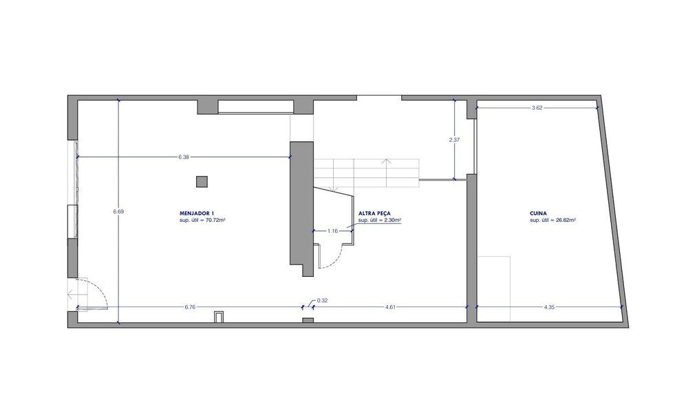
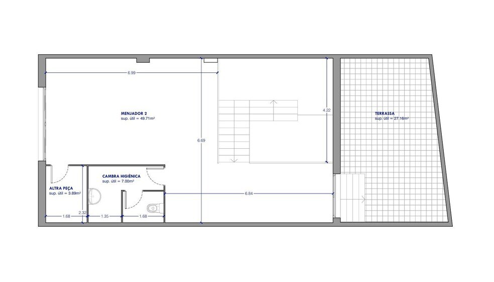
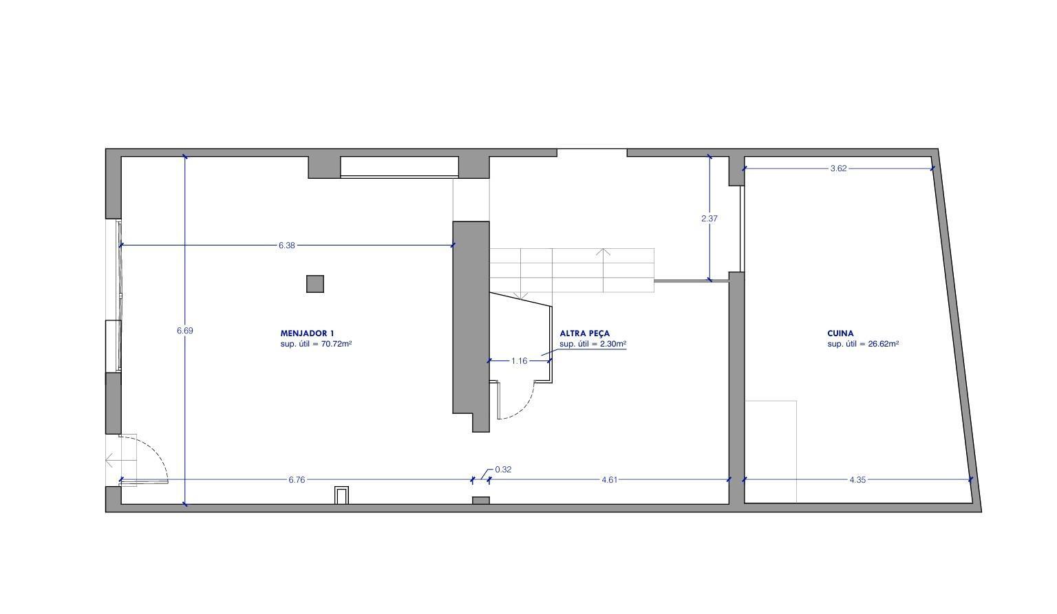
Se ofrece a la venta un local comercial ubicado en el centro de Vilanova del Camí, con una superficie construida de 113 m2. El último uso del espacio fue como restaurante, por lo que dispone de dos baños, suelos de cerámica y carpintería de madera.
Notes sur la vente
Actualmente se encuentra en curso un proyecto para el cambio de uso a vivienda, lo que representa una opción interesante tanto para inversores como para quienes busquen habilitar una vivienda con personalidad en una ubicación céntrica.
El local cuenta con 113 m2 construidos y dispone de dos baños. Presenta acabados con suelo cerámico y cerramientos de madera. Se sitúa en una zona céntrica, con todos los servicios accesibles a pie y buenas conexiones con el transporte público, tanto mediante los Ferrocarriles de la Generalitat como con la línea de autobús Igualada-Barcelona.
En el anuncio se incluyen los planos del proyecto.
Se trata de una propiedad con potencial, tanto para uso residencial como para inversión. Para más información o para concertar una visita, puede ponerse en contacto.
Interior local
Interior local
Interior local
Interior local
Interior local
Interior local
Interior local
Interior local
Interior local
Faits sur la propriété
| Taille totale du bâtiment | < 15 000 pi² | Classe d’immeuble | C |
| Type de propriété | Immeuble residentiel (Condo) | Planchers | 3 |
| Sous-type de propriété | Année de construction | 1970 - 1979 |
| Taille totale du bâtiment | < 15 000 pi² |
| Type de propriété | Immeuble residentiel (Condo) |
| Sous-type de propriété | |
| Classe d’immeuble | C |
| Planchers | 3 |
| Année de construction | 1970 - 1979 |
Présenté par
Centro urbano
Hmm, il semble y avoir eu une erreur lors de l’envoi de votre message. Veuillez réessayer.
Merci! Votre message a été envoyé.

