Votre courriel a été envoyé.
69400 Villefranche-sur-Saône 9 903 pi² d'espace disponible • Flex



Certaines informations ont été traduites automatiquement.
Faits saillants
- Programme récent et sécurisé
- Accès routiers faciles
- Prestations techniques complètes
Caractéristiques
Tous les espaces disponibles(2)
Afficher les taux de location en
- Espace
- Taille
- Terme
-
Taux de location
- Utilisation de l’espace
- Aménagement
- Disponible
- Honoraires preneur: 15,00% du taux de location annuel
- Espace en excellent état
- Dépôt de garantie: 3 mois de taux de location
- Plafonds finis: 16’5”
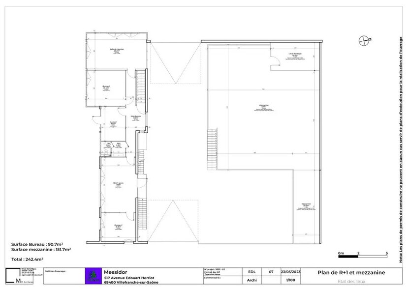
Cet ensemble d’activités bénéficie d’une configuration polyvalente offrant à la fois des zones opérationnelles en rez-de-chaussée et des espaces en étage permettant d’installer confortablement des bureaux ou des fonctions support. Le bâtiment propose de larges volumes avec une belle hauteur sous plafond, ainsi qu’une organisation fonctionnelle intégrant une mezzanine, des bureaux cloisonnés et des espaces sociaux adaptés à un usage quotidien. Les accès sont facilités par des portes sectionnelles et l’ensemble profite d’un environnement pensé pour accueillir une activité industrielle, artisanale ou mixte. Le site dispose d’un stationnement extérieur généreux et de prestations techniques modernes permettant une mise en exploitation immédiate.
- Honoraires preneur: 15,00% du taux de location annuel
- Espace en excellent état
- Bureaux partitionnés
- Connectivité Wi-Fi
- Vidéosurveillance
- Plafond suspendu
- Éclairage encastré
- Stores automatiques
- Conforme DDA
- Cour
- Plafond exposé
- Accessible aux fauteuils roulants
- Parking extérieur disponible
- Dépôt de garantie: 3 mois de taux de location
- Air central et chauffage
- Salle de bains privée
- Système de sécurité
- Entreposage sécurisé
- Éclairage d’urgence
- Douches
- Plafonds finis: 17’11”
- Hauts plafonds
- CVCA disponible après les heures de travail
- Détecteur de fumée
- Accès par portes sectionnelles
- Hauteur importante sous plafond
| Espace | Taille | Terme | Taux de location | Utilisation de l’espace | Aménagement | Disponible |
| RDC | 7 451 pi² | 3/6/9 | 10,45 $ CAD/HT-HC/pi²/an 0,87 $ CAD/HT-HC/pi²/mois 77 850 $ CAD/HT-HC/an 6 487 $ CAD/HT-HC/mois | Flex | - | Maintenant |
| RDC - Bâtiment 2 | 2 476 pi² | 3/6/9 | 10,45 $ CAD/HT-HC/pi²/an 0,87 $ CAD/HT-HC/pi²/mois 25 867 $ CAD/HT-HC/an 2 156 $ CAD/HT-HC/mois | Flex | construction complète | Maintenant |
RDC
| Taille |
| 7 451 pi² |
| Terme |
| 3/6/9 |
|
Taux de location
|
| 10,45 $ CAD/HT-HC/pi²/an 0,87 $ CAD/HT-HC/pi²/mois 77 850 $ CAD/HT-HC/an 6 487 $ CAD/HT-HC/mois |
| Utilisation de l’espace |
| Flex |
| Aménagement |
| - |
| Disponible |
| Maintenant |
RDC - Bâtiment 2
| Taille |
| 2 476 pi² |
| Terme |
| 3/6/9 |
|
Taux de location
|
| 10,45 $ CAD/HT-HC/pi²/an 0,87 $ CAD/HT-HC/pi²/mois 25 867 $ CAD/HT-HC/an 2 156 $ CAD/HT-HC/mois |
| Utilisation de l’espace |
| Flex |
| Aménagement |
| construction complète |
| Disponible |
| Maintenant |
RDC
| Taille | 7 451 pi² |
| Terme | 3/6/9 |
|
Taux de location
|
10,45 $ CAD/HT-HC/pi²/an |
| Utilisation de l’espace | Flex |
| Aménagement | - |
| Disponible | Maintenant |
- Honoraires preneur: 15,00% du taux de location annuel
- Dépôt de garantie: 3 mois de taux de location
- Espace en excellent état
- Plafonds finis: 16’5”
RDC - Bâtiment 2
| Taille | 2 476 pi² |
| Terme | 3/6/9 |
|
Taux de location
|
10,45 $ CAD/HT-HC/pi²/an |
| Utilisation de l’espace | Flex |
| Aménagement | construction complète |
| Disponible | Maintenant |
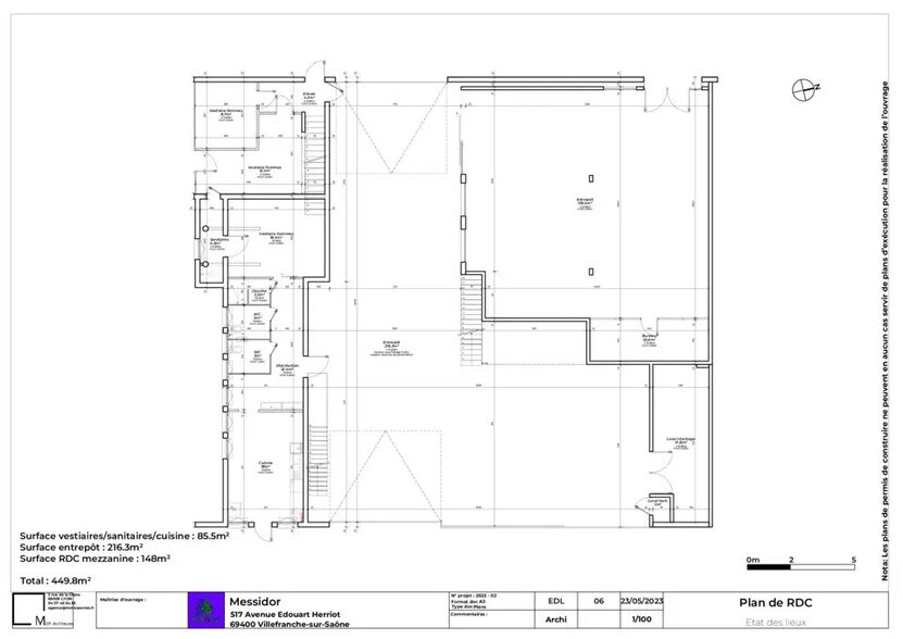
Cet ensemble d’activités bénéficie d’une configuration polyvalente offrant à la fois des zones opérationnelles en rez-de-chaussée et des espaces en étage permettant d’installer confortablement des bureaux ou des fonctions support. Le bâtiment propose de larges volumes avec une belle hauteur sous plafond, ainsi qu’une organisation fonctionnelle intégrant une mezzanine, des bureaux cloisonnés et des espaces sociaux adaptés à un usage quotidien. Les accès sont facilités par des portes sectionnelles et l’ensemble profite d’un environnement pensé pour accueillir une activité industrielle, artisanale ou mixte. Le site dispose d’un stationnement extérieur généreux et de prestations techniques modernes permettant une mise en exploitation immédiate.
- Honoraires preneur: 15,00% du taux de location annuel
- Dépôt de garantie: 3 mois de taux de location
- Espace en excellent état
- Air central et chauffage
- Bureaux partitionnés
- Salle de bains privée
- Connectivité Wi-Fi
- Système de sécurité
- Vidéosurveillance
- Entreposage sécurisé
- Plafond suspendu
- Éclairage d’urgence
- Éclairage encastré
- Douches
- Stores automatiques
- Plafonds finis: 17’11”
- Conforme DDA
- Hauts plafonds
- Cour
- CVCA disponible après les heures de travail
- Plafond exposé
- Détecteur de fumée
- Accessible aux fauteuils roulants
- Accès par portes sectionnelles
- Parking extérieur disponible
- Hauteur importante sous plafond
Aperçu de la propriété
Le bien est situé au sein de la commune de Villefranche-sur-Saône, dans un environnement dynamique mêlant activités économiques, services et facilité d’accès. Le bâtiment, récent et fonctionnel, bénéficie d’une structure métallique moderne, d’une façade mixte bardage et béton, ainsi que de nombreuses installations permettant une exploitation confortable au quotidien. Le site est équipé d’un système de vidéosurveillance, d’un contrôle d’accès, d’un interphone, d’une fibre optique et d’installations techniques adaptées aux activités professionnelles et industrielles. Les déplacements sont facilités grâce à la présence de transports à proximité, dont une ligne de bus à quelques minutes. L’accès routier est également fluide, permettant de rejoindre rapidement les axes principaux desservant la région lyonnaise. Le quartier offre une réelle attractivité grâce à la présence de services, d’espaces de restauration et de commerces à proximité, tout en restant suffisamment dégagé pour accueillir des activités nécessitant de la surface et des facilités logistiques.
Faits sur la propriété
Présenté par
"69400 Villefranche-sur-Saône"
Hmm, il semble y avoir eu une erreur lors de l’envoi de votre message. Veuillez réessayer.
Merci! Votre message a été envoyé.



