Votre courriel a été envoyé.
W Catawba Ave
Cornelius, NC 28031
Nantz Road Retail · Terrain À louer


Certaines informations ont été traduites automatiquement.
FAITS SAILLANTS
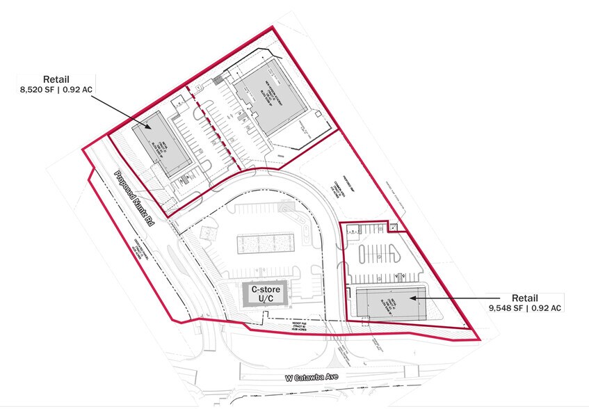
- ±6.98 acre site located at the fully signalized intersection of W. Catawba Ave and Nantz Rd
- Site work is currently underway and will be delivered as rough graded pads in summer of 2025
- Up to three pad sites available
- Less than 1.5 miles from I-77 and Sam Furr Rd with immediate access to several communities along Lake Norman
APERÇU DE LA PROPRIÉTÉ
Ce site de ±6,98 acres est situé à l'intersection entièrement signalée de l'avenue W. Catawba et de la route Nantz, offrant une excellente visibilité et un accès facile. La propriété peut accueillir jusqu'à trois emplacements distincts, offrant une flexibilité pour une variété d'utilisateurs ou de projets de développement. Les travaux sur le site sont actuellement en cours, avec une livraison prévue sous forme de terrains nivelés d'ici l'été 2025. La propriété est située à moins de 1,5 mile de l'intersection de l'I-77 et de la route Sam Furr, assurant une connectivité régionale pratique. L'emplacement offre également un accès proche à plusieurs communautés résidentielles situées le long du lac Norman, ce qui le rend idéal pour des usages bénéficiant à la fois du trafic local et des navetteurs.
FAITS SUR LA PROPRIÉTÉ
| Superficie totale disponible | 6,89 AC | Sous-type de propriété | Terrain commercial |
| Type de propriété | Terrain | Utilisation proposée | Commerce de détail |
| Superficie totale disponible | 6,89 AC |
| Type de propriété | Terrain |
| Sous-type de propriété | Terrain commercial |
| Utilisation proposée | Commerce de détail |
