Votre courriel a été envoyé.
Walnut Crossing W Walnut Ave 15 000–31 241 pi² d'espace disponible • Commerce de détail • Dalton, GA 30720



Certaines informations ont été traduites automatiquement.
Disponibilité de l’espace (1)
Afficher les taux de location en
- Espace
- Taille
- Terme
- Taux de location
- Type de loyer
| Espace | Taille | Terme | Taux de location | Type de loyer | ||
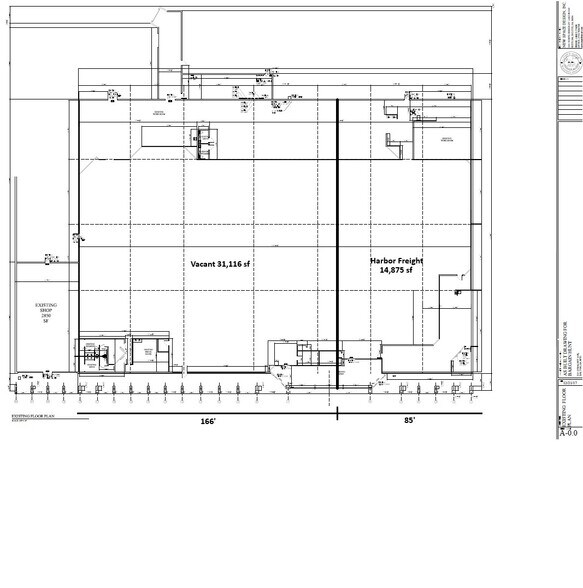
| 1er étage, ste 2121 | 15 000 à 31 241 pi² | 5-15 ans | 14,40 $ CAD/pi²/an 1,20 $ CAD/pi²/mois 449 746 $ CAD/an 37 479 $ CAD/mois | Loyer hypernet |
2121 E Walnut Ave - 1er étage - ste 2121
Ceiling Heights: Vestibule finished ceiling 9’10” Front cash reg drop area 10’ Main sales floor finished 12’10” To bottom of Truss in stock room 14’9” Loading Dock area to bottom of ibeam 11’2”
- Le taux de location ne comprend pas les services publics, les services de bâtiment ou les dépenses immobilières.
- Entièrement construit comme Espace de commerce de détail standard
- Situé en ligne avec d’autres commerces de détail
- Espace en excellent état
- 2 quais de chargement
Types de loyers
Le type et le montant du loyer que le locataire (preneur) est tenu de payer au propriétaire (bailleur) sur la durée du bail sont négociés avant la signature du bail par les deux parties. Le type de loyer varie selon les services fournis. Par exemple, le prix d’un loyer hypernet est habituellement inférieur à celui d’un bail à service complet puisque le locataire est tenu d’assumer des dépenses additionnelles par rapport au loyer de base. Contactez le courtier inscripteur pour tout connaître sur les frais connexes et additionnels associés à chaque type de loyer.
1. Service complet: Un taux de location qui comprend des services standards liés à l’immeuble fournis par le propriétaire dans le cadre d’une location annuelle de base.
2. Loyer supernet: Le locataire paie seulement deux des frais de l’immeuble. Le propriétaire et le locataire déterminent ces frais spécifiques avant la signature du bail.
3. Loyer hypernet: Un bail en vertu duquel le locataire est responsable de tous les frais liés à sa part proportionnelle d’occupation de l’immeuble.
4. Brut modifié: Le loyer brut modifié désigne un type général de taux de location dans lequel le locataire est habituellement responsable de sa part proportionnelle d’un ou de plusieurs frais. C’est le propriétaire qui paie les frais restants. Considérez les structures tarifaires courantes suivantes applicables aux loyers bruts modifiés: 4. Plus les services: Un type de bail brut modifié suivant lequel le locataire est responsable de sa part proportionnelle des coûts des services publics, en plus du loyer. 4. Plus le nettoyage: Un type de bail brut modifié suivant lequel le locataire est responsable de sa part proportionnelle des coûts de nettoyage, en plus du loyer. 4. Plus l'électricité: Un type de bail brut modifié suivant lequel le locataire est responsable de sa part proportionnelle des coûts d’électricité, en plus du loyer. 4. Plus l’électricité et le nettoyage: Un type de bail brut modifié dans lequel le locataire est responsable de sa part proportionnelle des coûts d’électricité et de nettoyage, en plus du loyer. 4. Plus les services publics et le nettoyage: Un type de bail brut modifié dans lequel le locataire est responsable de sa part proportionnelle des coûts des services publics et de nettoyage, en plus du loyer. 4. Bail industriel brut: Un type de bail brut modifié dans lequel le locataire paie un ou plusieurs des frais, en plus du loyer. Le propriétaire et le locataire déterminent ces frais spécifiques avant la signature du bail.
5. L’électricité est à la charge du locataire: Le propriétaire paie pour tous les services et le locataire est responsable de sa propre utilisation de l’éclairage et des prises électriques dans l’espace qu’il occupe.
6. Négociable ou sur demande: Cette option est utilisée lorsque le contact de location ne précise pas le type de loyer ou de service.
7. À déterminer: À déterminer ; utilisé pour les immeubles dont le type de services ou de loyer n’est pas connu, souvent quand l’immeuble n’est pas encore construit.
Sélectionner des locataires à Walnut Crossing
- Locataire
- Description
- Emplacements US
- Portée
- Ace Hardware
- Matériel
- 4 586
- International
- Affordable Computers
- -
- -
- -
- Franklin Dental & Braces
- MD/DDS
- 11
- Local
- Harbor Freight Tools
- Matériel
- 1 789
- National
- Hobby Lobby
- Passe-temps
- 1 326
- National
- Teriyaki Bistro
- Restaurant
- 1
- -
| Locataire | Description | Emplacements US | Portée |
| Ace Hardware | Matériel | 4 586 | International |
| Affordable Computers | - | - | - |
| Franklin Dental & Braces | MD/DDS | 11 | Local |
| Harbor Freight Tools | Matériel | 1 789 | National |
| Hobby Lobby | Passe-temps | 1 326 | National |
| Teriyaki Bistro | Restaurant | 1 | - |
Faits sur la propriété
| Superficie totale disponible | 31 241 pi² | Superficie commerciale brute | 138 410 pi² |
| Min. divisible | 15 000 pi² | Superficie totale du terrain | 12,73 AC |
| Type de centre | Centre de voisinage | Année de construction | 1982 |
| Propriétés du centre | 2 |
| Superficie totale disponible | 31 241 pi² |
| Min. divisible | 15 000 pi² |
| Type de centre | Centre de voisinage |
| Propriétés du centre | 2 |
| Superficie commerciale brute | 138 410 pi² |
| Superficie totale du terrain | 12,73 AC |
| Année de construction | 1982 |
À propos de la propriété
Center features Harbor Freight, Hobby Lobby, Ace Hardware, among others. The former Bargain Hunt is the only vacancy in the center.
Principaux détaillants à proximité
Présenté par
Walnut Crossing | W Walnut Ave
Hmm, il semble y avoir eu une erreur lors de l’envoi de votre message. Veuillez réessayer.
Merci! Votre message a été envoyé.



