Votre courriel a été envoyé.
The Turing Building Westfield Ave 8 657–259 974 pi² d'espace disponible • Bureau • 5 étoiles • Londres E20 1HZ



Certaines informations ont été traduites automatiquement.
Faits saillants
- 350,000 sq ft in the heart of Stratford.
- WELL Gold and BREEAM Outstanding.
- Roof Terraces.
- Bio-diverse Rooftop.
- Everyman Cinema on ground and lower ground. Available to book as presentation space.
- Educational Use consent in place for 200,000 sq ft.
- EPC A.
- 100% Fresh Air.
- Flexible Floorplates.
- Active Lobby with Events Space.
- Ability to offer self-contained entrance.
- Level 21 providing amenity space and terrace benefitting all occupiers.
Tous les espaces disponibles(16)
Afficher les taux de location en
- Espace
- Taille
- Terme
- Taux de location
- Utilisation de l’espace
- Aménagement
- Disponible
Occupy, brand-new Grade A workspaces wrapped up within 350,000 square feet of imaginatively designed architecture at The Turing Building in Stratford Cross. Designed with flexibility and sustainability at its core, the building offers efficient, open-plan floor plates and best-in-class sustainability for forward-thinking occupiers. Please contact the agents for more information.
- Classe d’utilisation : E
- Disposition du plan d’étage ouverte en général
- Peut être associé à un ou plusieurs espaces supplémentaires pour obtenir jusqu’à 251 317 pi² d’espace adjacent.
- Cote de rendement énergétique - A
- La meilleure durabilité de sa catégorie
- Cinéma Everyman intégré
- Installations de fin de voyage
- Partiellement construit comme Bureau standard
- Espace en excellent état
- Lumière naturelle
- Installations WC abandonnées
- Salon d'affaires et espace événementiel exclusifs sur la L21
- Café au rez-de-chaussée
Occupy, brand-new Grade A workspaces wrapped up within 350,000 square feet of imaginatively designed architecture at The Turing Building in Stratford Cross. Designed with flexibility and sustainability at its core, the building offers efficient, open-plan floor plates and best-in-class sustainability for forward-thinking occupiers. Please contact the agents for more information.
- Classe d’utilisation : E
- Disposition du plan d’étage ouverte en général
- Peut être associé à un ou plusieurs espaces supplémentaires pour obtenir jusqu’à 251 317 pi² d’espace adjacent.
- Lumière naturelle
- Installations WC abandonnées
- Salon d'affaires et espace événementiel exclusifs sur la L21
- Café au rez-de-chaussée
- Partiellement construit comme Bureau standard
- Espace en excellent état
- Climatisation centrale
- Cote de rendement énergétique - A
- La meilleure durabilité de sa catégorie
- Cinéma Everyman intégré
- Installations de fin de voyage
Occupy, brand-new Grade A workspaces wrapped up within 350,000 square feet of imaginatively designed architecture at The Turing Building in Stratford Cross. Designed with flexibility and sustainability at its core, the building offers efficient, open-plan floor plates and best-in-class sustainability for forward-thinking occupiers. Please contact the agents for more information.
- Classe d’utilisation : E
- Disposition du plan d’étage ouverte en général
- Peut être associé à un ou plusieurs espaces supplémentaires pour obtenir jusqu’à 251 317 pi² d’espace adjacent.
- Lumière naturelle
- La meilleure durabilité de sa catégorie
- Cinéma Everyman intégré
- Installations de fin de voyage
- Partiellement construit comme Bureau standard
- Espace en excellent état
- Cuisine
- Installations WC abandonnées
- Salon d'affaires et espace événementiel exclusifs sur la L21
- Café au rez-de-chaussée
Occupy, brand-new Grade A workspaces wrapped up within 350,000 square feet of imaginatively designed architecture at The Turing Building in Stratford Cross. Designed with flexibility and sustainability at its core, the building offers efficient, open-plan floor plates and best-in-class sustainability for forward-thinking occupiers. Please contact the agents for more information.
- Classe d’utilisation : E
- Disposition du plan d’étage ouverte en général
- Peut être associé à un ou plusieurs espaces supplémentaires pour obtenir jusqu’à 251 317 pi² d’espace adjacent.
- Lumière naturelle
- Installations WC abandonnées
- Salon d'affaires et espace événementiel exclusifs sur la L21
- Café au rez-de-chaussée
- Partiellement construit comme Bureau standard
- Espace en excellent état
- Climatisation centrale
- Cote de rendement énergétique - A
- La meilleure durabilité de sa catégorie
- Cinéma Everyman intégré
- Installations de fin de voyage
Occupy, brand-new Grade A workspaces wrapped up within 350,000 square feet of imaginatively designed architecture at The Turing Building in Stratford Cross. Designed with flexibility and sustainability at its core, the building offers efficient, open-plan floor plates and best-in-class sustainability for forward-thinking occupiers. Please contact the agents for more information.
- Classe d’utilisation : E
- Disposition du plan d’étage ouverte en général
- Peut être associé à un ou plusieurs espaces supplémentaires pour obtenir jusqu’à 251 317 pi² d’espace adjacent.
- Lumière naturelle
- Installations WC abandonnées
- Salon d'affaires et espace événementiel exclusifs sur la L21
- Café au rez-de-chaussée
- Partiellement construit comme Bureau standard
- Espace en excellent état
- Climatisation centrale
- Cote de rendement énergétique - A
- La meilleure durabilité de sa catégorie
- Cinéma Everyman intégré
- Installations de fin de voyage
Occupy, brand-new Grade A workspaces wrapped up within 350,000 square feet of imaginatively designed architecture at The Turing Building in Stratford Cross. Designed with flexibility and sustainability at its core, the building offers efficient, open-plan floor plates and best-in-class sustainability for forward-thinking occupiers. Please contact the agents for more information.
- Classe d’utilisation : E
- Disposition du plan d’étage ouverte en général
- Peut être associé à un ou plusieurs espaces supplémentaires pour obtenir jusqu’à 251 317 pi² d’espace adjacent.
- Lumière naturelle
- La meilleure durabilité de sa catégorie
- Cinéma Everyman intégré
- Installations de fin de voyage
- Partiellement construit comme Bureau standard
- Espace en excellent état
- Cuisine
- Installations WC abandonnées
- Salon d'affaires et espace événementiel exclusifs sur la L21
- Café au rez-de-chaussée
Occupy, brand-new Grade A workspaces wrapped up within 350,000 square feet of imaginatively designed architecture at The Turing Building in Stratford Cross. Designed with flexibility and sustainability at its core, the building offers efficient, open-plan floor plates and best-in-class sustainability for forward-thinking occupiers. Please contact the agents for more information.
- Classe d’utilisation : E
- Disposition du plan d’étage ouverte en général
- Peut être associé à un ou plusieurs espaces supplémentaires pour obtenir jusqu’à 251 317 pi² d’espace adjacent.
- Lumière naturelle
- Installations WC abandonnées
- Salon d'affaires et espace événementiel exclusifs sur la L21
- Café au rez-de-chaussée
- Partiellement construit comme Bureau standard
- Espace en excellent état
- Climatisation centrale
- Cote de rendement énergétique - A
- La meilleure durabilité de sa catégorie
- Cinéma Everyman intégré
- Installations de fin de voyage
Occupy, brand-new Grade A workspaces wrapped up within 350,000 square feet of imaginatively designed architecture at The Turing Building in Stratford Cross. Designed with flexibility and sustainability at its core, the building offers efficient, open-plan floor plates and best-in-class sustainability for forward-thinking occupiers. Please contact the agents for more information.
- Classe d’utilisation : E
- Disposition du plan d’étage ouverte en général
- Climatisation centrale
- Cote de rendement énergétique - A
- Best-In-Class Sustainability
- Integrated Everyman Cinema
- End-Of-Trip Facilities
- Partiellement construit comme Bureau standard
- Espace en excellent état
- Lumière naturelle
- Installations WC abandonnées
- Exclusive business lounge and event space on L21
- Ground Floor Cafe
Occupy, brand-new Grade A workspaces wrapped up within 350,000 square feet of imaginatively designed architecture at The Turing Building in Stratford Cross. Designed with flexibility and sustainability at its core, the building offers efficient, open-plan floor plates and best-in-class sustainability for forward-thinking occupiers. Please contact the agents for more information.
- Classe d’utilisation : E
- Disposition du plan d’étage ouverte en général
- Peut être associé à un ou plusieurs espaces supplémentaires pour obtenir jusqu’à 251 317 pi² d’espace adjacent.
- Lumière naturelle
- Installations WC abandonnées
- Salon d'affaires et espace événementiel exclusifs sur la L21
- Café au rez-de-chaussée
- Partiellement construit comme Bureau standard
- Espace en excellent état
- Climatisation centrale
- Cote de rendement énergétique - A
- La meilleure durabilité de sa catégorie
- Cinéma Everyman intégré
- Installations de fin de voyage
Occupy, brand-new Grade A workspaces wrapped up within 350,000 square feet of imaginatively designed architecture at The Turing Building in Stratford Cross. Designed with flexibility and sustainability at its core, the building offers efficient, open-plan floor plates and best-in-class sustainability for forward-thinking occupiers. Please contact the agents for more information.
- Classe d’utilisation : E
- Disposition du plan d’étage ouverte en général
- Peut être associé à un ou plusieurs espaces supplémentaires pour obtenir jusqu’à 251 317 pi² d’espace adjacent.
- Cuisine
- La meilleure durabilité de sa catégorie
- Cinéma Everyman intégré
- Installations de fin de voyage
- Partiellement construit comme Bureau standard
- Espace en excellent état
- Air central et chauffage
- Installations WC abandonnées
- Salon d'affaires et espace événementiel exclusifs sur la L21
- Café au rez-de-chaussée
Occupy, brand-new Grade A workspaces wrapped up within 350,000 square feet of imaginatively designed architecture at The Turing Building in Stratford Cross. Designed with flexibility and sustainability at its core, the building offers efficient, open-plan floor plates and best-in-class sustainability for forward-thinking occupiers. Please contact the agents for more information.
- Classe d’utilisation : E
- Disposition du plan d’étage ouverte en général
- Peut être associé à un ou plusieurs espaces supplémentaires pour obtenir jusqu’à 251 317 pi² d’espace adjacent.
- Lumière naturelle
- La meilleure durabilité de sa catégorie
- Cinéma Everyman intégré
- Installations de fin de voyage
- Partiellement construit comme Bureau standard
- Espace en excellent état
- Cuisine
- Installations WC abandonnées
- Salon d'affaires et espace événementiel exclusifs sur la L21
- Café au rez-de-chaussée
Occupy, brand-new Grade A workspaces wrapped up within 350,000 square feet of imaginatively designed architecture at The Turing Building in Stratford Cross. Designed with flexibility and sustainability at its core, the building offers efficient, open-plan floor plates and best-in-class sustainability for forward-thinking occupiers. Please contact the agents for more information.
- Classe d’utilisation : E
- Disposition du plan d’étage ouverte en général
- Peut être associé à un ou plusieurs espaces supplémentaires pour obtenir jusqu’à 251 317 pi² d’espace adjacent.
- Lumière naturelle
- Installations WC abandonnées
- Salon d'affaires et espace événementiel exclusifs sur la L21
- Café au rez-de-chaussée
- Partiellement construit comme Bureau standard
- Espace en excellent état
- Climatisation centrale
- Cote de rendement énergétique - A
- La meilleure durabilité de sa catégorie
- Cinéma Everyman intégré
- Installations de fin de voyage
Occupy, brand-new Grade A workspaces wrapped up within 350,000 square feet of imaginatively designed architecture at The Turing Building in Stratford Cross. Designed with flexibility and sustainability at its core, the building offers efficient, open-plan floor plates and best-in-class sustainability for forward-thinking occupiers. Please contact the agents for more information.
- Classe d’utilisation : E
- Disposition du plan d’étage ouverte en général
- Peut être associé à un ou plusieurs espaces supplémentaires pour obtenir jusqu’à 251 317 pi² d’espace adjacent.
- Lumière naturelle
- Installations WC abandonnées
- Salon d'affaires et espace événementiel exclusifs sur la L21
- Café au rez-de-chaussée
- Partiellement construit comme Bureau standard
- Espace en excellent état
- Climatisation centrale
- Cote de rendement énergétique - A
- La meilleure durabilité de sa catégorie
- Cinéma Everyman intégré
- Installations de fin de voyage
2,207-square-foot terrace available.
- Classe d’utilisation : E
- Disposition du plan d’étage ouverte en général
- Peut être associé à un ou plusieurs espaces supplémentaires pour obtenir jusqu’à 251 317 pi² d’espace adjacent.
- Balcon
- Cote de rendement énergétique - A
- La meilleure durabilité de sa catégorie
- Cinéma Everyman intégré
- Installations de fin de voyage
- Partiellement construit comme Bureau standard
- Espace en excellent état
- Climatisation centrale
- Lumière naturelle
- Installations WC abandonnées
- Salon d'affaires et espace événementiel exclusifs sur la L21
- Café au rez-de-chaussée
Occupy, brand-new Grade A workspaces wrapped up within 350,000 square feet of imaginatively designed architecture at The Turing Building in Stratford Cross. Designed with flexibility and sustainability at its core, the building offers efficient, open-plan floor plates and best-in-class sustainability for forward-thinking occupiers. Please contact the agents for more information.
- Classe d’utilisation : E
- Disposition du plan d’étage ouverte en général
- Peut être associé à un ou plusieurs espaces supplémentaires pour obtenir jusqu’à 251 317 pi² d’espace adjacent.
- Lumière naturelle
- Installations WC abandonnées
- Salon d'affaires et espace événementiel exclusifs sur la L21
- Café au rez-de-chaussée
- Partiellement construit comme Bureau standard
- Espace en excellent état
- Climatisation centrale
- Cote de rendement énergétique - A
- La meilleure durabilité de sa catégorie
- Cinéma Everyman intégré
- Installations de fin de voyage
Occupy, brand-new Grade A workspaces wrapped up within 350,000 square feet of imaginatively designed architecture at The Turing Building in Stratford Cross. Designed with flexibility and sustainability at its core, the building offers efficient, open-plan floor plates and best-in-class sustainability for forward-thinking occupiers. Please contact the agents for more information.
- Classe d’utilisation : E
- Disposition du plan d’étage ouverte en général
- Peut être associé à un ou plusieurs espaces supplémentaires pour obtenir jusqu’à 251 317 pi² d’espace adjacent.
- Lumière naturelle
- Installations WC abandonnées
- Exclusive business lounge and event space on L21
- Ground Floor Cafe
- Partiellement construit comme Bureau standard
- Espace en excellent état
- Climatisation centrale
- Cote de rendement énergétique - A
- Best-In-Class Sustainability
- Integrated Everyman Cinema
- End-Of-Trip Facilities
| Espace | Taille | Terme | Taux de location | Utilisation de l’espace | Aménagement | Disponible |
| 7e étage | 17 524 pi² | Négociable | 92,11 $ CAD/pi²/an 7,68 $ CAD/pi²/mois 1 614 142 $ CAD/an 134 512 $ CAD/mois | Bureau | construction partielle | Maintenant |
| 8e étage | 17 534 pi² | Négociable | 92,11 $ CAD/pi²/an 7,68 $ CAD/pi²/mois 1 615 063 $ CAD/an 134 589 $ CAD/mois | Bureau | construction partielle | Maintenant |
| 9e étage | 17 534 pi² | Négociable | 92,11 $ CAD/pi²/an 7,68 $ CAD/pi²/mois 1 615 063 $ CAD/an 134 589 $ CAD/mois | Bureau | construction partielle | Maintenant |
| 10e étage | 17 534 pi² | Négociable | 92,11 $ CAD/pi²/an 7,68 $ CAD/pi²/mois 1 615 063 $ CAD/an 134 589 $ CAD/mois | Bureau | construction partielle | Maintenant |
| 11e étage | 17 557 pi² | Négociable | 92,11 $ CAD/pi²/an 7,68 $ CAD/pi²/mois 1 617 182 $ CAD/an 134 765 $ CAD/mois | Bureau | construction partielle | Maintenant |
| 12e étage | 17 558 pi² | Négociable | 92,11 $ CAD/pi²/an 7,68 $ CAD/pi²/mois 1 617 274 $ CAD/an 134 773 $ CAD/mois | Bureau | construction partielle | Bail en cours |
| 13e étage, ste North | 10 000 pi² | Négociable | 92,11 $ CAD/pi²/an 7,68 $ CAD/pi²/mois 921 104 $ CAD/an 76 759 $ CAD/mois | Bureau | construction partielle | Bail en cours |
| 13e étage, ste South | 8 657 pi² | Négociable | 92,11 $ CAD/pi²/an 7,68 $ CAD/pi²/mois 797 400 $ CAD/an 66 450 $ CAD/mois | Bureau | construction partielle | Maintenant |
| 14e étage | 18 288 pi² | Négociable | 92,11 $ CAD/pi²/an 7,68 $ CAD/pi²/mois 1 684 515 $ CAD/an 140 376 $ CAD/mois | Bureau | construction partielle | Bail en cours |
| 15e étage | 18 675 pi² | Négociable | 92,11 $ CAD/pi²/an 7,68 $ CAD/pi²/mois 1 720 161 $ CAD/an 143 347 $ CAD/mois | Bureau | construction partielle | Maintenant |
| 16e étage | 18 385 pi² | Négociable | 92,11 $ CAD/pi²/an 7,68 $ CAD/pi²/mois 1 693 449 $ CAD/an 141 121 $ CAD/mois | Bureau | construction partielle | Maintenant |
| 17e étage | 18 675 pi² | Négociable | 92,11 $ CAD/pi²/an 7,68 $ CAD/pi²/mois 1 720 161 $ CAD/an 143 347 $ CAD/mois | Bureau | construction partielle | Maintenant |
| 18e étage | 18 686 pi² | Négociable | 92,11 $ CAD/pi²/an 7,68 $ CAD/pi²/mois 1 721 174 $ CAD/an 143 431 $ CAD/mois | Bureau | construction partielle | Maintenant |
| 19e étage | 16 394 pi² | Négociable | 92,11 $ CAD/pi²/an 7,68 $ CAD/pi²/mois 1 510 057 $ CAD/an 125 838 $ CAD/mois | Bureau | construction partielle | Maintenant |
| 20e étage | 16 393 pi² | Négociable | 92,11 $ CAD/pi²/an 7,68 $ CAD/pi²/mois 1 509 965 $ CAD/an 125 830 $ CAD/mois | Bureau | construction partielle | Maintenant |
| 21e étage, ste Amenity Floor | 10 580 pi² | Négociable | Sur demande Sur demande Sur demande Sur demande | Bureau | construction partielle | Maintenant |
7e étage
| Taille |
| 17 524 pi² |
| Terme |
| Négociable |
| Taux de location |
| 92,11 $ CAD/pi²/an 7,68 $ CAD/pi²/mois 1 614 142 $ CAD/an 134 512 $ CAD/mois |
| Utilisation de l’espace |
| Bureau |
| Aménagement |
| construction partielle |
| Disponible |
| Maintenant |
8e étage
| Taille |
| 17 534 pi² |
| Terme |
| Négociable |
| Taux de location |
| 92,11 $ CAD/pi²/an 7,68 $ CAD/pi²/mois 1 615 063 $ CAD/an 134 589 $ CAD/mois |
| Utilisation de l’espace |
| Bureau |
| Aménagement |
| construction partielle |
| Disponible |
| Maintenant |
9e étage
| Taille |
| 17 534 pi² |
| Terme |
| Négociable |
| Taux de location |
| 92,11 $ CAD/pi²/an 7,68 $ CAD/pi²/mois 1 615 063 $ CAD/an 134 589 $ CAD/mois |
| Utilisation de l’espace |
| Bureau |
| Aménagement |
| construction partielle |
| Disponible |
| Maintenant |
10e étage
| Taille |
| 17 534 pi² |
| Terme |
| Négociable |
| Taux de location |
| 92,11 $ CAD/pi²/an 7,68 $ CAD/pi²/mois 1 615 063 $ CAD/an 134 589 $ CAD/mois |
| Utilisation de l’espace |
| Bureau |
| Aménagement |
| construction partielle |
| Disponible |
| Maintenant |
11e étage
| Taille |
| 17 557 pi² |
| Terme |
| Négociable |
| Taux de location |
| 92,11 $ CAD/pi²/an 7,68 $ CAD/pi²/mois 1 617 182 $ CAD/an 134 765 $ CAD/mois |
| Utilisation de l’espace |
| Bureau |
| Aménagement |
| construction partielle |
| Disponible |
| Maintenant |
12e étage
| Taille |
| 17 558 pi² |
| Terme |
| Négociable |
| Taux de location |
| 92,11 $ CAD/pi²/an 7,68 $ CAD/pi²/mois 1 617 274 $ CAD/an 134 773 $ CAD/mois |
| Utilisation de l’espace |
| Bureau |
| Aménagement |
| construction partielle |
| Disponible |
| Bail en cours |
13e étage, ste North
| Taille |
| 10 000 pi² |
| Terme |
| Négociable |
| Taux de location |
| 92,11 $ CAD/pi²/an 7,68 $ CAD/pi²/mois 921 104 $ CAD/an 76 759 $ CAD/mois |
| Utilisation de l’espace |
| Bureau |
| Aménagement |
| construction partielle |
| Disponible |
| Bail en cours |
13e étage, ste South
| Taille |
| 8 657 pi² |
| Terme |
| Négociable |
| Taux de location |
| 92,11 $ CAD/pi²/an 7,68 $ CAD/pi²/mois 797 400 $ CAD/an 66 450 $ CAD/mois |
| Utilisation de l’espace |
| Bureau |
| Aménagement |
| construction partielle |
| Disponible |
| Maintenant |
14e étage
| Taille |
| 18 288 pi² |
| Terme |
| Négociable |
| Taux de location |
| 92,11 $ CAD/pi²/an 7,68 $ CAD/pi²/mois 1 684 515 $ CAD/an 140 376 $ CAD/mois |
| Utilisation de l’espace |
| Bureau |
| Aménagement |
| construction partielle |
| Disponible |
| Bail en cours |
15e étage
| Taille |
| 18 675 pi² |
| Terme |
| Négociable |
| Taux de location |
| 92,11 $ CAD/pi²/an 7,68 $ CAD/pi²/mois 1 720 161 $ CAD/an 143 347 $ CAD/mois |
| Utilisation de l’espace |
| Bureau |
| Aménagement |
| construction partielle |
| Disponible |
| Maintenant |
16e étage
| Taille |
| 18 385 pi² |
| Terme |
| Négociable |
| Taux de location |
| 92,11 $ CAD/pi²/an 7,68 $ CAD/pi²/mois 1 693 449 $ CAD/an 141 121 $ CAD/mois |
| Utilisation de l’espace |
| Bureau |
| Aménagement |
| construction partielle |
| Disponible |
| Maintenant |
17e étage
| Taille |
| 18 675 pi² |
| Terme |
| Négociable |
| Taux de location |
| 92,11 $ CAD/pi²/an 7,68 $ CAD/pi²/mois 1 720 161 $ CAD/an 143 347 $ CAD/mois |
| Utilisation de l’espace |
| Bureau |
| Aménagement |
| construction partielle |
| Disponible |
| Maintenant |
18e étage
| Taille |
| 18 686 pi² |
| Terme |
| Négociable |
| Taux de location |
| 92,11 $ CAD/pi²/an 7,68 $ CAD/pi²/mois 1 721 174 $ CAD/an 143 431 $ CAD/mois |
| Utilisation de l’espace |
| Bureau |
| Aménagement |
| construction partielle |
| Disponible |
| Maintenant |
19e étage
| Taille |
| 16 394 pi² |
| Terme |
| Négociable |
| Taux de location |
| 92,11 $ CAD/pi²/an 7,68 $ CAD/pi²/mois 1 510 057 $ CAD/an 125 838 $ CAD/mois |
| Utilisation de l’espace |
| Bureau |
| Aménagement |
| construction partielle |
| Disponible |
| Maintenant |
20e étage
| Taille |
| 16 393 pi² |
| Terme |
| Négociable |
| Taux de location |
| 92,11 $ CAD/pi²/an 7,68 $ CAD/pi²/mois 1 509 965 $ CAD/an 125 830 $ CAD/mois |
| Utilisation de l’espace |
| Bureau |
| Aménagement |
| construction partielle |
| Disponible |
| Maintenant |
21e étage, ste Amenity Floor
| Taille |
| 10 580 pi² |
| Terme |
| Négociable |
| Taux de location |
| Sur demande Sur demande Sur demande Sur demande |
| Utilisation de l’espace |
| Bureau |
| Aménagement |
| construction partielle |
| Disponible |
| Maintenant |
7e étage
| Taille | 17 524 pi² |
| Terme | Négociable |
| Taux de location | 92,11 $ CAD/pi²/an |
| Utilisation de l’espace | Bureau |
| Aménagement | construction partielle |
| Disponible | Maintenant |
Occupy, brand-new Grade A workspaces wrapped up within 350,000 square feet of imaginatively designed architecture at The Turing Building in Stratford Cross. Designed with flexibility and sustainability at its core, the building offers efficient, open-plan floor plates and best-in-class sustainability for forward-thinking occupiers. Please contact the agents for more information.
- Classe d’utilisation : E
- Partiellement construit comme Bureau standard
- Disposition du plan d’étage ouverte en général
- Espace en excellent état
- Peut être associé à un ou plusieurs espaces supplémentaires pour obtenir jusqu’à 251 317 pi² d’espace adjacent.
- Lumière naturelle
- Cote de rendement énergétique - A
- Installations WC abandonnées
- La meilleure durabilité de sa catégorie
- Salon d'affaires et espace événementiel exclusifs sur la L21
- Cinéma Everyman intégré
- Café au rez-de-chaussée
- Installations de fin de voyage
8e étage
| Taille | 17 534 pi² |
| Terme | Négociable |
| Taux de location | 92,11 $ CAD/pi²/an |
| Utilisation de l’espace | Bureau |
| Aménagement | construction partielle |
| Disponible | Maintenant |
Occupy, brand-new Grade A workspaces wrapped up within 350,000 square feet of imaginatively designed architecture at The Turing Building in Stratford Cross. Designed with flexibility and sustainability at its core, the building offers efficient, open-plan floor plates and best-in-class sustainability for forward-thinking occupiers. Please contact the agents for more information.
- Classe d’utilisation : E
- Partiellement construit comme Bureau standard
- Disposition du plan d’étage ouverte en général
- Espace en excellent état
- Peut être associé à un ou plusieurs espaces supplémentaires pour obtenir jusqu’à 251 317 pi² d’espace adjacent.
- Climatisation centrale
- Lumière naturelle
- Cote de rendement énergétique - A
- Installations WC abandonnées
- La meilleure durabilité de sa catégorie
- Salon d'affaires et espace événementiel exclusifs sur la L21
- Cinéma Everyman intégré
- Café au rez-de-chaussée
- Installations de fin de voyage
9e étage
| Taille | 17 534 pi² |
| Terme | Négociable |
| Taux de location | 92,11 $ CAD/pi²/an |
| Utilisation de l’espace | Bureau |
| Aménagement | construction partielle |
| Disponible | Maintenant |
Occupy, brand-new Grade A workspaces wrapped up within 350,000 square feet of imaginatively designed architecture at The Turing Building in Stratford Cross. Designed with flexibility and sustainability at its core, the building offers efficient, open-plan floor plates and best-in-class sustainability for forward-thinking occupiers. Please contact the agents for more information.
- Classe d’utilisation : E
- Partiellement construit comme Bureau standard
- Disposition du plan d’étage ouverte en général
- Espace en excellent état
- Peut être associé à un ou plusieurs espaces supplémentaires pour obtenir jusqu’à 251 317 pi² d’espace adjacent.
- Cuisine
- Lumière naturelle
- Installations WC abandonnées
- La meilleure durabilité de sa catégorie
- Salon d'affaires et espace événementiel exclusifs sur la L21
- Cinéma Everyman intégré
- Café au rez-de-chaussée
- Installations de fin de voyage
10e étage
| Taille | 17 534 pi² |
| Terme | Négociable |
| Taux de location | 92,11 $ CAD/pi²/an |
| Utilisation de l’espace | Bureau |
| Aménagement | construction partielle |
| Disponible | Maintenant |
Occupy, brand-new Grade A workspaces wrapped up within 350,000 square feet of imaginatively designed architecture at The Turing Building in Stratford Cross. Designed with flexibility and sustainability at its core, the building offers efficient, open-plan floor plates and best-in-class sustainability for forward-thinking occupiers. Please contact the agents for more information.
- Classe d’utilisation : E
- Partiellement construit comme Bureau standard
- Disposition du plan d’étage ouverte en général
- Espace en excellent état
- Peut être associé à un ou plusieurs espaces supplémentaires pour obtenir jusqu’à 251 317 pi² d’espace adjacent.
- Climatisation centrale
- Lumière naturelle
- Cote de rendement énergétique - A
- Installations WC abandonnées
- La meilleure durabilité de sa catégorie
- Salon d'affaires et espace événementiel exclusifs sur la L21
- Cinéma Everyman intégré
- Café au rez-de-chaussée
- Installations de fin de voyage
11e étage
| Taille | 17 557 pi² |
| Terme | Négociable |
| Taux de location | 92,11 $ CAD/pi²/an |
| Utilisation de l’espace | Bureau |
| Aménagement | construction partielle |
| Disponible | Maintenant |
Occupy, brand-new Grade A workspaces wrapped up within 350,000 square feet of imaginatively designed architecture at The Turing Building in Stratford Cross. Designed with flexibility and sustainability at its core, the building offers efficient, open-plan floor plates and best-in-class sustainability for forward-thinking occupiers. Please contact the agents for more information.
- Classe d’utilisation : E
- Partiellement construit comme Bureau standard
- Disposition du plan d’étage ouverte en général
- Espace en excellent état
- Peut être associé à un ou plusieurs espaces supplémentaires pour obtenir jusqu’à 251 317 pi² d’espace adjacent.
- Climatisation centrale
- Lumière naturelle
- Cote de rendement énergétique - A
- Installations WC abandonnées
- La meilleure durabilité de sa catégorie
- Salon d'affaires et espace événementiel exclusifs sur la L21
- Cinéma Everyman intégré
- Café au rez-de-chaussée
- Installations de fin de voyage
12e étage
| Taille | 17 558 pi² |
| Terme | Négociable |
| Taux de location | 92,11 $ CAD/pi²/an |
| Utilisation de l’espace | Bureau |
| Aménagement | construction partielle |
| Disponible | Bail en cours |
Occupy, brand-new Grade A workspaces wrapped up within 350,000 square feet of imaginatively designed architecture at The Turing Building in Stratford Cross. Designed with flexibility and sustainability at its core, the building offers efficient, open-plan floor plates and best-in-class sustainability for forward-thinking occupiers. Please contact the agents for more information.
- Classe d’utilisation : E
- Partiellement construit comme Bureau standard
- Disposition du plan d’étage ouverte en général
- Espace en excellent état
- Peut être associé à un ou plusieurs espaces supplémentaires pour obtenir jusqu’à 251 317 pi² d’espace adjacent.
- Cuisine
- Lumière naturelle
- Installations WC abandonnées
- La meilleure durabilité de sa catégorie
- Salon d'affaires et espace événementiel exclusifs sur la L21
- Cinéma Everyman intégré
- Café au rez-de-chaussée
- Installations de fin de voyage
13e étage, ste North
| Taille | 10 000 pi² |
| Terme | Négociable |
| Taux de location | 92,11 $ CAD/pi²/an |
| Utilisation de l’espace | Bureau |
| Aménagement | construction partielle |
| Disponible | Bail en cours |
Occupy, brand-new Grade A workspaces wrapped up within 350,000 square feet of imaginatively designed architecture at The Turing Building in Stratford Cross. Designed with flexibility and sustainability at its core, the building offers efficient, open-plan floor plates and best-in-class sustainability for forward-thinking occupiers. Please contact the agents for more information.
- Classe d’utilisation : E
- Partiellement construit comme Bureau standard
- Disposition du plan d’étage ouverte en général
- Espace en excellent état
- Peut être associé à un ou plusieurs espaces supplémentaires pour obtenir jusqu’à 251 317 pi² d’espace adjacent.
- Climatisation centrale
- Lumière naturelle
- Cote de rendement énergétique - A
- Installations WC abandonnées
- La meilleure durabilité de sa catégorie
- Salon d'affaires et espace événementiel exclusifs sur la L21
- Cinéma Everyman intégré
- Café au rez-de-chaussée
- Installations de fin de voyage
13e étage, ste South
| Taille | 8 657 pi² |
| Terme | Négociable |
| Taux de location | 92,11 $ CAD/pi²/an |
| Utilisation de l’espace | Bureau |
| Aménagement | construction partielle |
| Disponible | Maintenant |
Occupy, brand-new Grade A workspaces wrapped up within 350,000 square feet of imaginatively designed architecture at The Turing Building in Stratford Cross. Designed with flexibility and sustainability at its core, the building offers efficient, open-plan floor plates and best-in-class sustainability for forward-thinking occupiers. Please contact the agents for more information.
- Classe d’utilisation : E
- Partiellement construit comme Bureau standard
- Disposition du plan d’étage ouverte en général
- Espace en excellent état
- Climatisation centrale
- Lumière naturelle
- Cote de rendement énergétique - A
- Installations WC abandonnées
- Best-In-Class Sustainability
- Exclusive business lounge and event space on L21
- Integrated Everyman Cinema
- Ground Floor Cafe
- End-Of-Trip Facilities
14e étage
| Taille | 18 288 pi² |
| Terme | Négociable |
| Taux de location | 92,11 $ CAD/pi²/an |
| Utilisation de l’espace | Bureau |
| Aménagement | construction partielle |
| Disponible | Bail en cours |
Occupy, brand-new Grade A workspaces wrapped up within 350,000 square feet of imaginatively designed architecture at The Turing Building in Stratford Cross. Designed with flexibility and sustainability at its core, the building offers efficient, open-plan floor plates and best-in-class sustainability for forward-thinking occupiers. Please contact the agents for more information.
- Classe d’utilisation : E
- Partiellement construit comme Bureau standard
- Disposition du plan d’étage ouverte en général
- Espace en excellent état
- Peut être associé à un ou plusieurs espaces supplémentaires pour obtenir jusqu’à 251 317 pi² d’espace adjacent.
- Climatisation centrale
- Lumière naturelle
- Cote de rendement énergétique - A
- Installations WC abandonnées
- La meilleure durabilité de sa catégorie
- Salon d'affaires et espace événementiel exclusifs sur la L21
- Cinéma Everyman intégré
- Café au rez-de-chaussée
- Installations de fin de voyage
15e étage
| Taille | 18 675 pi² |
| Terme | Négociable |
| Taux de location | 92,11 $ CAD/pi²/an |
| Utilisation de l’espace | Bureau |
| Aménagement | construction partielle |
| Disponible | Maintenant |
Occupy, brand-new Grade A workspaces wrapped up within 350,000 square feet of imaginatively designed architecture at The Turing Building in Stratford Cross. Designed with flexibility and sustainability at its core, the building offers efficient, open-plan floor plates and best-in-class sustainability for forward-thinking occupiers. Please contact the agents for more information.
- Classe d’utilisation : E
- Partiellement construit comme Bureau standard
- Disposition du plan d’étage ouverte en général
- Espace en excellent état
- Peut être associé à un ou plusieurs espaces supplémentaires pour obtenir jusqu’à 251 317 pi² d’espace adjacent.
- Air central et chauffage
- Cuisine
- Installations WC abandonnées
- La meilleure durabilité de sa catégorie
- Salon d'affaires et espace événementiel exclusifs sur la L21
- Cinéma Everyman intégré
- Café au rez-de-chaussée
- Installations de fin de voyage
16e étage
| Taille | 18 385 pi² |
| Terme | Négociable |
| Taux de location | 92,11 $ CAD/pi²/an |
| Utilisation de l’espace | Bureau |
| Aménagement | construction partielle |
| Disponible | Maintenant |
Occupy, brand-new Grade A workspaces wrapped up within 350,000 square feet of imaginatively designed architecture at The Turing Building in Stratford Cross. Designed with flexibility and sustainability at its core, the building offers efficient, open-plan floor plates and best-in-class sustainability for forward-thinking occupiers. Please contact the agents for more information.
- Classe d’utilisation : E
- Partiellement construit comme Bureau standard
- Disposition du plan d’étage ouverte en général
- Espace en excellent état
- Peut être associé à un ou plusieurs espaces supplémentaires pour obtenir jusqu’à 251 317 pi² d’espace adjacent.
- Cuisine
- Lumière naturelle
- Installations WC abandonnées
- La meilleure durabilité de sa catégorie
- Salon d'affaires et espace événementiel exclusifs sur la L21
- Cinéma Everyman intégré
- Café au rez-de-chaussée
- Installations de fin de voyage
17e étage
| Taille | 18 675 pi² |
| Terme | Négociable |
| Taux de location | 92,11 $ CAD/pi²/an |
| Utilisation de l’espace | Bureau |
| Aménagement | construction partielle |
| Disponible | Maintenant |
Occupy, brand-new Grade A workspaces wrapped up within 350,000 square feet of imaginatively designed architecture at The Turing Building in Stratford Cross. Designed with flexibility and sustainability at its core, the building offers efficient, open-plan floor plates and best-in-class sustainability for forward-thinking occupiers. Please contact the agents for more information.
- Classe d’utilisation : E
- Partiellement construit comme Bureau standard
- Disposition du plan d’étage ouverte en général
- Espace en excellent état
- Peut être associé à un ou plusieurs espaces supplémentaires pour obtenir jusqu’à 251 317 pi² d’espace adjacent.
- Climatisation centrale
- Lumière naturelle
- Cote de rendement énergétique - A
- Installations WC abandonnées
- La meilleure durabilité de sa catégorie
- Salon d'affaires et espace événementiel exclusifs sur la L21
- Cinéma Everyman intégré
- Café au rez-de-chaussée
- Installations de fin de voyage
18e étage
| Taille | 18 686 pi² |
| Terme | Négociable |
| Taux de location | 92,11 $ CAD/pi²/an |
| Utilisation de l’espace | Bureau |
| Aménagement | construction partielle |
| Disponible | Maintenant |
Occupy, brand-new Grade A workspaces wrapped up within 350,000 square feet of imaginatively designed architecture at The Turing Building in Stratford Cross. Designed with flexibility and sustainability at its core, the building offers efficient, open-plan floor plates and best-in-class sustainability for forward-thinking occupiers. Please contact the agents for more information.
- Classe d’utilisation : E
- Partiellement construit comme Bureau standard
- Disposition du plan d’étage ouverte en général
- Espace en excellent état
- Peut être associé à un ou plusieurs espaces supplémentaires pour obtenir jusqu’à 251 317 pi² d’espace adjacent.
- Climatisation centrale
- Lumière naturelle
- Cote de rendement énergétique - A
- Installations WC abandonnées
- La meilleure durabilité de sa catégorie
- Salon d'affaires et espace événementiel exclusifs sur la L21
- Cinéma Everyman intégré
- Café au rez-de-chaussée
- Installations de fin de voyage
19e étage
| Taille | 16 394 pi² |
| Terme | Négociable |
| Taux de location | 92,11 $ CAD/pi²/an |
| Utilisation de l’espace | Bureau |
| Aménagement | construction partielle |
| Disponible | Maintenant |
2,207-square-foot terrace available.
- Classe d’utilisation : E
- Partiellement construit comme Bureau standard
- Disposition du plan d’étage ouverte en général
- Espace en excellent état
- Peut être associé à un ou plusieurs espaces supplémentaires pour obtenir jusqu’à 251 317 pi² d’espace adjacent.
- Climatisation centrale
- Balcon
- Lumière naturelle
- Cote de rendement énergétique - A
- Installations WC abandonnées
- La meilleure durabilité de sa catégorie
- Salon d'affaires et espace événementiel exclusifs sur la L21
- Cinéma Everyman intégré
- Café au rez-de-chaussée
- Installations de fin de voyage
20e étage
| Taille | 16 393 pi² |
| Terme | Négociable |
| Taux de location | 92,11 $ CAD/pi²/an |
| Utilisation de l’espace | Bureau |
| Aménagement | construction partielle |
| Disponible | Maintenant |
Occupy, brand-new Grade A workspaces wrapped up within 350,000 square feet of imaginatively designed architecture at The Turing Building in Stratford Cross. Designed with flexibility and sustainability at its core, the building offers efficient, open-plan floor plates and best-in-class sustainability for forward-thinking occupiers. Please contact the agents for more information.
- Classe d’utilisation : E
- Partiellement construit comme Bureau standard
- Disposition du plan d’étage ouverte en général
- Espace en excellent état
- Peut être associé à un ou plusieurs espaces supplémentaires pour obtenir jusqu’à 251 317 pi² d’espace adjacent.
- Climatisation centrale
- Lumière naturelle
- Cote de rendement énergétique - A
- Installations WC abandonnées
- La meilleure durabilité de sa catégorie
- Salon d'affaires et espace événementiel exclusifs sur la L21
- Cinéma Everyman intégré
- Café au rez-de-chaussée
- Installations de fin de voyage
21e étage, ste Amenity Floor
| Taille | 10 580 pi² |
| Terme | Négociable |
| Taux de location | Sur demande |
| Utilisation de l’espace | Bureau |
| Aménagement | construction partielle |
| Disponible | Maintenant |
Occupy, brand-new Grade A workspaces wrapped up within 350,000 square feet of imaginatively designed architecture at The Turing Building in Stratford Cross. Designed with flexibility and sustainability at its core, the building offers efficient, open-plan floor plates and best-in-class sustainability for forward-thinking occupiers. Please contact the agents for more information.
- Classe d’utilisation : E
- Partiellement construit comme Bureau standard
- Disposition du plan d’étage ouverte en général
- Espace en excellent état
- Peut être associé à un ou plusieurs espaces supplémentaires pour obtenir jusqu’à 251 317 pi² d’espace adjacent.
- Climatisation centrale
- Lumière naturelle
- Cote de rendement énergétique - A
- Installations WC abandonnées
- Best-In-Class Sustainability
- Exclusive business lounge and event space on L21
- Integrated Everyman Cinema
- Ground Floor Cafe
- End-Of-Trip Facilities
Visites 3D Matterport
Aperçu de la propriété
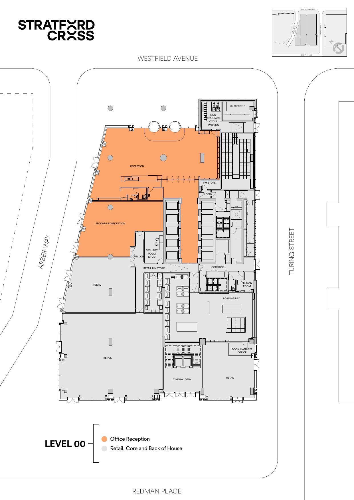
Bienvenue à The Turing Building, une tour de bureaux commerciaux de nouvelle génération qui constitue un élément clé du quartier de Stratford Cross, dans le cœur culturel de l'est de Londres. Offrant plus de 350 000 pieds carrés d'espace de travail durable de catégorie A, le design de l'édifice Turing a redéfini le milieu de travail, offrant un environnement unique pour exciter, permettre et inspirer les individus à réaliser leur plein potentiel. Situé dans le centre culturel de Londres, le quartier dynamique et bien connecté de Stratford allie la recherche et l'éducation à la culture et à l'innovation, offrant ainsi une destination inspirante où les entreprises prospèrent. Nichée entre 560 acres du parc olympique Queen Elizabeth, les institutions créatives de la Cisjordanie, le London Stadium et une vaste gamme d'expériences de shopping, de restauration et de divertissement, y compris Westfield Stratford City à proximité, cette destination en constante évolution au cœur de Stratford a tout pour plaire. Entouré de quartiers incroyables et à seulement cinq minutes à pied de certaines des expériences les plus incroyables de la capitale, vous ne serez jamais à court de choses à faire à Stratford. Conçu pour offrir de la flexibilité, l'édifice Turing bénéficie de plaques de plancher efficaces et claires, d'espaces de travail et d'étude écologiques, d'un espace événementiel flexible et d'une terrasse sur le toit riche en biodiversité offrant une vue imprenable sur la capitale, offrant aux occupants une expérience de classe mondiale à la hauteur de leurs ambitions. Découvrez la splendeur du bâtiment en entrant, où les gens sont accueillis par un hall magnifique et actif avec un cinéma intégré à trois écrans et un rez-de-chaussée dirigé par des détaillants débordant de vie, et intégrant cet immeuble comme un atout pour la communauté au sens large. L'ambition de l'immeuble était de créer un bâtiment commercial exemplaire conçu pour attirer les locataires, inspirer la collaboration et soutenir de nouvelles façons de travailler tout en réduisant l'empreinte carbone et en ayant des impacts positifs. Grâce à la conception exceptionnelle de l'espace de travail, l'édifice Turing a amélioré le bien-être et le bonheur des occupants grâce à une attention particulière accordée à une meilleure qualité de l'air, à des espaces de travail extérieurs et à des aménagements flexibles pour favoriser la collaboration tout en luttant contre les émissions de carbone et les coûts d'occupation. Économisez de l'énergie grâce à un éclairage LED 100 % basse consommation pour créer un environnement de travail optimal et atteindre vos objectifs Net Zéro Carbone en devenant partie du plus grand programme énergétique décentralisé au Royaume-Uni, chaque bâtiment de Stratford Cross étant alimenté par des chaudières à biomasse dans les centres énergétiques du réseau de chauffage et de refroidissement de Stratford District. Forte de l'héritage des Jeux olympiques, la connectivité de Stratford s'est considérablement améliorée au cours de la dernière décennie. Avec la ligne Jubilee, la ligne Elizabeth, le DLR et les services National Rail tous accessibles, les voyages sont un jeu d'enfant, Stratford s'imposant comme l'une des destinations les mieux desservies de Londres et le quartier idéal pour faire affaires.
- Atrium
- Ligne d'autobus
- Cuisine
- Cote de rendement énergétique - A
- Terrasse sur le toit
- Chauffage central
- Toilettes communes
- Exposition directe à l'ascenseur
- Lumière naturelle
- Plan ouvert
- Climatisation
Faits sur la propriété
Brochure marketing
Commodités à proximité
Restaurants |
|||
|---|---|---|---|
| Figo | - | - | 2 Min. de marche |
| Itsu | - | - | 2 Min. de marche |
| Nespresso Boutique | - | - | 5 Min. de marche |
Commerce de détail |
||
|---|---|---|
| Beaverbrooks | Bijoux / Montres | 5 Min. de marche |
| Levi's | Vêtements unisexes | 5 Min. de marche |
| Accessorize | Vêtements pour femmes | 5 Min. de marche |
| Vans | Vêtements unisexes | 5 Min. de marche |
| INGLOT | Produits de santé et de beauté | 5 Min. de marche |
Hôtels |
|
|---|---|
| Hyatt House |
125 Pièces
4 Min. de marche
|
| Autograph Collection |
145 Pièces
6 Min. de marche
|
| Hyatt Regency |
225 Pièces
6 Min. de marche
|
| Urban Rest |
36 Pièces
7 Min. de marche
|
| Aparthotel Adagio |
136 Pièces
7 Min. de marche
|
À propos du quartier Frange de l'Est
La banlieue est de London est une destination de bureaux émergente, offrant aux occupants un accès rapide au centre de Londres à des coûts professionnels beaucoup plus bas que dans les régions plus établies à l'ouest. Il englobe une foule de secteurs dynamiques comme Whitechapel, Hackney et Wapping, dont le parc olympique de Stratford et la gare ferroviaire internationale sont la pièce maîtresse.
La région a pris de l'expansion en tant qu'emplacement de bureaux au cours de la dernière décennie, les Jeux olympiques de 2012 ayant servi de catalyseur pour la régénération et le développement. Ses liaisons de transport déjà solides se sont améliorées encore davantage en 2022 avec l'arrivée des services de la ligne Elizabeth. De telles améliorations ont permis de placer la zone sur le radar d'un nombre croissant d'occupants de bureaux. Au cours des dernières années, citons Cancer Research, le British Council et la Financial Conduct Authority, tandis qu'une vague de petites entreprises technologiques et médiatiques ont gravité autour d'Here East à Stratford et d'endroits branchés comme Whitechapel. Les entreprises peuvent s'attendre à payer environ 30 à 40 % de moins, en moyenne, pour l'espace ici qu'elles ne le feraient dans le centre de Londres.
De solides liens de transport et une scène sociale et commerciale dynamique ont contribué à alimenter une croissance démographique démesurée au cours des dernières années, une foule de promoteurs résidentiels ciblant la région en raison de sa popularité croissante auprès des jeunes professionnels. On prévoit que sa population continuera d'augmenter plus rapidement que la moyenne de London au cours des prochaines années, ce qui accroîtrera encore davantage le dynamisme de la région ainsi que son bassin de travailleurs locaux.
Équipes de location
Équipes de location
Angus Goswell,
Partner/Department Head,Chairman London Offices
Mike Voller, Partner, London Office Leasing
Mike se joint à Knight Frank après avoir travaillé pendant six ans au sein de Spring4, un cabinet de conseil immobilier de premier plan à Londres, où il s'est spécialisé dans le conseil aux occupants d'entreprises dans le cadre d'un large éventail de transactions, y compris des acquisitions de baux, des réaménagements, des achats et des locations.
Richard Howard,
Executive Director
À propos du propriétaire
Autres propriétés dans le CPP INVESTMENTS portefeuille
À propos de l’architecte
Présenté par
Entreprise non fournie
The Turing Building | Westfield Ave
Hmm, il semble y avoir eu une erreur lors de l’envoi de votre message. Veuillez réessayer.
Merci! Votre message a été envoyé.




