Immobilier commercial en New York disponible à louer

500 Bars à louer à New York, USA

Bars à louer à New York, USA

Plus de détails pour 404 Avenue of the Americas, New York, NY - Commerce de détail à louer

404 Avenue of the Americas

New York, NY 10011

  • Bar
  • Commerce de détail à louer
  • 1 300 à 3 000 pi²
  • 2 Espaces | Disponible maintenant
Afficher plus
Plus de détails pour 1181 N Greece Rd, Rochester, NY - Industriel à louer

Pep Boys - 1181 N Greece Rd

Rochester, NY 14626

  • Bar
  • Industriel à louer
  • 20 600 pi²
  • 1 Espace | Disponible maintenant
Afficher plus
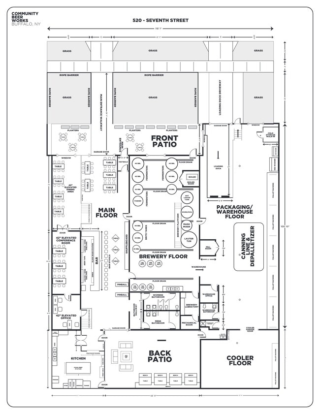
Plus de détails pour 520 7th St, Buffalo, NY - Commerce de détail à louer

Former Community Beer Works Brewery/Tap Room - 520 7th St

Buffalo, NY 14201

  • Bar
  • Commerce de détail à louer
  • 10 184 pi²
  • 1 Espace | Disponible maintenant
  • Climatisation
  • Conforme DDA

Buffalo Commerce de détail à louer - Buffalo CBD

Schneider Real Estate Services est fier de proposer à la location une installation de brasserie de 11 379 pieds carrés, spécialement conçue, située dans l’historique Schaefer & Brother Malt House, au cœur du dynamique quartier Lower West Side de Buffalo. Community Beer Works regroupe ses opérations sur son site de Chandler Street, ouvrant ainsi la voie à une nouvelle brasserie pour s’installer dans cet espace fonctionnel doté d’une infrastructure essentielle déjà en place. Une petite brasserie peut augmenter sa production sans coûts majeurs d’aménagement, ou l’espace peut être divisé pour accueillir plusieurs locataires, grâce à une séparation claire entre les zones d’entrepôt/production et celles du restaurant/salle de dégustation. L’aile de production comprend une zone de brassage de 2 305 pi², une chambre froide de 1 082 pi² et un entrepôt de 3 838 pi² avec quai de chargement. Le côté hospitalité inclut une salle de dégustation de 1 913 pi², une cuisine de 490 pi² équipée d’une hotte de 12 pieds, ainsi qu’une mezzanine de 556 pi² pouvant servir de bureaux ou d’espace pour des événements privés. La propriété regorge de caractère, avec des murs en briques apparentes, de grandes fenêtres et une ambiance industrielle, en plus de deux espaces extérieurs pour dîner, dont une terrasse à l’avant et un jardin à bière de 1 181 pi² dans la cour. Chargé d’histoire locale, ce bâtiment emblématique d’avant la Prohibition a été construit en 1880 en tant que malterie et a ensuite abrité la Merckens Chocolate Company. Une réhabilitation majeure a été réalisée en 2018 avec des systèmes de bâtiment entièrement neufs, et la réaffectation a été achevée en 2021 avec l’ajout de 32 unités résidentielles. L’emplacement de choix offre des atouts exceptionnels dans le quartier, notamment le nouveau Ralph Wilson Park—un parc riverain de 100 acres sur le lac Érié, actuellement en cours de transformation grâce à un investissement de 110 millions de dollars et dont la réouverture est prévue pour l’année prochaine—ainsi que la proximité de l’Université D’Youville, de la salle de concert Kleinhan’s Music Hall, du pont Peace Bridge et du centre-ville de Buffalo.

Coordonnées pour la location:

Schneider Real Estate Services

Type de propriété :

Spécialité

Date de mise en marché :

2025-10-14

Afficher moins​
Afficher plus
Plus de détails pour 80 Pine St, New York, NY - Commerce de détail à louer

80 Pine St

New York, NY 10005

  • Bar
  • Commerce de détail à louer
  • 1 067 à 9 510 pi²
  • 4 Espaces | Disponible maintenant
Afficher plus
Plus de détails pour 2122 Beekman Pl, Brooklyn, NY - Commerce de détail à louer

Turn-Key Cocktail Bar/Cafe - 2122 Beekman Pl

Brooklyn, NY 11225

  • Bar
  • Commerce de détail à louer
  • 900 pi²
  • 1 Espace | Disponible maintenant
Afficher plus
Plus de détails pour 138 Havemeyer St, Brooklyn, NY - Commerce de détail à louer

Turn-Key Restaurant /Bar in Williamsburg - 138 Havemeyer St

Brooklyn, NY 11211

  • Bar
  • Commerce de détail à louer
  • 1 200 pi²
  • 1 Espace | Disponible maintenant
Afficher plus
Plus de détails pour 57-38 Myrtle Ave, Ridgewood, NY - Commerce de détail à louer

57-38 Myrtle Ave

Ridgewood, NY 11385

  • Bar
  • Commerce de détail à louer
  • 3 750 pi²
  • 1 Espace | Disponible maintenant
Afficher plus
Plus de détails pour 581 Second Ave, New York, NY - Commerce de détail à louer

Vented Restautant Space with Gas - 581 Second Ave

New York, NY 10016

  • Bar
  • Commerce de détail à louer
  • 1 600 pi²
  • 1 Espace | Disponible bientôt
Afficher plus
Plus de détails pour 705 Franklin Ave, Brooklyn, NY - Commerce de détail à louer

705 Franklin Ave - 705 Franklin Ave

Brooklyn, NY 11238

  • Bar
  • Commerce de détail à louer
  • 1 773 pi²
  • 1 Espace | Disponible bientôt
  • Climatisation
  • Système de gicleur
  • Accès 24 heures
  • Cuisine
  • Détecteur de fumée

Brooklyn Commerce de détail à louer - North Brooklyn

Occasion exceptionnelle de commerce de détail à un coin de rue, située au cœur de Crown Heights, Brooklyn. Cet espace neuf de 1 773 pi² offre une visibilité inégalée à l’intersection très fréquentée de Franklin Avenue et Park Place, entouré d’un mélange dynamique de résidences, de restaurants, de commerces et de destinations culturelles. Avec une façade expansive et un fort achalandage piétonnier, cet emplacement est idéal pour divers usages, qu’il s’agisse de commerce de détail, de services ou de restauration. Livré en état brut avec éclairage chaleureux, l’espace est équipé de la climatisation (HVAC) et de toutes les utilités préinstallées, offrant aux locataires la flexibilité de concevoir et d’aménager selon leurs besoins. L’exposition en coin garantit une lumière naturelle abondante et une forte présence de marque, tandis que la construction moderne de la propriété assure efficacité et fiabilité. Franklin Avenue est devenue l’un des corridors les plus dynamiques de Brooklyn, bordée de restaurants prisés, de cafés et de boutiques qui attirent autant les résidents que les visiteurs. La propriété est située à quelques pas de Prospect Park, du Brooklyn Museum, du Brooklyn Botanic Garden et du Brooklyn Children’s Museum, et est entourée d’une communauté florissante de résidents, d’étudiants et de professionnels. L’accès pratique au métro (lignes 2, 3, 4, 5, A et C) garantit une connectivité facile avec le reste de l’arrondissement et Manhattan.

Coordonnées pour la location:

RW Real Estate Group, LLC

Type de propriété :

Multi-résidentiel

Date de mise en marché :

2025-10-06

Afficher moins​
Afficher plus
Plus de détails pour 244 Knickerbocker Ave, Brooklyn, NY - Commerce de détail à louer

Brand New Restaurant in Bushwick - 244 Knickerbocker Ave

Brooklyn, NY 11237

  • Bar
  • Commerce de détail à louer
  • 1 200 pi²
  • 1 Espace | Disponible maintenant
Afficher plus
Plus de détails pour 317 Union Ave, Brooklyn, NY - Commerce de détail à louer

Corner Restaurant Williamsburg, Great Lease - 317 Union Ave

Brooklyn, NY 11211

  • Bar
  • Commerce de détail à louer
  • 2 500 pi²
  • 1 Espace | Disponible maintenant
Afficher plus
Plus de détails pour 504 Larkfield Rd, East Northport, NY - Commerce de détail à louer

504 Larkfield Rd

East Northport, NY 11731

  • Bar
  • Commerce de détail à louer
  • 2 660 pi²
  • 1 Espace | Disponible bientôt
Afficher plus
Plus de détails pour 984 Broadway, Brooklyn, NY - Commerce de détail à louer

984 Broadway

Brooklyn, NY 11221

  • Bar
  • Commerce de détail à louer
  • 1 000 à 4 500 pi²
  • 2 Espaces | Disponible maintenant
Afficher plus
Plus de détails pour 207 W 40th St, New York, NY - Commerce de détail à louer

Margaritaville Resort Times Square - 207 W 40th St

New York, NY 10018

  • Bar
  • Commerce de détail à louer
  • 600 à 9 600 pi²
Afficher plus
Plus de détails pour 473-475 Ashford Ave, Ardsley, NY - Commerce de détail à louer

Pizza Business For Sale - 473-475 Ashford Ave

Ardsley, NY 10502

  • Bar
  • Commerce de détail à louer
  • 980 pi²
  • 1 Espace | Disponible maintenant
  • Climatisation

Ardsley Commerce de détail à louer - West I-287 Corridor

Pizzeria Clé en Main Entièrement Rénovée – Ardsley, NY Christie’s International Real Estate – Division Commerciale est fière de présenter une opportunité exceptionnelle au cœur d’Ardsley. Située au 473 Ashford Avenue, cette pizzeria entièrement rénovée et opérationnelle est une véritable affaire clé en main, idéale pour les restaurateurs expérimentés ou les investisseurs cherchant un démarrage sans tracas. **Points Forts de la Propriété** * **Prête à Opérer** – Pizzeria entièrement aménagée avec cuisine commerciale, ventilation, fours à pizza, réfrigération et salle à manger complète. Aucun aménagement supplémentaire requis. * **Visibilité et Accessibilité Optimales** – Emplacement à fort trafic avec excellente visibilité depuis la rue, passage piétonnier important et stationnement pratique sur place. Idéal pour les repas sur place, à emporter et les livraisons. * **Clientèle Aisée et Fidèle** – La communauté familiale et à revenu élevé d’Ardsley garantit une demande constante et une clientèle régulière. Les événements scolaires, les sports pour jeunes et les activités locales génèrent fréquemment des commandes de traiteur et de groupes. * **Scène Culinaire Florissante** – La culture gastronomique dynamique de Westchester attire à la fois les résidents et les visiteurs, assurant une demande continue. * **Potentiel de Croissance des Revenus** – Diversifiez le menu avec des entrées, desserts, options véganes et sans gluten. Profitez de la forte demande locale pour les plats à emporter et les livraisons. **Avantages de la Région** * Grande salle à manger pouvant accueillir plus de 20 invités. * Environnement communautaire favorable, avec un fort soutien aux entreprises locales. * Proximité de New York pour l’accès aux fournisseurs, le recrutement de personnel et l’élargissement de la clientèle. * Visibilité constante grâce aux festivals locaux et événements communautaires. **Inclus avec l’Entreprise** * Cuisine entièrement fonctionnelle et conforme aux normes, avec systèmes de gaz et d’électricité modernisés (certification Con Edison blue card). * Système de hotte Ansul, cuisinière avec brûleurs, station de préparation de pizzas, fours à pizza, refroidisseurs, réfrigération et grand réfrigérateur walk-in. * Nouvelles fenêtres de cuisine, friteuse et système d’extraction améliorés (entièrement conformes aux normes). * Présentoir alimentaire attrayant avec un comptoir de gelato amusant et populaire. **Pourquoi Cette Opportunité Se Démarque** La pizza est l’un des modèles de restauration les plus rentables et résilients, avec des coûts alimentaires faibles, une demande constante et un attrait universel auprès de toutes les catégories économiques. Cet emplacement combine une configuration idéale avec une démographie forte, un soutien communautaire et un potentiel de croissance, en faisant un investissement remarquable. Pour plus de détails ou pour planifier une visite privée, veuillez contacter notre bureau.

Coordonnées pour la location:

Christie's Commercial Real Estate Group

Type de propriété :

Bureau

Date de mise en marché :

2025-09-26

Afficher moins​
Afficher plus
337–360 de 500