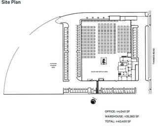
- Construit en 1984
- 48,50 $ CAD pi²/an
- 1 Espace | Disponible maintenant
- Bâtiment autonome prêt à emménager, doté d'une puissance électrique de 2 000 ampères (277-480 volts), d'une hauteur libre de 15 à 18 pieds, de 3 quais de chargement, de 2 portes de niveau sol et d'un ratio de stationnement de 3,5:1 000 pi².





























