Se Connecter/S’inscrire
Votre courriel a été envoyé.
2403 E Aragon Rd - Texas Instruments Bldg 6/ Cafeteria 4 884 pi² Commerce de détail Immeuble



À propos de 2403 E ARAGON RD , TUCSON , AZ 85756
| Prix | Pas individuellement en vente | Classe d’immeuble | B |
| Taille du bâtiment | 4 884 pi² | Taille du lot | 0,20 AC |
| Type de propriété | Commerce de détail | Ratio de stationnement | 0/1 000 pi² |
| Sous-type de propriété | Restaurant |
| Prix | Pas individuellement en vente |
| Taille du bâtiment | 4 884 pi² |
| Type de propriété | Commerce de détail |
| Sous-type de propriété | Restaurant |
| Classe d’immeuble | B |
| Taille du lot | 0,20 AC |
| Ratio de stationnement | 0/1 000 pi² |
Résumé de l'annonce
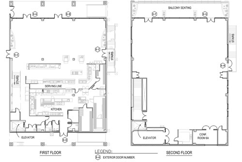
* Bldg SF: First floor cafeteria and kitchen, second floor auditorium seating for 411 persons.
1 de 10
Vidéos
Visite extérieure 3D Matterport
Visite 3D Matterport
Photos
Vue depuis la rue
Rue
Carte
